8680 W 84th Avenue Arvada CO 80005 MLS #REC6424100
Welcome home to this exquisite blend of modern elegance and comfort in Arvada. This stunning and luxurious 4-bedroom, 3-bathroom home spans an impressive 3,266 square feet, offering a seamless blend of sophistication and functionality.
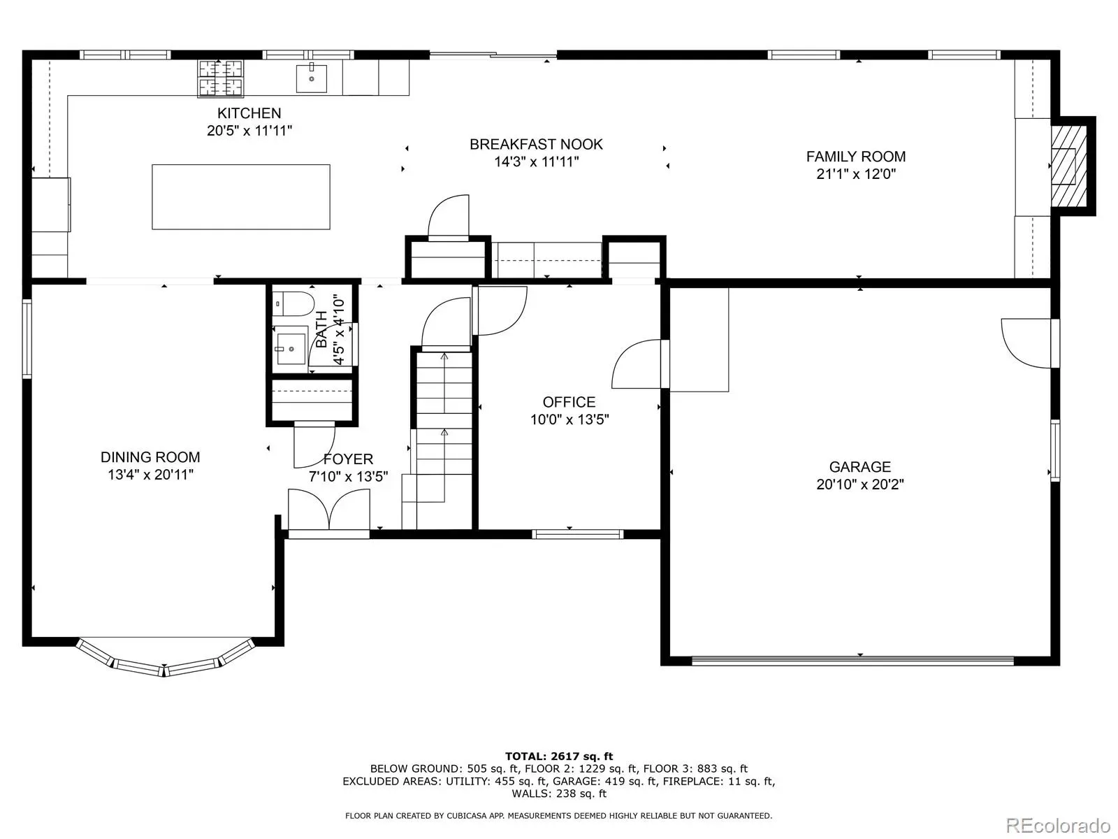
Step inside to discover a fully remodeled interior, highlighted by a gourmet kitchen equipped with a large center island, quartz counters, stainless steel appliances, and a 6-burner gas stove. Boasting high end cabinetry, this chef’s dream kitchen boasts a perfect space for both everyday living and entertainment, along with a large formal dining room.
The kitchen opens to the beautiful family room with a gas fireplace and custom coffee bar featuring two wine fridges. The main floor also features a main floor office/study, an updated half bath with modern tile and lighting, while the upper level boasts four bedrooms, each with ceiling fans. The large primary bedroom is a sanctuary with the remodeled bathroom featuring quartz counters, glass shower, and a walk-in closet. The finished basement adds to the living space with a large recreation area.
Outside, a beautifully landscaped, fully fenced backyard invites you to relax under the covered patio and pergola, brick paver patio and garden beds.. Additional features include updated lighting, shed, newer windows, wrought iron railings, and a stamped concrete front walkway with a covered porch. The attached garage, oversized driveway, and fully paid-off solar add to the home’s convenience and eco-friendly appeal.
This home perfectly balances modern amenities with timeless design, set against the stunning backdrop of Arvada’s natural beauty. This stunning remodel is ready to move in and call home. Don’t miss out on one of Arvada’s truly magnificent homes as this one won’t last.
Step inside to discover a fully remodeled interior, highlighted by a gourmet kitchen equipped with a large center island, quartz counters, stainless steel appliances, and a 6-burner gas stove. Boasting high end cabinetry, this chef’s dream kitchen boasts a perfect space for both everyday living and entertainment, along with a large formal dining room.
The kitchen opens to the beautiful family room with a gas fireplace and custom coffee bar featuring two wine fridges. The main floor also features a main floor office/study, an updated half bath with modern tile and lighting, while the upper level boasts four bedrooms, each with ceiling fans. The large primary bedroom is a sanctuary with the remodeled bathroom featuring quartz counters, glass shower, and a walk-in closet. The finished basement adds to the living space with a large recreation area.
Outside, a beautifully landscaped, fully fenced backyard invites you to relax under the covered patio and pergola, brick paver patio and garden beds.. Additional features include updated lighting, shed, newer windows, wrought iron railings, and a stamped concrete front walkway with a covered porch. The attached garage, oversized driveway, and fully paid-off solar add to the home’s convenience and eco-friendly appeal.
This home perfectly balances modern amenities with timeless design, set against the stunning backdrop of Arvada’s natural beauty. This stunning remodel is ready to move in and call home. Don’t miss out on one of Arvada’s truly magnificent homes as this one won’t last.
Property Details
Price:
$895,000
MLS #:
REC6424100
Status:
Active
Beds:
4
Baths:
3
Type:
Single Family
Subtype:
Single Family Residence
Subdivision:
Pomona Lakes
Finished Sq Ft:
2,764
Total Sq Ft:
3,266
Lot Size:
8,756 sqft / 0.20 acres (approx)
Year Built:
1972
Schools
School District:
Jefferson County R-1
Elementary School:
Weber
Middle School:
Jefferson
High School:
Pomona
Interior
Above Grade Finished Area
2170
Appliances
Dishwasher, Disposal, Dryer, Microwave, Oven, Range, Refrigerator, Self Cleaning Oven, Washer
Bathrooms
2 Full Bathrooms, 1 Half Bathroom
Below Grade Finished Area
594
Below Grade Unfinished Area
502
Cooling
Central Air
Fireplaces Total
1
Flooring
Carpet, Tile, Wood
Heating
Forced Air, Natural Gas
Interior Features
Ceiling Fan(s), Eat-in Kitchen, High Speed Internet, Laminate Counters, Primary Suite, Smart Thermostat, Smoke Free, Walk-In Closet(s)
Laundry Features
In Unit
Levels
Two
Main Level Bathrooms
1
Exterior
Architectural Style
Traditional
Attached Garage YN
1
Construction Materials
Brick, Frame
Exterior Features
Garden, Lighting, Private Yard
Fencing
Full
Garage Spaces
2
Green Energy Efficient
HVAC, Insulation, Thermostat, Water Heater, Windows
Parking Spots
10
Parking Total
10
Patio And Porch Features
Covered, Front Porch, Patio
Roof
Shingle
Security Features
Video Doorbell
Window Features
Double Pane Windows
Financial
Tax Year
2025
Taxes
$4,171
Map
Contact Us
Mortgage Calculator
Property Summary
- Located in the Pomona Lakes subdivision, 8680 W 84th Avenue Arvada CO is a Single Family for sale in Arvada, CO, 80005. It is listed for $895,000 and features 4 beds, 3 baths, and has approximately 2,764 square feet of living space, and was originally constructed in 1972. The current price per square foot is $324. The average price per square foot for Single Family listings in Arvada is $336. The average listing price for Single Family in Arvada is $806,062. To schedule a showing of MLS#rec6424100 at 8680 W 84th Avenue in Arvada, CO, contact your Smart Sale AI agent at 3039066915.
Similar Listings Nearby
Additional Details
MLS # : REC6424100
Listing Key : REC2051649621
Parcel Number : 095929
Zip Code : 80005
City : Arvada
State : CO
Building if Condo :
Street : 8680 W 84th Avenue
Address : 8680
Address Prefix :
Address Suffix : Avenue
Unit if Condo :
Latitude : 39.848961
Longitude : -105.094543
Property Type : singlefamily
Property Sub Type : Single Family Residence
Stories Total if Condo :
Lot Size : 8,756 sqft / 0.20 acres (approx)
Ownership : Individual
Zoning :
Condition :
Renovation :
Pets Allowed :
Special Conditions : None
Possession :
Original Price : 895000
Close Price :
Close Date :
List Date : Mar 25, 2026
List Contract Date : 2026-03-25
Off Market Date :
Purchase Contract Date :
Days on Market : 19
Concessions Amount :
Concession Comment :

Copyright 2026. All rights reserved.
8680 W 84th Avenue
Arvada, CO













































