978 S Potomac Way Aurora CO 80012 MLS #REC6575671
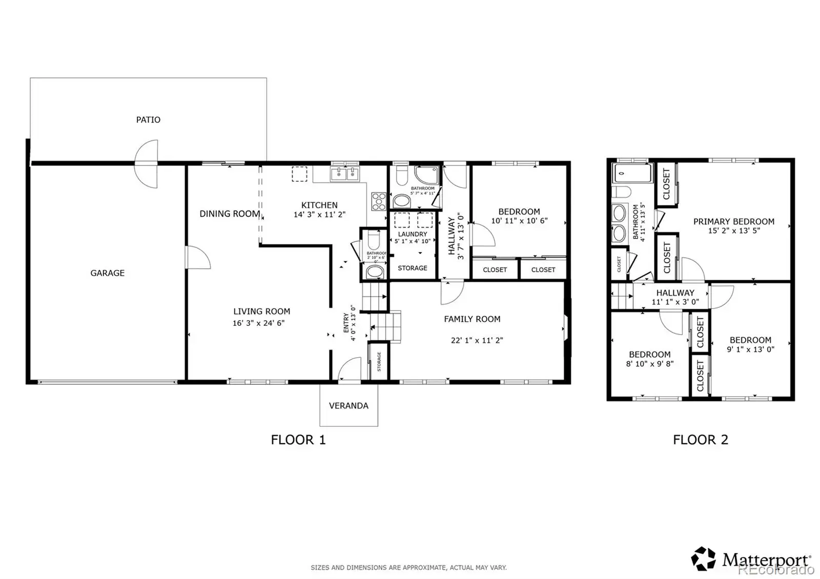
Fantastic split-level home in a wonderful Aurora location. Lovingly owned by the same family for the past 31 years and beautifully maintained, this home offers both comfort and convenience. Close to transportation, shopping, parks, and medical facilities, the setting is ideal for everyday living. The large, flat, usable lot backs to a well-kept bank property—providing privacy, a clean fence line, and peace and quiet after business hours. The level yard is perfect for play or building snowmen in the winter. Inside, you’ll find a bright and cheerful interior with easy-maintenance laminate wood flooring throughout. The large living room and lower-level family room provide plenty of space to spread out, with a cozy natural stone fireplace as the centerpiece. The kitchen features new appliances and a fresh, updated look. A convenient main-level half bath, three upper-level bedrooms, and a fourth on the lower level give flexibility for guests, an office, or hobbies. The primary bedroom includes dual closets and private access to a newly remodeled bath. Step outside to a spacious backyard with mature trees, lush greenery, and an extensive covered patio ready for relaxing or entertaining. Major updates make this home truly move-in ready, including new windows, flooring, paint, lighting, ceiling fans, doors, appliances, and bathrooms—all completed in 2025. Additional improvements include a new roof in 2020, updated shower in 2022, and interior weather-proofing in 2017. A wonderful home that has been thoughtfully cared for and is ready for its next chapter. Welcome home!
Property Details
Price:
$460,000
MLS #:
REC6575671
Status:
Active Under Contract
Beds:
4
Baths:
3
Type:
Single Family
Subtype:
Single Family Residence
Subdivision:
Aurora Hills
Finished Sq Ft:
1,758
Total Sq Ft:
1,758
Lot Size:
8,625 sqft / 0.20 acres (approx)
Year Built:
1968
Schools
School District:
Adams-Arapahoe 28J
Elementary School:
Virginia Court
Middle School:
Aurora Hills
High School:
Gateway
Interior
Above Grade Finished Area
1758
Appliances
Dishwasher, Disposal, Dryer, Electric Water Heater, Microwave, Oven, Refrigerator, Washer
Bathrooms
2 Three Quarter Bathrooms, 1 Half Bathroom
Cooling
None
Fireplaces Total
1
Flooring
Laminate
Heating
Baseboard
Interior Features
Ceiling Fan(s), Entrance Foyer, High Speed Internet, Laminate Counters
Levels
Tri-Level
Main Level Bathrooms
1
Exterior
Architectural Style
Traditional
Attached Garage YN
1
Common Walls
No Common Walls
Construction Materials
Brick, Frame, Vinyl Siding
Exterior Features
Garden, Lighting, Private Yard, Rain Gutters
Fencing
Full
Garage Spaces
1
Green Energy Efficient
Appliances, Windows
Lot Features
Landscaped, Many Trees, Near Public Transit
Parking Features
Concrete, Lighted
Parking Spots
4
Parking Total
4
Patio And Porch Features
Covered, Patio
Roof
Composition
Window Features
Double Pane Windows
Financial
Tax Year
2024
Taxes
$1,870
Map
Contact Us
Mortgage Calculator
Property Summary
- Located in the Aurora Hills subdivision, 978 S Potomac Way Aurora CO is a Single Family for sale in Aurora, CO, 80012. It is listed for $460,000 and features 4 beds, 3 baths, and has approximately 1,758 square feet of living space, and was originally constructed in 1968. The current price per square foot is $262. The average price per square foot for Single Family listings in Aurora is $271. The average listing price for Single Family in Aurora is $600,801. To schedule a showing of MLS#rec6575671 at 978 S Potomac Way in Aurora, CO, contact your Smart Sale AI agent at 3039066915.
Similar Listings Nearby
Additional Details
MLS # : REC6575671
Listing Key : REC2051336059
Parcel Number : 031157331
Zip Code : 80012
City : Aurora
State : CO
Building if Condo :
Street : 978 S Potomac Way
Address : 978
Address Prefix :
Address Suffix : Way
Unit if Condo :
Latitude : 39.697929
Longitude : -104.832237
Property Type : singlefamily
Property Sub Type : Single Family Residence
Stories Total if Condo :
Lot Size : 8,625 sqft / 0.20 acres (approx)
Ownership : Individual
Zoning :
Condition :
Renovation :
Walk Score :
Pets Allowed : Yes
Special Conditions : None
Possession :
Original Price : 465000
Close Price :
Close Date :
List Date : Feb 9, 2026
List Contract Date : 2026-02-09
Off Market Date : 2026-03-09
Purchase Contract Date : 2026-03-09
Days on Market : 61
Days on Market SOLD :
Cumulative Days :
Days in MLS :
Sold DOM:
Concessions Amount :
Concession Comment :

Copyright 2026. All rights reserved.
978 S Potomac Way
Aurora, CO











































