16512 E Louisiana Drive Aurora CO 80017 MLS #REC2442329
GREAT PRICE REDUCTION!!! SCHEDULE A SHOWING TODAY!!! Welcome to a move-in ready home in the sought-after Lexington neighborhood that offers the ideal blend of location, lifestyle, and thoughtful updates in one compelling package. Ideally situated with quick access to I-225 and just minutes from Buckley Space Force Base, this home offers exceptional convenience to commuting routes, dining, and shopping.
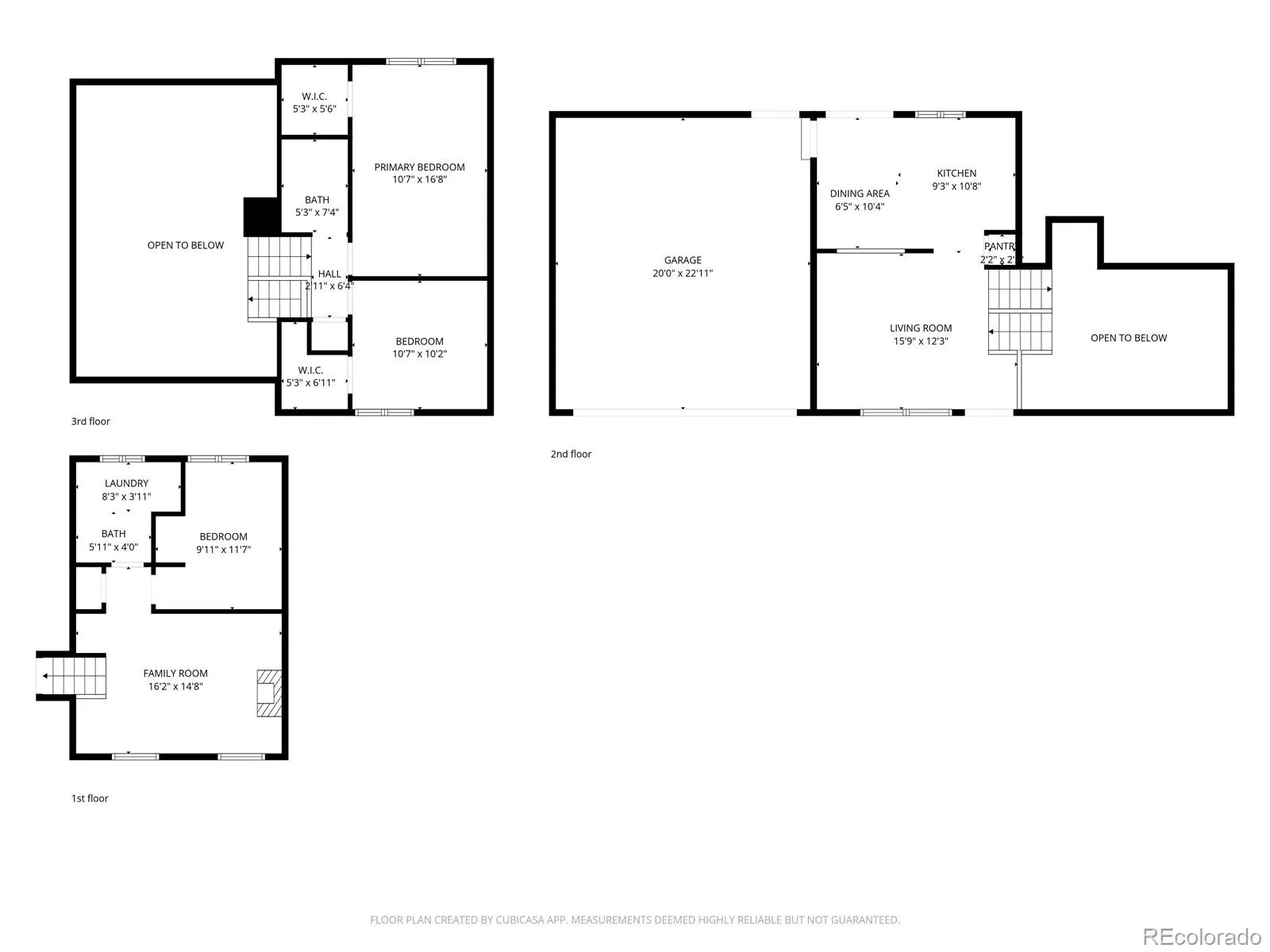
Enter an inviting tri-level design that creates an open, airy feel while maintaining distinct living spaces for comfort, flexibility, and functionality. Large windows throughout fill the home with natural light, enhancing the fresh interior paint and new carpet providing a crisp, modern backdrop, allowing you to move in and immediately enjoy the space. The updated kitchen features newer cabinets, appliances, and luxury vinyl flooring and flows seamlessly into the main living area, ideal for both everyday living and entertaining. Just a few steps down, the spacious family room provides a cozy yet expansive retreat, anchored by a charming fireplace that serves as a warm focal point. This home offers three spacious bedrooms (two with walk-in closets) and two updated bathrooms. The washer and dryer are conveniently located in the lower-level bathroom for added efficiency. Major system upgrades provide valuable peace of mind, including a newer roof (2021), newer electric panel (2023), and newer hot water heater (2023). A Tesla charging station further enhances the home’s modern appeal. A patio slider off the kitchen opens to a concrete patio, extending your living space outdoors. The spacious, flat backyard is a true highlight with mountain views and backs to a greenbelt with direct access to Rocky Ridge Park. Whether hosting gatherings, gardening, or simply relaxing at sunset, this setting is hard to match. Comfort, convenience, and scenic surroundings, this is Colorado living at its best. Schedule your showing today so you don’t miss this wonderful buying opportunity!
Enter an inviting tri-level design that creates an open, airy feel while maintaining distinct living spaces for comfort, flexibility, and functionality. Large windows throughout fill the home with natural light, enhancing the fresh interior paint and new carpet providing a crisp, modern backdrop, allowing you to move in and immediately enjoy the space. The updated kitchen features newer cabinets, appliances, and luxury vinyl flooring and flows seamlessly into the main living area, ideal for both everyday living and entertaining. Just a few steps down, the spacious family room provides a cozy yet expansive retreat, anchored by a charming fireplace that serves as a warm focal point. This home offers three spacious bedrooms (two with walk-in closets) and two updated bathrooms. The washer and dryer are conveniently located in the lower-level bathroom for added efficiency. Major system upgrades provide valuable peace of mind, including a newer roof (2021), newer electric panel (2023), and newer hot water heater (2023). A Tesla charging station further enhances the home’s modern appeal. A patio slider off the kitchen opens to a concrete patio, extending your living space outdoors. The spacious, flat backyard is a true highlight with mountain views and backs to a greenbelt with direct access to Rocky Ridge Park. Whether hosting gatherings, gardening, or simply relaxing at sunset, this setting is hard to match. Comfort, convenience, and scenic surroundings, this is Colorado living at its best. Schedule your showing today so you don’t miss this wonderful buying opportunity!
Property Details
Price:
$429,000
MLS #:
REC2442329
Status:
Active
Beds:
3
Baths:
2
Type:
Single Family
Subtype:
Single Family Residence
Subdivision:
Lexington
Finished Sq Ft:
1,320
Total Sq Ft:
1,320
Lot Size:
6,490 sqft / 0.15 acres (approx)
Year Built:
1980
Schools
School District:
Adams-Arapahoe 28J
Elementary School:
Iowa
Middle School:
Mrachek
High School:
Gateway
Interior
Above Grade Finished Area
1320
Appliances
Dishwasher, Disposal, Dryer, Electric Water Heater, Microwave, Oven, Range, Refrigerator, Washer
Bathrooms
1 Full Bathroom, 1 Half Bathroom
Cooling
Evaporative Cooling
Fireplaces Total
1
Flooring
Carpet, Vinyl
Heating
Baseboard, Electric
Interior Features
Eat-in Kitchen, High Speed Internet, Laminate Counters, Radon Mitigation System, Smoke Free, Walk-In Closet(s)
Levels
Tri-Level
Exterior
Architectural Style
Traditional
Attached Garage YN
1
Construction Materials
Brick, Frame, Vinyl Siding
Direction Faces
Northeast
Exterior Features
Private Yard, Rain Gutters
Fencing
Full
Garage Spaces
2
Lot Features
Greenbelt, Landscaped, Level, Near Public Transit
Parking Features
Concrete, Electric Vehicle Charging Station(s), Exterior Access Door
Parking Spots
2
Parking Total
2
Patio And Porch Features
Patio
Roof
Composition
Security Features
Carbon Monoxide Detector(s), Smoke Detector(s)
View
Mountain(s)
Window Features
Double Pane Windows
Financial
Tax Year
2024
Taxes
$2,698
Map
Contact Us
Mortgage Calculator
Property Summary
- Located in the Lexington subdivision, 16512 E Louisiana Drive Aurora CO is a Single Family for sale in Aurora, CO, 80017. It is listed for $429,000 and features 3 beds, 2 baths, and has approximately 1,320 square feet of living space, and was originally constructed in 1980. The current price per square foot is $325. The average price per square foot for Single Family listings in Aurora is $272. The average listing price for Single Family in Aurora is $601,294. To schedule a showing of MLS#rec2442329 at 16512 E Louisiana Drive in Aurora, CO, contact your Smart Sale AI agent at 3039066915.
Similar Listings Nearby
Additional Details
MLS # : REC2442329
Listing Key : REC2051993529
Parcel Number : 031395640
Zip Code : 80017
City : Aurora
State : CO
Building if Condo :
Street : 16512 E Louisiana Drive
Address : 16512
Address Prefix :
Address Suffix : Drive
Unit if Condo :
Latitude : 39.693794
Longitude : -104.795425
Property Type : singlefamily
Property Sub Type : Single Family Residence
Stories Total if Condo :
Lot Size : 6,490 sqft / 0.15 acres (approx)
Ownership : Individual
Zoning : SFR
Condition : Updated/Remodeled
Renovation :
Walk Score :
Pets Allowed :
Special Conditions : None
Possession : Closing/DOD
Original Price : 435000
Close Price :
Close Date :
List Date : Feb 20, 2026
List Contract Date : 2026-02-20
Off Market Date :
Purchase Contract Date :
Days on Market : 52
Days on Market SOLD :
Cumulative Days :
Days in MLS :
Sold DOM:
Concessions Amount :
Concession Comment :

Copyright 2026. All rights reserved.
16512 E Louisiana Drive
Aurora, CO











































