19098 E Ida Drive Aurora CO 80015 MLS #REC7237736
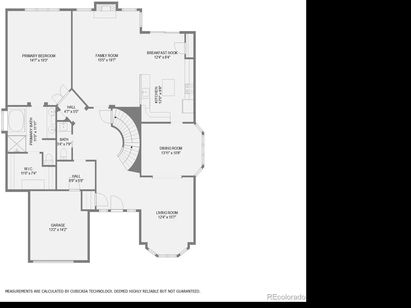
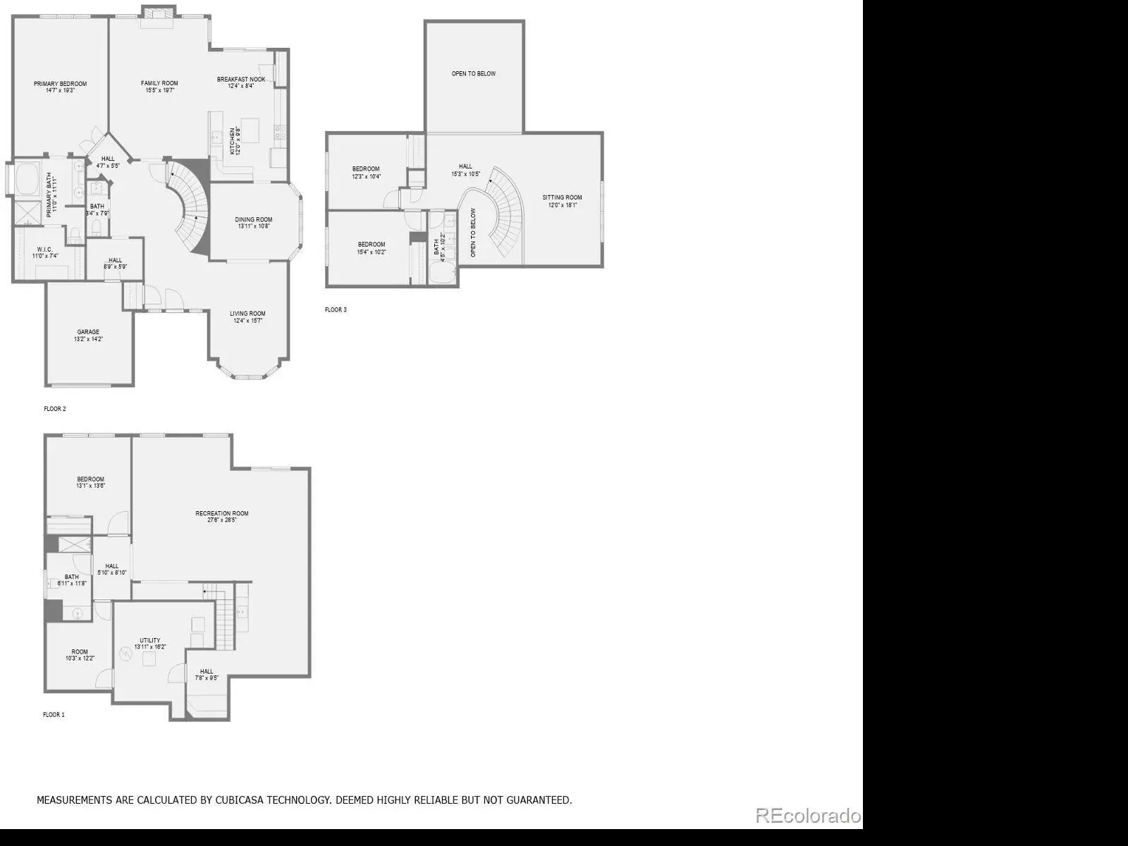
You need to see this “Move-in-Ready” home! 19098 E. Ida Drive, in the sought-after Tuscany Community, has the updates you want. Brand new quartz countertops were recently installed in the kitchen and secondary bathrooms and attractive luxury Plank Vinyl (LPV) floors were added throughout the first floor. To give the home a fresh look, the interior of the house has been painted as have cabinets in the kitchen and secondary bathrooms have been painted as well. The home also has a new one-year old roof, and a nicely finished 2 year old large walkout finished basement with a bedroom, office, a wet-bar, two entertainment areas and a modern bathroom with glass shower with beautiful subway tile on the shower walls. This 4 bedroom, 3 1/2 bath home includes a huge MAIN FLOOR primary bedroom, two upstairs bedrooms, a MURPHY BED in the loft area and a bedroom in the basement. This makes it perfect for a multi-generational family. If you like vaulted ceilings this is the house for you, as almost every main floor room has one, and the swooping staircase with metal railings going to the second floor gives the foyer a great look. The 5-piece primary bath has granite countertops and a glass shower and a walk-in closet with built-in shelves and dresser. To top it off, it has a gas fireplace in the family room with brick surround to ceiling, bay windows, ceiling fans and the house is wired for data to one access point. For the exterior of the house, you will love the two outdoor living spaces, including a relaxing front stone patio and the newer covered deck located off the kitchen. And to keep outside work to a minimum and keep water expenses low, the yard is fully xeriscaped. And the solar system will be assumed free and clear to keep your electric expenses down. This is a home you want to see. Set up a showing today!
Property Details
Price:
$689,000
MLS #:
REC7237736
Status:
Active Under Contract
Beds:
4
Baths:
4
Type:
Single Family
Subtype:
Single Family Residence
Subdivision:
Piney Creek East
Finished Sq Ft:
3,964
Total Sq Ft:
4,121
Lot Size:
6,403 sqft / 0.15 acres (approx)
Year Built:
1992
Schools
School District:
Cherry Creek 5
Elementary School:
Rolling Hills
Middle School:
Falcon Creek
High School:
Grandview
Interior
Above Grade Finished Area
2555
Appliances
Bar Fridge, Dishwasher, Disposal, Dryer, Gas Water Heater, Microwave, Oven, Refrigerator, Self Cleaning Oven, Sump Pump, Washer
Bathrooms
2 Full Bathrooms, 1 Three Quarter Bathroom, 1 Half Bathroom
Below Grade Finished Area
1409
Below Grade Unfinished Area
157
Cooling
Central Air
Fireplaces Total
1
Flooring
Carpet, Tile, Vinyl
Heating
Forced Air
Interior Features
Built-in Features, Ceiling Fan(s), Eat-in Kitchen, Five Piece Bath, Granite Counters, High Ceilings, High Speed Internet, Kitchen Island, Pantry, Primary Suite, Quartz Counters, Smoke Free, Vaulted Ceiling(s), Walk-In Closet(s), Wet Bar, Wired for Data
Laundry Features
In Unit
Levels
Two
Main Level Bathrooms
2
Main Level Bedrooms
1
Exterior
Architectural Style
Traditional
Association Amenities
Park, Playground, Pool, Tennis Court(s), Trail(s)
Attached Garage YN
1
Common Walls
No Common Walls
Construction Materials
Brick, Concrete, Frame, Wood Siding
Direction Faces
North
Exterior Features
Private Yard, Rain Gutters
Fencing
Full
Garage Spaces
2
Lot Features
Landscaped, Master Planned, Near Public Transit, Sloped, Sprinklers In Front, Sprinklers In Rear
Parking Features
Concrete
Parking Spots
2
Parking Total
2
Patio And Porch Features
Covered, Deck, Front Porch
Roof
Composition
Security Features
Carbon Monoxide Detector(s), Smoke Detector(s), Video Doorbell
Window Features
Bay Window(s), Double Pane Windows, Egress Windows
Financial
HOA Fee
$76
HOA Fee 2
$34
HOA Fee 2 Frequency
Monthly
HOA Fee Frequency
Monthly
HOA Includes
Maintenance Grounds, Recycling, Trash
HOA Name
AMI – Maintenance
HOA Name 2
AMI – Tuscany Recreation
HOA Phone
720-633-9722
HOA Phone 2
720-633-9722
Tax Year
2024
Taxes
$4,773
Map
Contact Us
Mortgage Calculator
Property Summary
- Located in the Piney Creek East subdivision, 19098 E Ida Drive Aurora CO is a Single Family for sale in Aurora, CO, 80015. It is listed for $689,000 and features 4 beds, 4 baths, and has approximately 3,964 square feet of living space, and was originally constructed in 1992. The current price per square foot is $174. The average price per square foot for Single Family listings in Aurora is $271. The average listing price for Single Family in Aurora is $600,744. To schedule a showing of MLS#rec7237736 at 19098 E Ida Drive in Aurora, CO, contact your Smart Sale AI agent at 3039066915.
Similar Listings Nearby
Additional Details
MLS # : REC7237736
Listing Key : REC2051611580
Parcel Number : 032628201
Zip Code : 80015
City : Aurora
State : CO
Building if Condo :
Street : 19098 E Ida Drive
Address : 19098
Address Prefix :
Address Suffix : Drive
Unit if Condo :
Latitude : 39.609299
Longitude : -104.765762
Property Type : singlefamily
Property Sub Type : Single Family Residence
Stories Total if Condo :
Lot Size : 6,403 sqft / 0.15 acres (approx)
Ownership : Individual
Zoning :
Condition : Updated/Remodeled
Renovation :
Walk Score :
Pets Allowed : Cats OK,Dogs OK
Special Conditions : None
Possession : Closing/DOD
Original Price : 719000
Close Price :
Close Date :
List Date : Jan 23, 2026
List Contract Date : 2026-01-23
Off Market Date : 2026-03-30
Purchase Contract Date : 2026-03-30
Days on Market : 78
Days on Market SOLD :
Cumulative Days :
Days in MLS :
Sold DOM:
Concessions Amount :
Concession Comment :

Copyright 2026. All rights reserved.
19098 E Ida Drive
Aurora, CO


















































