1258 Valentia Street Denver CO 80220 MLS #REC3076907
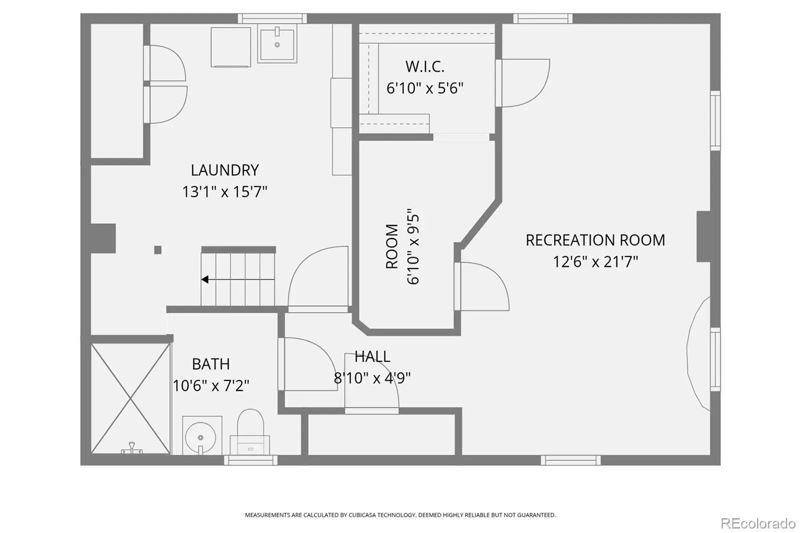
Charming cottage style home in the heart of the neighborhood just a half block from Verbena Park and with access to great schools. The curb appeal really shines in spring, summer, and fall with many perennials creating a sea of color in both the front and back yards. Inside, ample windows overlook the yards and flood the floor plan with natural light. There are hardwood floors throughout much of the main floor with tile in the kitchen, dining, and bathroom. The kitchen features new stainless appliances with a built-in microwave. On the main floor, two bedrooms share a full bath. The finished basement, with egress, doubles the space. There is a large 3rd bedroom or family room or the space could be divided to provide both. There are 2 walk-in closets and a recently remodeled 3/4 bath with oversized shower with dual shower heads. The laundry room is a tidy space with storage, stacked washer/dryer and utility sink. A new furnace was recently installed. Outside, the backyard is tranquil retreat with landscape lighting, a dedicated garden area, and a pergola topped patio. Truly a gem! The location on a quiet block with friendly neighbors is hard to beat with Lowry due South, Central Park to the North and easy access to popular destinations around town – like Cherry Creek, Downtown, and City Park with the Denver Zoo and Museum of Nature & Science. THIS HOUSE QUALIFIES FOR COMMUNITY REINVESTMENT ACT LOANS (CRA). Receive a 1.75% of the loan amount (up to $7000 max) as a credit towards buyer’s closing costs, pre-paids and discount points. If rates drop, refi under this program every 3 months and get the credit again. Program available to both investors and owner occupants. Another bank has a no down payment option under this program. Contact listing agent for more details.
Property Details
Price:
$520,000
MLS #:
REC3076907
Status:
Active
Beds:
3
Baths:
2
Type:
Single Family
Subtype:
Single Family Residence
Subdivision:
East Colfax
Finished Sq Ft:
1,546
Total Sq Ft:
1,546
Lot Size:
6,100 sqft / 0.14 acres (approx)
Year Built:
1945
Schools
School District:
Denver 1
Elementary School:
Montclair
Middle School:
Hill
High School:
George Washington
Interior
Above Grade Finished Area
773
Appliances
Dishwasher, Disposal, Dryer, Gas Water Heater, Microwave, Range, Refrigerator, Washer
Bathrooms
1 Full Bathroom, 1 Three Quarter Bathroom
Below Grade Finished Area
773
Cooling
Central Air
Flooring
Carpet, Tile, Wood
Heating
Forced Air, Natural Gas
Interior Features
Built-in Features, Ceiling Fan(s), Open Floorplan, Primary Suite, Sound System, Walk-In Closet(s), Wired for Data
Laundry Features
Sink, In Unit
Levels
One
Main Level Bathrooms
1
Main Level Bedrooms
2
Exterior
Architectural Style
Bungalow
Attached Garage YN
1
Common Walls
No Common Walls
Construction Materials
Frame
Direction Faces
West
Exterior Features
Garden, Private Yard, Rain Gutters
Fencing
Partial
Garage Spaces
1
Lot Features
Landscaped, Level, Near Public Transit, Sprinklers In Front
Parking Features
Concrete, Exterior Access Door, Lighted, Storage
Parking Spots
3
Parking Total
3
Patio And Porch Features
Covered, Front Porch, Patio
Roof
Composition
Security Features
Carbon Monoxide Detector(s), Smoke Detector(s)
Window Features
Double Pane Windows
Financial
Tax Year
2024
Taxes
$2,226
Map
Contact Us
Mortgage Calculator
Property Summary
- Located in the East Colfax subdivision, 1258 Valentia Street Denver CO is a Single Family for sale in Denver, CO, 80220. It is listed for $520,000 and features 3 beds, 2 baths, and has approximately 1,546 square feet of living space, and was originally constructed in 1945. The current price per square foot is $336. The average price per square foot for Single Family listings in Denver is $425. The average listing price for Single Family in Denver is $1,011,745. To schedule a showing of MLS#rec3076907 at 1258 Valentia Street in Denver, CO, contact your Smart Sale AI agent at 3039066915.
Similar Listings Nearby
Additional Details
MLS # : REC3076907
Listing Key : REC2051321021
Parcel Number : 6041-22-004
Zip Code : 80220
City : Denver
State : CO
Building if Condo :
Street : 1258 Valentia Street
Address : 1258
Address Prefix :
Address Suffix : Street
Unit if Condo :
Latitude : 39.736683
Longitude : -104.891586
Property Type : singlefamily
Property Sub Type : Single Family Residence
Stories Total if Condo :
Lot Size : 6,100 sqft / 0.14 acres (approx)
Ownership : Individual
Zoning : E-SU-DX
Condition :
Renovation :
Pets Allowed :
Special Conditions : None
Possession : Closing/DOD,Seller Rent Back
Original Price : 535000
Close Price :
Close Date :
List Date : Jan 8, 2026
List Contract Date : 2026-01-08
Off Market Date :
Purchase Contract Date :
Days on Market : 97
Concessions Amount :
Concession Comment :

Copyright 2026. All rights reserved.
1258 Valentia Street
Denver, CO




























