1055 S Elmira Street Denver CO 80247 MLS #REC9388658
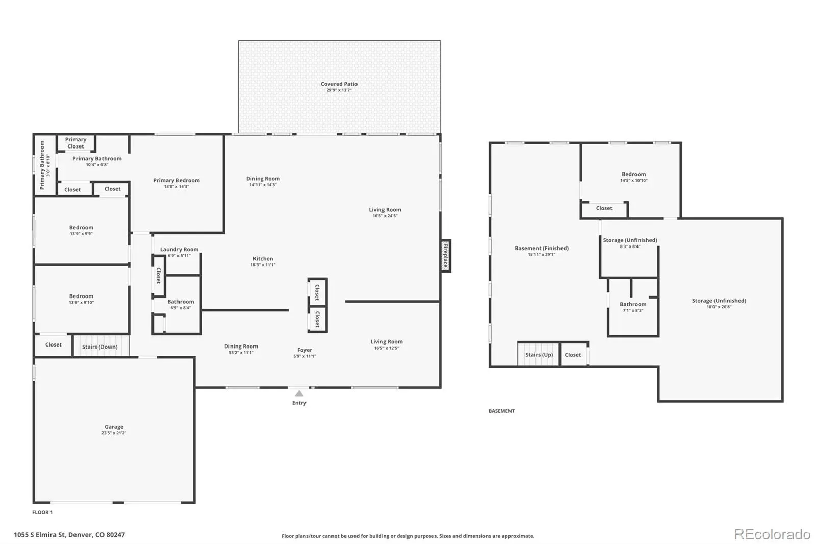
Discover a modern ranch-style sanctuary on a rare 1/3-acre lot where the border of Denver and Aurora meets total residential freedom. This meticulously maintained home offers a seamless open-concept flow, highlighted by fresh interior paint, newer vinyl plank flooring, and a stunning kitchen with quartz countertops that opens directly into a living room anchored by a cozy gas Mendota fireplace. Every major detail has been addressed for peace of mind, including a new roof, new siding, a newer sewer line, a radon mitigation system, and high-end Renewal by Andersen windows and doors throughout. The functional layout features three main-floor bedrooms and a convenient main-floor laundry, while the finished basement adds versatility with a full bathroom, a non-conforming fourth bedroom, and plenty of extra storage space. Unique to this property is the zoning for an Accessory Dwelling Unit (ADU), offering incredible potential for a guest house, studio, or rental income. Outside, the expansive, fenced backyard offers ultimate privacy with no neighbors behind, a large covered patio, and a storage shed. Car enthusiasts and adventurers will love the oversized, drywalled, and insulated 2-car garage with exterior access, complemented by dedicated RV parking. With no HOA or metro taxing district, and located just steps from biking trails and minutes from Costco, Downtown Denver, and DIA, this property is the perfect blend of suburban space and urban accessibility.
Property Details
Price:
$665,000
MLS #:
REC9388658
Status:
Active Under Contract
Beds:
4
Baths:
3
Type:
Single Family
Subtype:
Single Family Residence
Subdivision:
Range View Second Filing
Finished Sq Ft:
3,112
Total Sq Ft:
3,520
Lot Size:
13,700 sqft / 0.31 acres (approx)
Year Built:
1973
Schools
School District:
Denver 1
Elementary School:
Denver Green
Middle School:
Denver Green
High School:
George Washington
Interior
Above Grade Finished Area
2160
Appliances
Dishwasher, Disposal, Dryer, Gas Water Heater, Microwave, Oven, Refrigerator, Washer
Bathrooms
1 Full Bathroom, 2 Three Quarter Bathrooms
Below Grade Finished Area
952
Below Grade Unfinished Area
408
Cooling
Evaporative Cooling
Fireplaces Total
1
Flooring
Carpet, Tile, Vinyl
Heating
Forced Air
Interior Features
Ceiling Fan(s), Eat-in Kitchen, Open Floorplan, Quartz Counters, Radon Mitigation System
Laundry Features
In Unit
Levels
One
Main Level Bathrooms
2
Main Level Bedrooms
3
Exterior
Architectural Style
Traditional
Attached Garage YN
1
Construction Materials
Brick, Frame
Direction Faces
East
Exterior Features
Garden, Private Yard
Fencing
Full
Garage Spaces
2
Lot Features
Landscaped, Level, Near Public Transit, Sprinklers In Front, Sprinklers In Rear
Parking Features
Dry Walled, Exterior Access Door, Insulated Garage
Parking Spots
3
Parking Total
3
Patio And Porch Features
Covered, Front Porch, Patio
Roof
Composition
View
Mountain(s)
Window Features
Double Pane Windows
Financial
Tax Year
2024
Taxes
$2,690
Map
Contact Us
Mortgage Calculator
Property Summary
- Located in the Range View Second Filing subdivision, 1055 S Elmira Street Denver CO is a Single Family for sale in Denver, CO, 80247. It is listed for $665,000 and features 4 beds, 3 baths, and has approximately 3,112 square feet of living space, and was originally constructed in 1973. The current price per square foot is $214. The average price per square foot for Single Family listings in Denver is $423. The average listing price for Single Family in Denver is $1,004,715. To schedule a showing of MLS#rec9388658 at 1055 S Elmira Street in Denver, CO, contact your Smart Sale AI agent at 3039066915.
Similar Listings Nearby
Additional Details
MLS # : REC9388658
Listing Key : REC2052847372
Parcel Number : 6154-02-017
Zip Code : 80247
City : Denver
State : CO
Building if Condo :
Street : 1055 S Elmira Street
Address : 1055
Address Prefix :
Address Suffix : Street
Unit if Condo :
Latitude : 39.697330
Longitude : -104.873329
Property Type : singlefamily
Property Sub Type : Single Family Residence
Stories Total if Condo :
Lot Size : 13,700 sqft / 0.31 acres (approx)
Ownership : Individual
Zoning : S-SU-I
Condition :
Renovation :
Walk Score :
Pets Allowed :
Special Conditions : None
Possession : Negotiable
Original Price : 665000
Close Price :
Close Date :
List Date : Mar 26, 2026
List Contract Date : 2026-03-26
Off Market Date : 2026-04-01
Purchase Contract Date : 2026-04-01
Days on Market : 18
Days on Market SOLD :
Cumulative Days :
Days in MLS :
Sold DOM:
Concessions Amount :
Concession Comment :

Copyright 2026. All rights reserved.
1055 S Elmira Street
Denver, CO



















































