1880 S Monaco Parkway Denver CO 80224 MLS #REC4142503
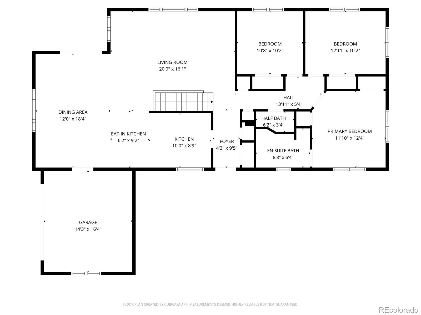
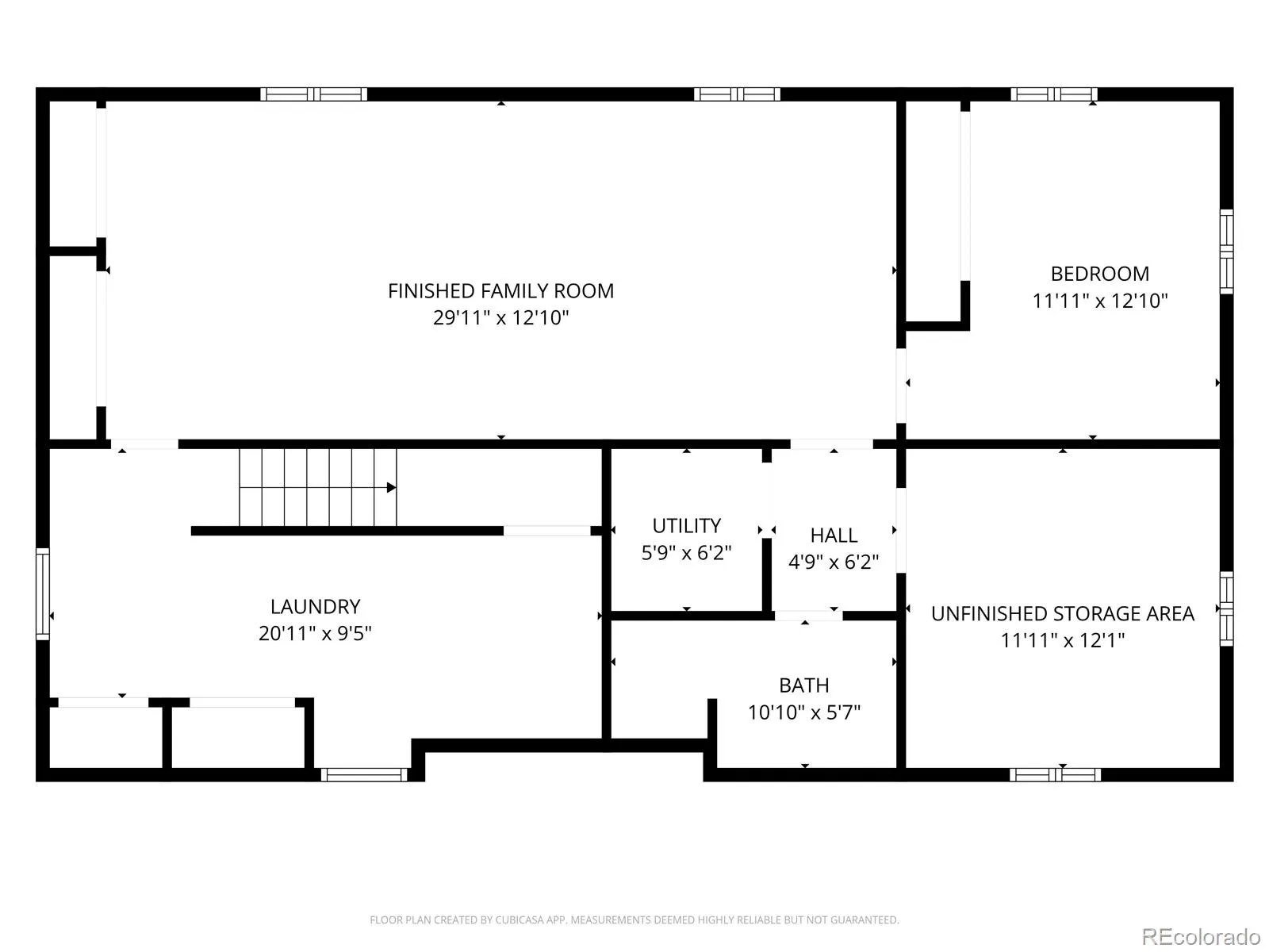
This beautifully updated Virginia Village home features gorgeous original hardwood floors and a thoughtfully finished layout. The expansive main level offers three spacious bedrooms and light-filled living areas that feel open yet inviting. The kitchen showcases custom wood cabinetry, granite counter tops, generous storage, and a warm, functional design suited for everyday living and entertaining. Bathrooms have been tastefully renovated including a stunning primary en-suite primary bath. The full finished basement offers substantial additional square footage and flexibility with an additional bedroom, a beautifully updated bathroom with steam shower, laundry area and tons of storage space! The property also includes an oversized two-car garage, a private patio, and a backyard full of potential for gardening, play, or future enhancement. Fully paid-off solar panels provide energy efficiency and long-term savings, and a 1-year home warranty is included to offer added confidence in your investment. Although the home fronts Monaco Parkway, garage access is conveniently located off the 18th Avenue cul-de-sac—providing easier, quieter, and more secure entry. Public records have not been updated and do not include home’s full finished square footage (basement). Ideally situated in Virginia Village near parks, the Cherry Creek Trail (a biker’s paradise!), shopping, dining, and commuter routes, this home offers enduring character, functional space, and incredible long-term value in this well-established Denver neighborhood.
Property Details
Price:
$699,000
MLS #:
REC4142503
Status:
Active
Beds:
4
Baths:
3
Type:
Single Family
Subtype:
Single Family Residence
Subdivision:
Virginia Village
Finished Sq Ft:
2,673
Total Sq Ft:
2,788
Lot Size:
7,610 sqft / 0.17 acres (approx)
Year Built:
1962
Schools
School District:
Denver 1
Elementary School:
McMeen
Middle School:
Hill
High School:
Thomas Jefferson
Interior
Above Grade Finished Area
1514
Appliances
Cooktop, Dishwasher, Disposal, Double Oven, Dryer, Microwave, Range, Refrigerator, Washer
Bathrooms
2 Three Quarter Bathrooms, 1 Half Bathroom
Below Grade Finished Area
1159
Below Grade Unfinished Area
115
Cooling
Central Air
Flooring
Carpet, Tile, Wood
Heating
Forced Air, Solar
Interior Features
Ceiling Fan(s), Eat-in Kitchen, Granite Counters, High Ceilings, Kitchen Island, Open Floorplan, Pantry, Primary Suite, Smoke Free
Laundry Features
In Unit
Levels
One
Main Level Bathrooms
2
Main Level Bedrooms
3
Exterior
Architectural Style
Mid-Century Modern
Attached Garage YN
1
Construction Materials
Brick
Direction Faces
West
Exterior Features
Private Yard, Rain Gutters
Fencing
Partial
Garage Spaces
2
Lot Features
Cul-De-Sac, Level, Near Public Transit, Sprinklers In Front, Sprinklers In Rear
Parking Features
Concrete, Oversized
Parking Spots
2
Parking Total
2
Patio And Porch Features
Patio
Roof
Composition
Window Features
Double Pane Windows
Financial
Tax Year
2024
Taxes
$2,275
Map
Contact Us
Mortgage Calculator
Property Summary
- Located in the Virginia Village subdivision, 1880 S Monaco Parkway Denver CO is a Single Family for sale in Denver, CO, 80224. It is listed for $699,000 and features 4 beds, 3 baths, and has approximately 2,673 square feet of living space, and was originally constructed in 1962. The current price per square foot is $262. The average price per square foot for Single Family listings in Denver is $424. The average listing price for Single Family in Denver is $1,006,473. To schedule a showing of MLS#rec4142503 at 1880 S Monaco Parkway in Denver, CO, contact your Smart Sale AI agent at 3039066915.
Similar Listings Nearby
Additional Details
MLS # : REC4142503
Listing Key : REC2052360573
Parcel Number : 6204-07-018
Zip Code : 80224
City : Denver
State : CO
Building if Condo :
Street : 1880 S Monaco Parkway
Address : 1880
Address Prefix :
Address Suffix : Parkway
Unit if Condo :
Latitude : 39.682674
Longitude : -104.912590
Property Type : singlefamily
Property Sub Type : Single Family Residence
Stories Total if Condo :
Lot Size : 7,610 sqft / 0.17 acres (approx)
Ownership : Individual
Zoning : S-SU-D
Condition : Updated/Remodeled
Renovation :
Pets Allowed :
Special Conditions : None
Possession : Closing/DOD,Immediate
Original Price : 710000
Close Price :
Close Date :
List Date : Mar 6, 2026
List Contract Date : 2026-03-06
Off Market Date :
Purchase Contract Date :
Days on Market : 38
Concessions Amount :
Concession Comment :

Copyright 2026. All rights reserved.
1880 S Monaco Parkway
Denver, CO


















































