8730 Seton Street Westminster CO 80031 MLS #REC5060915
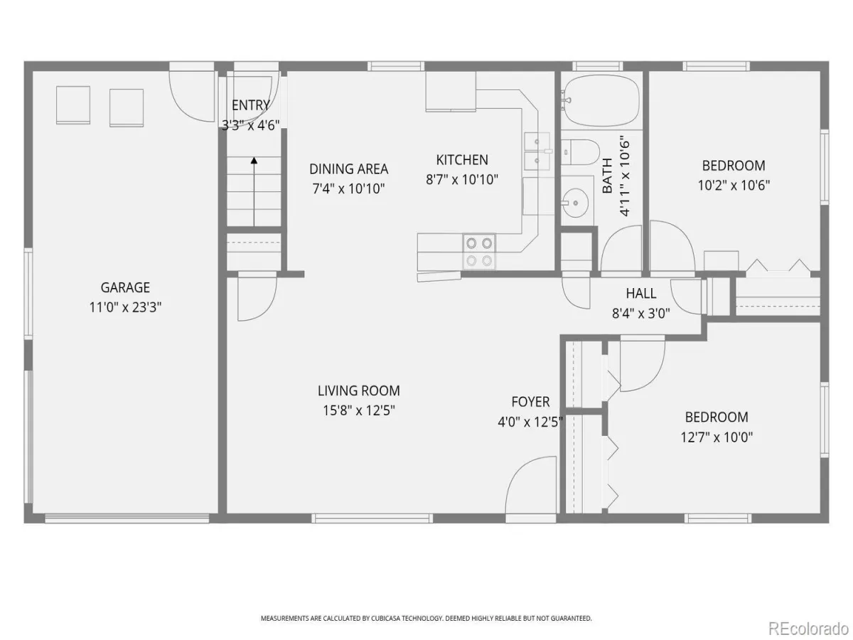
Welcome home to this charming ranch-style home in the heart of Westminster, offering comfort, functionality, and abundant natural light. The main level features an open floor plan with beautiful hardwood flooring, a spacious kitchen with stainless steel appliances, ample cabinetry, and room for dining. Two generously sized bedrooms are located on the main level, complete with a full bathroom. The finished basement offers a large great room perfect for a media space, recreation, or additional living area. A third spacious bedroom includes a private full bath and walk-in closet, ideal for possible primary bedroom, guests or multigenerational living. The oversized laundry room provides additional storage and flexibility. Situated on a large lot with no HOA, the outdoor space is full of potential, featuring RV parking, a storage shed, and plenty of room for gardening, entertaining, or future customization. Enjoy a welcoming front porch, additional off-street parking, and a quiet neighborhood with easy access to shopping, dining, and major routes. Book your showing today!
Property Details
Price:
$525,000
MLS #:
REC5060915
Status:
Active
Beds:
3
Baths:
2
Type:
Single Family
Subtype:
Single Family Residence
Subdivision:
Shaw Heights
Finished Sq Ft:
1,901
Total Sq Ft:
1,950
Lot Size:
7,700 sqft / 0.18 acres (approx)
Year Built:
1970
Schools
School District:
Westminster Public Schools
Elementary School:
Flynn
Middle School:
Shaw Heights
High School:
Westminster
Interior
Above Grade Finished Area
975
Bathrooms
2 Full Bathrooms
Below Grade Finished Area
926
Below Grade Unfinished Area
49
Cooling
Central Air
Flooring
Carpet, Tile, Wood
Heating
Forced Air
Interior Features
Laminate Counters, Open Floorplan
Levels
One
Main Level Bathrooms
1
Main Level Bedrooms
2
Exterior
Attached Garage YN
1
Construction Materials
Brick, Wood Siding
Exterior Features
Private Yard
Fencing
Full
Garage Spaces
1
Parking Spots
3
Parking Total
3
Patio And Porch Features
Front Porch, Patio
Roof
Composition
Financial
Tax Year
2025
Taxes
$3,680
Map
Contact Us
Mortgage Calculator
Property Summary
- Located in the Shaw Heights subdivision, 8730 Seton Street Westminster CO is a Single Family for sale in Westminster, CO, 80031. It is listed for $525,000 and features 3 beds, 2 baths, and has approximately 1,901 square feet of living space, and was originally constructed in 1970. The current price per square foot is $276. The average price per square foot for Single Family listings in Westminster is $313. The average listing price for Single Family in Westminster is $743,003. To schedule a showing of MLS#rec5060915 at 8730 Seton Street in Westminster, CO, contact your Smart Sale AI agent at 3039066915.
Similar Listings Nearby
Additional Details
MLS # : REC5060915
Listing Key : REC2053268064
Parcel Number : R0062684
Zip Code : 80031
City : Westminster
State : CO
Building if Condo :
Street : 8730 Seton Street
Address : 8730
Address Prefix :
Address Suffix : Street
Unit if Condo :
Latitude : 39.855186
Longitude : -105.044556
Property Type : singlefamily
Property Sub Type : Single Family Residence
Stories Total if Condo :
Lot Size : 7,700 sqft / 0.18 acres (approx)
Ownership : Individual
Zoning : R-1-C
Condition :
Renovation :
Walk Score :
Pets Allowed :
Special Conditions : None
Possession : Closing/DOD
Original Price : 525000
Close Price :
Close Date :
List Date : Apr 9, 2026
List Contract Date : 2026-04-09
Off Market Date :
Purchase Contract Date :
Days on Market : 4
Days on Market SOLD :
Cumulative Days :
Days in MLS :
Sold DOM:
Concessions Amount :
Concession Comment :

Copyright 2026. All rights reserved.
8730 Seton Street
Westminster, CO


































