6115 Garrison Street Arvada CO 80004 MLS #REC6666511
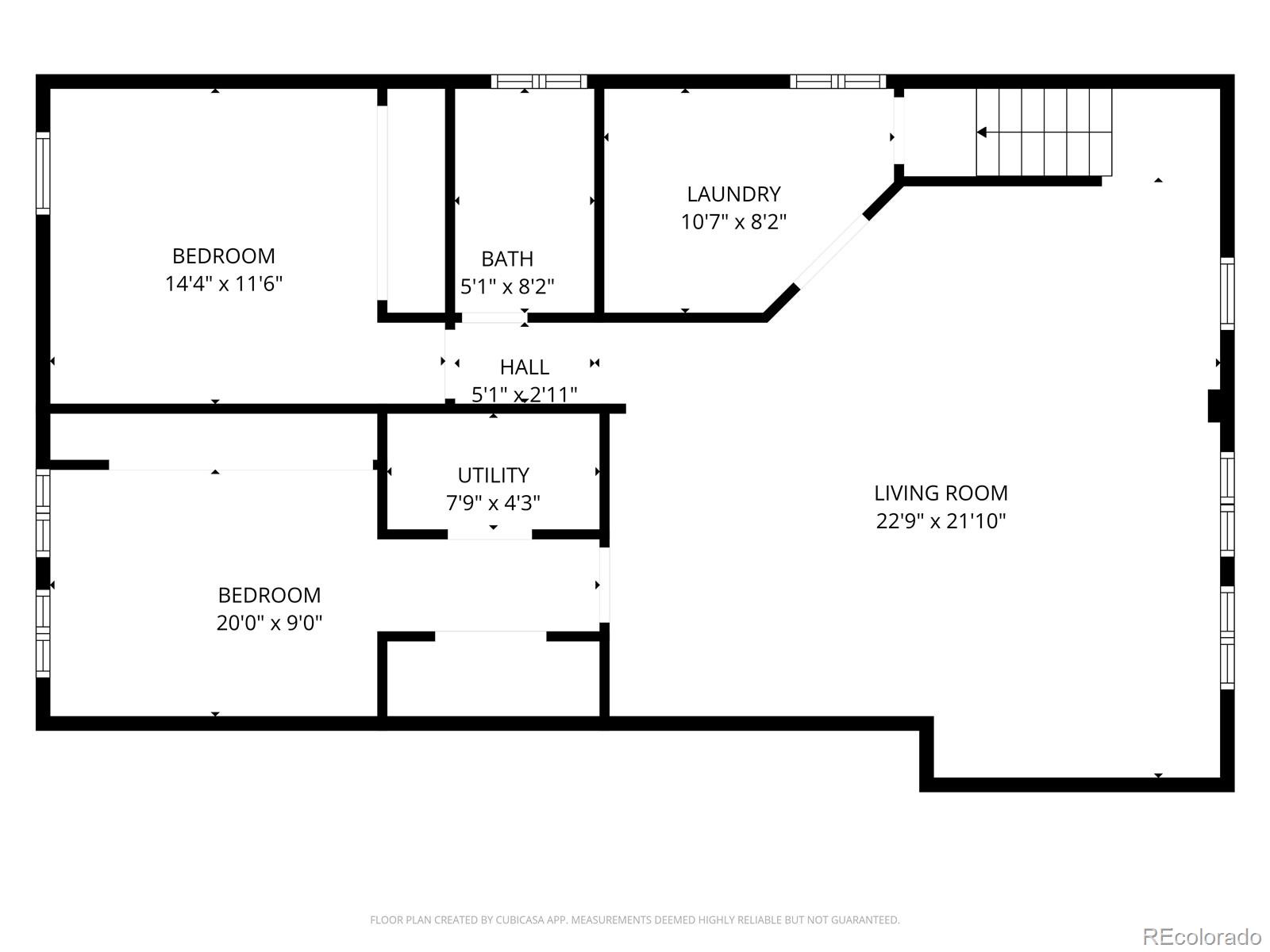
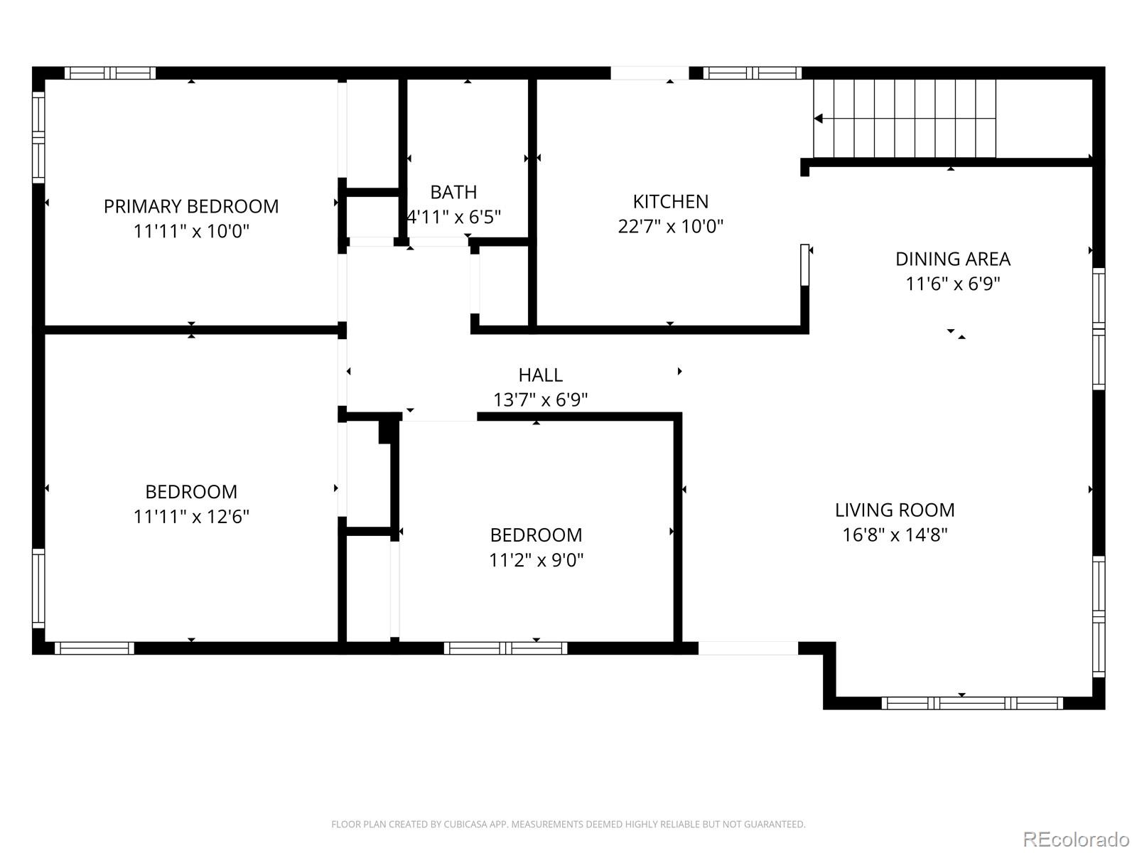
New Price! Welcome to this beautifully updated 5-bedroom, 2-bathroom home in the highly desirable Alta Vista neighborhood of Arvada. With thoughtful upgrades and a fantastic location near Olde Town Arvada, this home offers comfort, style, and convenience. The main floor features an open floor plan that seamlessly connects the living, dining, and kitchen areas. Enjoy upgraded flooring, fresh paint, and modern appliances, including a newer oven/range and dishwasher. Three bedrooms and an updated bathroom complete this level, creating an inviting space for everyday living. The finished basement expands your living options with a large living room, ¾ bathroom, two spacious bedrooms with ample storage, a convenient kitchenette, and abundant storage. Perfect for guests, multi-generational living, or a private retreat. Additional highlights include a newer roof, windows, flooring, and interior paint, ensuring peace of mind and efficiency. Step outside to a large private backyard, ideal for gardening, entertaining, or simply enjoying Colorado’s beautiful seasons. Bonus treehouse and shed included. Located in a quiet neighborhood just minutes from Olde Town Arvada, you’ll love the easy access to local shops, dining, breweries, parks, and the light rail for quick trips to downtown Denver. This home offers the best of Arvada living, upgrades, space, and location all in one.
Property Details
Price:
$615,000
MLS #:
REC6666511
Status:
Active
Beds:
5
Baths:
2
Type:
Single Family
Subtype:
Single Family Residence
Subdivision:
Alta Vista
Finished Sq Ft:
2,204
Total Sq Ft:
2,204
Lot Size:
6,882 sqft / 0.16 acres (approx)
Year Built:
1956
Schools
School District:
Jefferson County R-1
Elementary School:
Lawrence
Middle School:
Arvada K-8
High School:
Arvada
Interior
Above Grade Finished Area
1102
Appliances
Dishwasher, Disposal, Dryer, Gas Water Heater, Microwave, Oven, Refrigerator, Washer
Bathrooms
1 Full Bathroom, 1 Three Quarter Bathroom
Below Grade Finished Area
1102
Cooling
Evaporative Cooling
Flooring
Carpet, Vinyl
Heating
Forced Air, Natural Gas
Interior Features
Built-in Features, Ceiling Fan(s), Granite Counters, Open Floorplan
Laundry Features
In Unit
Levels
One
Main Level Bathrooms
1
Main Level Bedrooms
3
Exterior
Construction Materials
Brick, Frame
Exterior Features
Private Yard, Rain Gutters
Fencing
Full
Lot Features
Level, Near Public Transit
Parking Spots
2
Parking Total
2
Patio And Porch Features
Front Porch, Patio
Roof
Composition
Window Features
Double Pane Windows
Financial
Tax Year
2024
Taxes
$3,062
Map
Contact Us
Mortgage Calculator
Property Summary
- Located in the Alta Vista subdivision, 6115 Garrison Street Arvada CO is a Single Family for sale in Arvada, CO, 80004. It is listed for $615,000 and features 5 beds, 2 baths, and has approximately 2,204 square feet of living space, and was originally constructed in 1956. The current price per square foot is $279. The average price per square foot for Single Family listings in Arvada is $304. The average listing price for Single Family in Arvada is $828,107. To schedule a showing of MLS#rec6666511 at 6115 Garrison Street in Arvada, CO, contact your Smart Sale AI agent at 3039066915.
Similar Listings Nearby
Additional Details
MLS ID : REC6666511
Listing Key : REC2053118577
Parcel Number : 009220
Zip Code : 80004
City : Arvada
State : CO
Building if Condo :
Full Street: 6115 Garrison Street
Address : 6115
Address Prefix :
Address Suffix : Street
Street : Garrison
Street Prefix :
Street Suffix :
Unit if Condo :
Latitude : 39.807888
Longitude : -105.100540
Property Type : singlefamily
Property Sub Type : Single Family Residence
Stories Total if Condo :
Lot Size : 6,882 sqft / 0.16 acres (approx)
Ownership : Individual
Zoning :
Condition :
Renovation :
Pets Allowed :
Special Conditions : None
Possession : Negotiable,See Remarks
Original Price : 625000
Close Price :
Close Date :
List Date : Apr 9, 2026
List Contract Date : 2026-04-09
Off Market Date :
Purchase Contract Date :
Days on Market : 47
Concessions Amount :
Concession Comment :
Renovation :
Company : Keller Williams Realty Downtown LLC

Copyright 2026. All rights reserved.
6115 Garrison Street
Arvada, CO































