5290 Balsam Street Arvada CO 80002 MLS #REC5712166
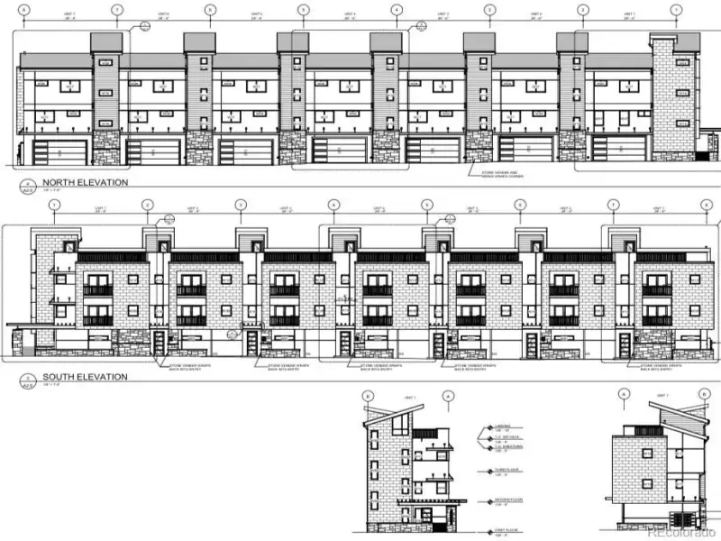
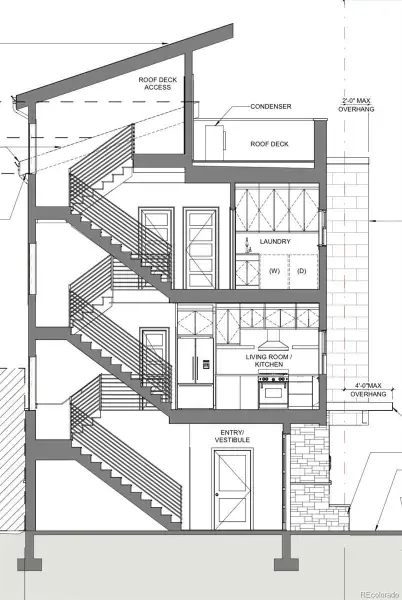
This is a fully entitled 7-unit townhome development opportunity on a shovel ready lot! Save 3 years of planning and permitting and jump right into this beautiful townhome build. This price includes final sets of city approved construction documents! These striking 3 story townhomes includes roof decks, 3 balconies, 2 car garages and average at 1700 sf each. The townhomes were designed to be able to sell or keep as rentals. Perfectly located within a mile of Olde Town Arvada and the light rail. The lot has been cleared and is ready to go!
Property Details
Price:
$799,000
MLS #:
REC5712166
Status:
Active
Beds:
0
Baths:
0
Type:
Land
Subtype:
Improved Land
Subdivision:
I-70 Corridor-2337
Lot Size:
23,958 sqft / 0.55 acres (approx)
Schools
School District:
Jefferson County R-1
Interior
Exterior
Fencing
None
Lot Features
Ditch, Level, Near Public Transit
Financial
Tax Year
2024
Taxes
$3,926
Map
Contact Us
Mortgage Calculator
Property Summary
- Located in the I-70 Corridor-2337 subdivision, 5290 Balsam Street Arvada CO is a Land for sale in Arvada, CO, 80002. It is listed for $799,000 and features 1 acres. To schedule a showing of MLS#rec5712166 at 5290 Balsam Street in Arvada, CO, contact your Smart Sale AI agent at 3039066915.
Similar Listings Nearby
Additional Details
MLS ID : REC5712166
Listing Key : REC2050734422
Parcel Number : 004426
Zip Code : 80002
City : Arvada
State : CO
Building if Condo :
Full Street: 5290 Balsam Street
Address : 5290
Address Prefix :
Address Suffix : Street
Street : Balsam
Street Prefix :
Street Suffix :
Unit if Condo :
Latitude : 39.792809
Longitude : -105.088120
Property Type : land
Property Sub Type : Improved Land
Stories Total if Condo :
Lot Size : 23,958 sqft / 0.55 acres (approx)
Ownership : Agent Owner
Zoning : R-13
Condition :
Renovation :
Pets Allowed :
Special Conditions : None
Possession :
Original Price : 949000
Close Price :
Close Date :
List Date : Nov 11, 2025
List Contract Date : 2025-11-11
Off Market Date :
Purchase Contract Date :
Days on Market : 196
Concessions Amount :
Concession Comment :
Renovation :
Company : HomeSmart Realty

Copyright 2026. All rights reserved.
5290 Balsam Street
Arvada, CO





