8520 W 59th Avenue Arvada CO 80004 MLS #REC7552701
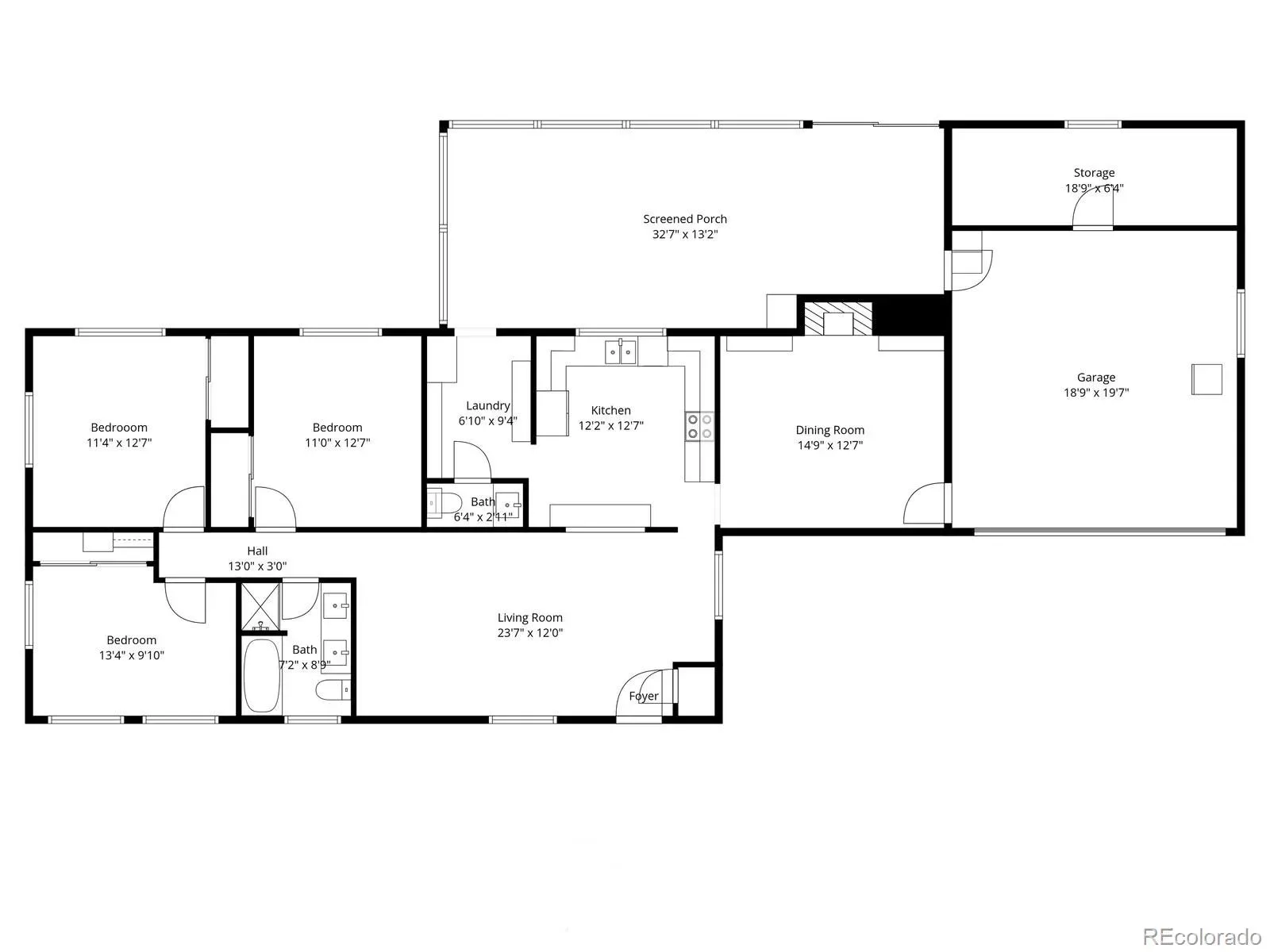
If the feeling of “home” had a street, it would be 59th Avenue – wide, scenic, and known for friendly neighbors, driveway drinks, and the smell of BBQ’ing on summer evenings! Nestled in between Downtown Arvada and Ralston Creek Central Park this ranch home welcomes you to one of the city’s best locales. True main level living with nearly 2,000 square feet above grade, this home offers ample living areas and entertaining options. Step inside and be greeted by the warmth of original hardwood floors that flow throughout much of the home, complemented by durable ceramic tile. The hearth dining/living area is highlighted by a cozy wood burning fireplace. The updated kitchen features stainless appliances and ample cabinetry + two pass through breakfast bars. Off the kitchen a laundry/utility area + powder bath add convenience. Three large bedrooms are complimented by a five piece hall bath including double vanity, tub + separate shower. The expansive sun room adds the perfect spot to spread out and enjoy views of the landscaped, fenced ¼ acre backyard. The fully sprinklered yard adds a wood pergola, newer concrete patio, oversized storage shed, retractable awning and raised garden beds – your iconic backyard entertaining dreams await! You’ll also find a large two car garage with added rear storage, newer concrete driveway with ample off street parking. Newer vinyl windows throughout + newer boiler. New sewer line going in prior to close. Step out your door to miles of trails along Ralston Creek, hit Johnny Roberts Disc Golf Course at Memorial Park, stop by Arvada Beer Garden for a froze on the patio, or head a few blocks into Historic Olde Town Arvada for one of their many events, festivals and markets and visit your pick of restaurants, watering holes or locally-owned boutiques.
Property Details
Price:
$750,000
MLS #:
REC7552701
Status:
Active Under Contract
Beds:
3
Baths:
2
Type:
Single Family
Subtype:
Single Family Residence
Subdivision:
Olde Town Arvada
Finished Sq Ft:
1,982
Total Sq Ft:
1,982
Lot Size:
9,932 sqft / 0.23 acres (approx)
Year Built:
1955
Schools
School District:
Jefferson County R-1
Elementary School:
Lawrence
Middle School:
North Arvada
High School:
Arvada
Interior
Above Grade Finished Area
1982
Appliances
Disposal, Microwave, Oven, Range, Refrigerator
Bathrooms
1 Full Bathroom, 1 Half Bathroom
Cooling
Evaporative Cooling
Fireplaces Total
1
Flooring
Tile, Wood
Heating
Forced Air
Interior Features
Granite Counters
Laundry Features
In Unit
Levels
One
Main Level Bathrooms
2
Main Level Bedrooms
3
Exterior
Architectural Style
Traditional
Attached Garage YN
1
Construction Materials
Brick, Frame
Direction Faces
North
Exterior Features
Private Yard
Fencing
Full
Garage Spaces
2
Lot Features
Cul-De-Sac, Sprinklers In Front, Sprinklers In Rear
Parking Spots
4
Parking Total
4
Patio And Porch Features
Front Porch
Roof
Composition
Security Features
Smoke Detector(s)
Window Features
Bay Window(s)
Financial
Tax Year
2024
Taxes
$3,805
Map
Contact Us
Mortgage Calculator
Property Summary
- Located in the Olde Town Arvada subdivision, 8520 W 59th Avenue Arvada CO is a Single Family for sale in Arvada, CO, 80004. It is listed for $750,000 and features 3 beds, 2 baths, and has approximately 1,982 square feet of living space, and was originally constructed in 1955. The current price per square foot is $378. The average price per square foot for Single Family listings in Arvada is $336. The average listing price for Single Family in Arvada is $814,327. To schedule a showing of MLS#rec7552701 at 8520 W 59th Avenue in Arvada, CO, contact your Smart Sale AI agent at 3039066915.
Similar Listings Nearby
Additional Details
MLS # : REC7552701
Listing Key : REC2052325253
Parcel Number : 008067
Zip Code : 80004
City : Arvada
State : CO
Building if Condo :
Street : 8520 W 59th Avenue
Address : 8520
Address Prefix :
Address Suffix : Avenue
Unit if Condo :
Latitude : 39.803082
Longitude : -105.093788
Property Type : singlefamily
Property Sub Type : Single Family Residence
Stories Total if Condo :
Lot Size : 9,932 sqft / 0.23 acres (approx)
Ownership : Corporation/Trust
Zoning : Res
Condition :
Renovation :
Pets Allowed :
Special Conditions : None
Possession : Closing/DOD
Original Price : 750000
Close Price :
Close Date :
List Date : Mar 13, 2026
List Contract Date : 2026-03-13
Off Market Date : 2026-03-28
Purchase Contract Date : 2026-03-28
Days on Market : 35
Concessions Amount :
Concession Comment :

Copyright 2026. All rights reserved.
8520 W 59th Avenue
Arvada, CO

















































