3698 S Norfolk Way Aurora CO 80013 MLS #REC8128590
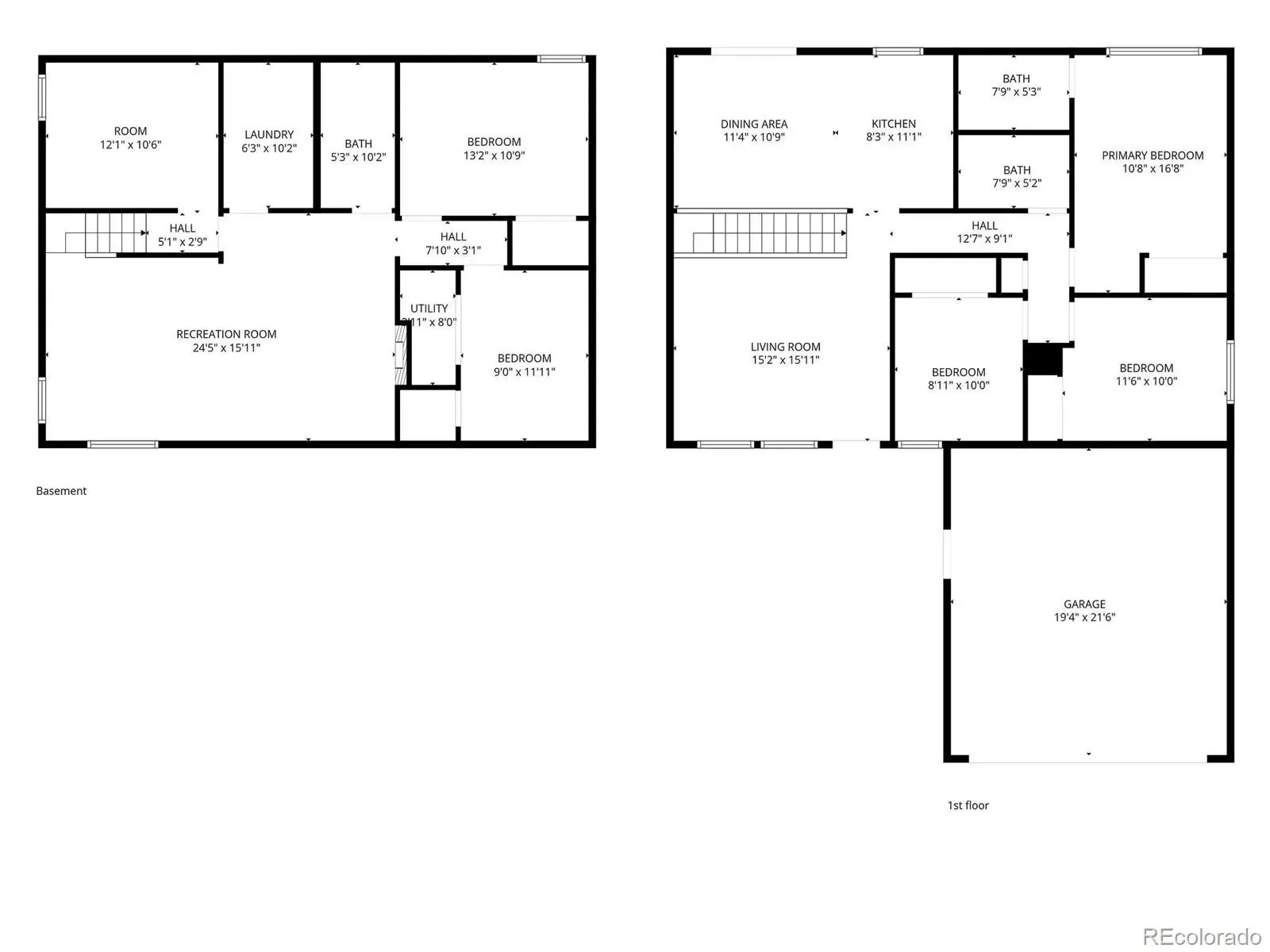
Welcome to this spacious 6-bedroom, 3-bathroom home in the desirable Mission Viejo neighborhood of Aurora, in the Cherry Creek School District. With a functional layout and generous living space, this home offers flexibility for larger households, multi-generational living, or work-from-home needs. The main level features a bright living room with large windows that bring in abundant natural light. The kitchen offers ample cabinet and counter space with convenient access to the dining and living areas, making everyday living and entertaining easy. Well-sized bedrooms provide comfortable retreats throughout the home.
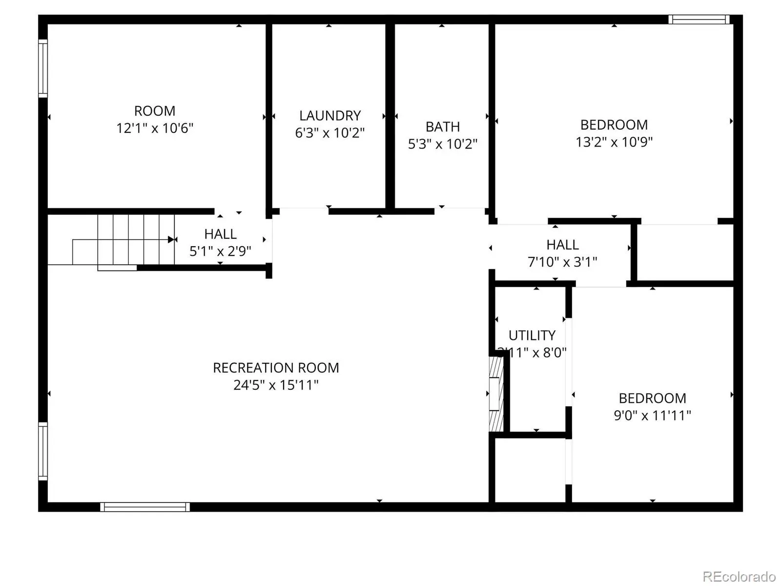
The finished basement significantly expands the home’s living space with additional bedrooms, a full bathroom, and versatile areas that can be used as a recreation room, home office, gym, or guest space. With six total bedrooms and three bathrooms, this home offers exceptional space and flexibility.
Enjoy the private yard with room for relaxing, entertaining, gardening, or pets.
Location is a standout feature. The home is within walking distance to Mission Viejo Park and close to neighborhood schools, shopping, and dining. Commuters will appreciate quick 5-minute access to I-225, providing convenient connections throughout the Denver metro area. Outdoor enthusiasts will love being just 10 minutes from Cherry Creek State Park, offering trails, biking, boating, camping, and year-round recreation.
The finished basement significantly expands the home’s living space with additional bedrooms, a full bathroom, and versatile areas that can be used as a recreation room, home office, gym, or guest space. With six total bedrooms and three bathrooms, this home offers exceptional space and flexibility.
Enjoy the private yard with room for relaxing, entertaining, gardening, or pets.
Location is a standout feature. The home is within walking distance to Mission Viejo Park and close to neighborhood schools, shopping, and dining. Commuters will appreciate quick 5-minute access to I-225, providing convenient connections throughout the Denver metro area. Outdoor enthusiasts will love being just 10 minutes from Cherry Creek State Park, offering trails, biking, boating, camping, and year-round recreation.
Property Details
Price:
$549,000
MLS #:
REC8128590
Status:
Active
Beds:
6
Baths:
3
Type:
Single Family
Subtype:
Single Family Residence
Subdivision:
Mission Viejo
Finished Sq Ft:
2,240
Total Sq Ft:
2,240
Lot Size:
5,227 sqft / 0.12 acres (approx)
Year Built:
1979
Schools
School District:
Cherry Creek 5
Elementary School:
Mission Viejo
Middle School:
Laredo
High School:
Smoky Hill
Interior
Above Grade Finished Area
1120
Appliances
Dishwasher, Disposal, Gas Water Heater, Oven, Refrigerator
Bathrooms
2 Full Bathrooms, 1 Three Quarter Bathroom
Below Grade Finished Area
1120
Cooling
Central Air
Flooring
Carpet, Vinyl
Heating
Forced Air
Interior Features
Ceiling Fan(s), Eat-in Kitchen, Open Floorplan, Primary Suite, Quartz Counters, Solid Surface Counters
Laundry Features
In Unit
Levels
One
Main Level Bathrooms
2
Main Level Bedrooms
3
Exterior
Architectural Style
Mid-Century Modern
Attached Garage YN
1
Construction Materials
Brick, Frame, Wood Siding
Direction Faces
West
Exterior Features
Private Yard
Fencing
Full
Garage Spaces
2
Lot Features
Near Public Transit, Sprinklers In Front
Parking Features
Concrete
Parking Spots
2
Parking Total
2
Patio And Porch Features
Covered, Front Porch, Patio
Roof
Shingle
Security Features
Carbon Monoxide Detector(s), Smoke Detector(s)
Window Features
Double Pane Windows, Egress Windows
Financial
Tax Year
2025
Taxes
$2,234
Map
Contact Us
Mortgage Calculator
Property Summary
- Located in the Mission Viejo subdivision, 3698 S Norfolk Way Aurora CO is a Single Family for sale in Aurora, CO, 80013. It is listed for $549,000 and features 6 beds, 3 baths, and has approximately 2,240 square feet of living space, and was originally constructed in 1979. The current price per square foot is $245. The average price per square foot for Single Family listings in Aurora is $271. The average listing price for Single Family in Aurora is $600,749. To schedule a showing of MLS#rec8128590 at 3698 S Norfolk Way in Aurora, CO, contact your Smart Sale AI agent at 3039066915.
Similar Listings Nearby
Additional Details
MLS # : REC8128590
Listing Key : REC2052527696
Parcel Number : 031634725
Zip Code : 80013
City : Aurora
State : CO
Building if Condo :
Street : 3698 S Norfolk Way
Address : 3698
Address Prefix :
Address Suffix : Way
Unit if Condo :
Latitude : 39.650188
Longitude : -104.796471
Property Type : singlefamily
Property Sub Type : Single Family Residence
Stories Total if Condo :
Lot Size : 5,227 sqft / 0.12 acres (approx)
Ownership : Corporation/Trust
Zoning : RES
Condition : Updated/Remodeled
Renovation :
Walk Score :
Pets Allowed :
Special Conditions : None
Possession : Closing/DOD
Original Price : 555000
Close Price :
Close Date :
List Date : Mar 12, 2026
List Contract Date : 2026-03-12
Off Market Date :
Purchase Contract Date :
Days on Market : 30
Days on Market SOLD :
Cumulative Days :
Days in MLS :
Sold DOM:
Concessions Amount :
Concession Comment :

Copyright 2026. All rights reserved.
3698 S Norfolk Way
Aurora, CO









































