25010 E 42nd Avenue Aurora CO 80019 MLS #REC2059103
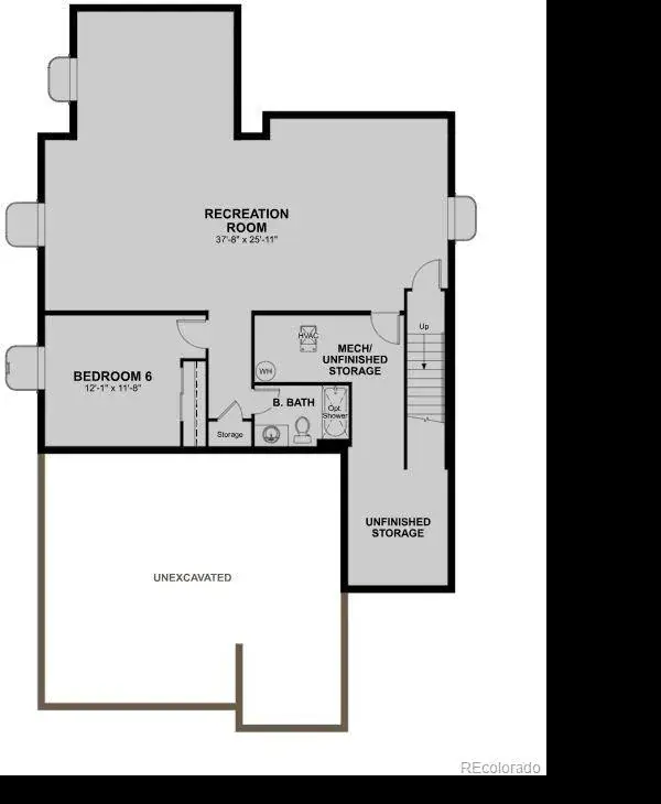
**!!AVAILABLE NOW/MOVE IN READY!!**SPECIAL FINANCING AVAILABLE**This Yorktown is waiting to impress its residents with two stories of smartly inspired living spaces and designer finishes throughout! The main floor provides room for entertaining and productivity, with a study and powder room resting near the entry. The great room welcomes you to relax and flows into the gourmet kitchen, which impresses any level of chef with its quartz center island and stainless steel appliances. A connected sunroom provides space for more formal meals and conversation. Retreat upstairs to find three generous bedrooms, one with a private bath and the others with a shared bath that makes perfect accommodations for family or guests. A centralized loft and the laundry room rests near the primary suite, which showcases a private deluxe bath and spacious walk-in closet. If that wasn’t enough, this home includes a finished basement that boasts a wide-open rec room, an additional bedroom and a shared full bath.
Property Details
Price:
$809,950
MLS #:
REC2059103
Status:
Active
Beds:
5
Baths:
5
Type:
Single Family
Subtype:
Single Family Residence
Subdivision:
The Aurora Highlands
Finished Sq Ft:
4,352
Total Sq Ft:
4,646
Lot Size:
5,227 sqft / 0.12 acres (approx)
Year Built:
2025
Schools
School District:
Adams-Arapahoe 28J
Elementary School:
Aurora Highlands
Middle School:
Aurora Highlands
High School:
Vista Peak
Interior
Above Grade Finished Area
3231
Appliances
Cooktop, Dishwasher, Disposal, Microwave, Oven, Range Hood
Bathrooms
3 Full Bathrooms, 1 Three Quarter Bathroom, 1 Half Bathroom
Below Grade Finished Area
1121
Below Grade Unfinished Area
294
Cooling
Central Air
Flooring
Carpet, Vinyl
Heating
Forced Air
Interior Features
Eat-in Kitchen, Kitchen Island, Open Floorplan, Pantry, Primary Suite, Quartz Counters, Radon Mitigation System, Walk-In Closet(s)
Levels
Two
Main Level Bathrooms
1
Exterior
Attached Garage YN
1
Construction Materials
Frame
Direction Faces
North
Garage Spaces
2
Lot Features
Landscaped, Master Planned, Sprinklers In Front
Parking Features
Oversized, Storage
Parking Spots
2
Parking Total
2
Roof
Shingle, Composition
Window Features
Double Pane Windows
Financial
HOA Fee
$100
HOA Fee Frequency
Monthly
HOA Includes
Recycling, Trash
HOA Name
Timberline District Consulting
HOA Phone
720-275-0292
Tax Year
2025
Map
Contact Us
Mortgage Calculator
Property Summary
- Located in the The Aurora Highlands subdivision, 25010 E 42nd Avenue Aurora CO is a Single Family for sale in Aurora, CO, 80019. It is listed for $809,950 and features 5 beds, 5 baths, and has approximately 4,352 square feet of living space, and was originally constructed in 2025. The current price per square foot is $186. The average price per square foot for Single Family listings in Aurora is $251. The average listing price for Single Family in Aurora is $606,944. To schedule a showing of MLS#rec2059103 at 25010 E 42nd Avenue in Aurora, CO, contact your Smart Sale AI agent at 3039066915.
Similar Listings Nearby
Additional Details
MLS ID : REC2059103
Listing Key : REC2048579759
Parcel Number : 0181920320015
Zip Code : 80019
City : Aurora
State : CO
Building if Condo :
Full Street: 25010 E 42nd Avenue
Address : 25010
Address Prefix :
Address Suffix : Avenue
Street : 42nd
Street Prefix : E
Street Suffix :
Unit if Condo :
Latitude : 39.775120
Longitude : -104.695801
Property Type : singlefamily
Property Sub Type : Single Family Residence
Stories Total if Condo :
Lot Size : 5,227 sqft / 0.12 acres (approx)
Ownership : Builder
Zoning : Residential
Condition : Under Construction
Renovation :
Pets Allowed :
Special Conditions : None
Possession : Closing/DOD
Original Price : 824950
Close Price :
Close Date :
List Date : Jul 24, 2025
List Contract Date : 2025-07-24
Off Market Date :
Purchase Contract Date :
Days on Market : 305
Concessions Amount :
Concession Comment :
Renovation :
Company : Richmond Realty Inc

Copyright 2026. All rights reserved.
25010 E 42nd Avenue
Aurora, CO






































