4713 S Fraser Street Aurora CO 80015 MLS #REC8089687
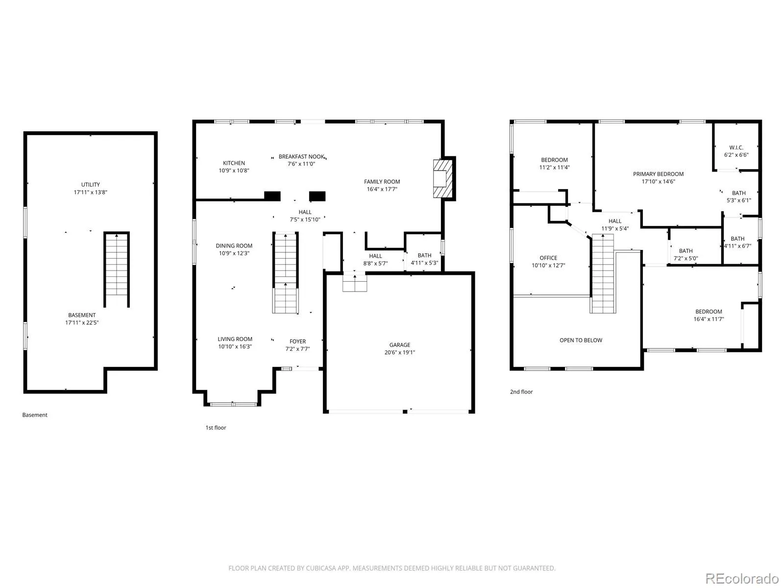
Welcome to this lovingly maintained home in the Woodgate community, located within the highly sought-after Cherry Creek School District and perfectly positioned on a quiet cul-de-sac. The main floor offers a mix of oak hardwood floors and tile. A thoughtfully updated kitchen that features granite countertops, stainless steel appliances, a double oven, and a gas range. Just off the kitchen is the dining area with a built-in breakfast bar and seating, creating a perfect space for casual dining or gathering with guests. A formal dining room is located nearby for larger meals and entertaining. The family room offers a gas fireplace, while the living room at the front of the home is filled with natural light. A convenient half bathroom completes the main floor. Upstairs, the primary suite includes built-in shelving, a private ¾ ensuite bathroom, and a walk-in closet. Two additional bedrooms, a full hall bathroom, and a versatile office or loft space complete the second level. The laundry area is located in the unfinished basement, which is ready for your future finishing touches. Step outside to the expansive backyard featuring a large covered concrete patio, a deck, and plenty of space for gardening, entertaining, or outdoor activities. A dog run is also located in the side yard. Situated on a generous 0.3-acre lot, this property offers both space and functionality. Recent updates include a new south-facing driveway and rear concrete pad installed in 2025, a new electrical panel, AC unit, and furnace replaced in 2023, and new garage doors and exterior paint completed in 2019. The roof was installed in 2008, and a roof certification will be provided. Conveniently located near Cherry Creek State Park, shopping, dining, and just 5 minutes from Sagebrush Park, this home offers comfort, space, and an ideal location. Schedule your Showing Today!
Property Details
Price:
$624,900
MLS #:
REC8089687
Status:
Active
Beds:
3
Baths:
3
Type:
Single Family
Subtype:
Single Family Residence
Subdivision:
Woodgate
Finished Sq Ft:
2,148
Total Sq Ft:
2,899
Lot Size:
13,199 sqft / 0.30 acres (approx)
Year Built:
1982
Schools
School District:
Cherry Creek 5
Elementary School:
Sagebrush
Middle School:
Laredo
High School:
Smoky Hill
Interior
Above Grade Finished Area
2148
Appliances
Double Oven, Dryer, Microwave, Range, Refrigerator, Washer
Bathrooms
1 Full Bathroom, 1 Three Quarter Bathroom, 1 Half Bathroom
Below Grade Unfinished Area
751
Cooling
Central Air
Fireplaces Total
1
Flooring
Carpet, Wood
Heating
Forced Air
Interior Features
Breakfast Bar, Built-in Features, Ceiling Fan(s), Eat-in Kitchen, Granite Counters, High Ceilings, Primary Suite, Vaulted Ceiling(s), Walk-In Closet(s)
Levels
Two
Main Level Bathrooms
1
Exterior
Attached Garage YN
1
Construction Materials
Wood Siding
Exterior Features
Dog Run, Private Yard
Fencing
Full
Garage Spaces
2
Lot Features
Cul-De-Sac, Landscaped
Parking Spots
2
Parking Total
2
Patio And Porch Features
Covered, Deck, Patio
Roof
Composition
Financial
HOA Fee
$50
HOA Fee Frequency
Annually
HOA Name
Woodgate HOA
HOA Phone
(719) 359-4580
Tax Year
2025
Taxes
$3,010
Map
Contact Us
Mortgage Calculator
Property Summary
- Located in the Woodgate subdivision, 4713 S Fraser Street Aurora CO is a Single Family for sale in Aurora, CO, 80015. It is listed for $624,900 and features 3 beds, 3 baths, and has approximately 2,148 square feet of living space, and was originally constructed in 1982. The current price per square foot is $291. The average price per square foot for Single Family listings in Aurora is $271. The average listing price for Single Family in Aurora is $600,744. To schedule a showing of MLS#rec8089687 at 4713 S Fraser Street in Aurora, CO, contact your Smart Sale AI agent at 3039066915.
Similar Listings Nearby
Additional Details
MLS # : REC8089687
Listing Key : REC2052518306
Parcel Number : 031685753
Zip Code : 80015
City : Aurora
State : CO
Building if Condo :
Street : 4713 S Fraser Street
Address : 4713
Address Prefix :
Address Suffix : Street
Unit if Condo :
Latitude : 39.631054
Longitude : -104.812401
Property Type : singlefamily
Property Sub Type : Single Family Residence
Stories Total if Condo :
Lot Size : 13,199 sqft / 0.30 acres (approx)
Ownership : Individual
Zoning :
Condition :
Renovation :
Walk Score :
Pets Allowed :
Special Conditions : None
Possession : Closing/DOD
Original Price : 624900
Close Price :
Close Date :
List Date : Apr 9, 2026
List Contract Date : 2026-04-09
Off Market Date :
Purchase Contract Date :
Days on Market : 2
Days on Market SOLD :
Cumulative Days :
Days in MLS :
Sold DOM:
Concessions Amount :
Concession Comment :

Copyright 2026. All rights reserved.
4713 S Fraser Street
Aurora, CO








































