15730 Dallas Street Brighton CO 80602 MLS #REC8506853
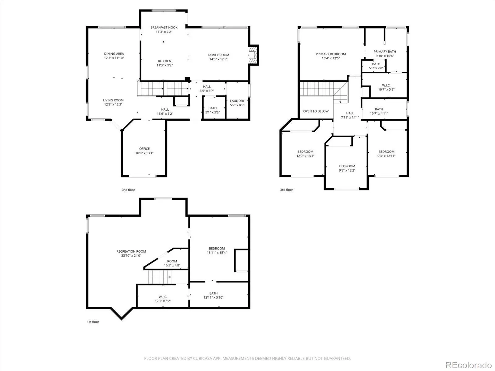
Welcome to your own slice of Colorado country living in the Todd Creek Farms community. This beautifully maintained home sits on a fully fenced and highly usable 2-acre horse property with arena space, wide-open views, and room to truly enjoy the outdoors while still being just a short drive from everyday conveniences. Inside, the home features an open and inviting floor plan with vaulted ceilings, abundant natural light, and high-end wood flooring throughout the main living areas. The kitchen, remodeled in 2022, includes stainless steel appliances, soft-close cabinetry, under-cabinet lighting, and thoughtful upgrades throughout. The main level offers a warm and functional layout featuring a fireplace, a breakfast and coffee nook, bar area with a mini refrigerator included, a sitting area, and a private office. Additional conveniences include an updated half bathroom, linen closet, and a laundry area with washer/dryer included. The spacious three-car garage offers excellent storage. Upstairs you will find 4 bedrooms and a full bath with tile flooring, granite countertops, double sinks, and a linen closet. The primary suite is filled with natural light from large windows and features a five-piece ensuite bathroom with dual sinks, a soaking tub with a window for natural light, and a walk-in closet with built-in organization. The finished basement expands the living space with a 5th bedroom suite and full bathroom with double sinks, a large bonus room perfect for an additional office, exercise space, or playroom, generous storage including under-stair storage, and both a sump pump and radon mitigation system already installed. Outside, the property offers incredible space and flexibility with a large fenced yard, mature trees, patio area, and plenty of usable land for horses and outdoor activities. A rare opportunity to own a spacious horse property with modern updates, usable acreage, and peaceful surroundings in Todd Creek Farms.
Property Details
Price:
$825,000
MLS #:
REC8506853
Status:
Active Under Contract
Beds:
5
Baths:
4
Type:
Single Family
Subtype:
Single Family Residence
Subdivision:
Todd Creek Farms
Finished Sq Ft:
2,911
Total Sq Ft:
2,911
Lot Size:
87,120 sqft / 2.00 acres (approx)
Year Built:
1997
Schools
School District:
School District 27-J
Elementary School:
Brantner
Middle School:
Overland Trail
High School:
Brighton
Interior
Above Grade Finished Area
1942
Appliances
Convection Oven, Dishwasher, Disposal, Microwave, Refrigerator, Self Cleaning Oven, Sump Pump
Bathrooms
3 Full Bathrooms, 1 Half Bathroom
Below Grade Finished Area
969
Cooling
Central Air
Fireplaces Total
1
Flooring
Carpet, Tile, Wood
Heating
Forced Air, Natural Gas
Interior Features
Breakfast Bar, Built-in Features, Ceiling Fan(s), Eat-in Kitchen, Entrance Foyer, Five Piece Bath, Granite Counters, Open Floorplan, Primary Suite, Radon Mitigation System, Smoke Free
Laundry Features
In Unit
Levels
Two
Main Level Bathrooms
1
Exterior
Architectural Style
Traditional, Urban Contemporary
Attached Garage YN
1
Construction Materials
Frame
Exterior Features
Private Yard
Fencing
Fenced Pasture, Full
Garage Spaces
3
Lot Features
Cul-De-Sac, Landscaped, Level, Open Space, Sprinklers In Front, Sprinklers In Rear
Parking Features
220 Volts
Parking Spots
11
Parking Total
11
Patio And Porch Features
Covered, Front Porch
Roof
Composition
Security Features
Carbon Monoxide Detector(s), Smoke Detector(s)
View
Mountain(s)
Window Features
Double Pane Windows, Storm Window(s)
Financial
HOA Fee
$193
HOA Fee Frequency
Quarterly
HOA Name
Todd Creek Farms
HOA Phone
720-673-3800
Tax Year
2024
Taxes
$5,243
Map
Contact Us
Mortgage Calculator
Property Summary
- Located in the Todd Creek Farms subdivision, 15730 Dallas Street Brighton CO is a Single Family for sale in Brighton, CO, 80602. It is listed for $825,000 and features 5 beds, 4 baths, and has approximately 2,911 square feet of living space, and was originally constructed in 1997. The current price per square foot is $283. The average price per square foot for Single Family listings in Brighton is $276. The average listing price for Single Family in Brighton is $654,437. To schedule a showing of MLS#rec8506853 at 15730 Dallas Street in Brighton, CO, contact your Smart Sale AI agent at 3039066915.
Similar Listings Nearby
Additional Details
MLS # : REC8506853
Listing Key : REC2052270501
Parcel Number : R0008444
Zip Code : 80602
City : Brighton
State : CO
Building if Condo :
Street : 15730 Dallas Street
Address : 15730
Address Prefix :
Address Suffix : Street
Unit if Condo :
Latitude : 39.982037
Longitude : -104.875816
Property Type : singlefamily
Property Sub Type : Single Family Residence
Stories Total if Condo :
Lot Size : 87,120 sqft / 2.00 acres (approx)
Ownership : Individual
Zoning : A-1
Condition : Updated/Remodeled
Renovation :
Pets Allowed :
Special Conditions : None
Possession : Closing/DOD
Original Price : 825000
Close Price :
Close Date :
List Date : Mar 12, 2026
List Contract Date : 2026-03-12
Off Market Date : 2026-03-20
Purchase Contract Date : 2026-03-20
Days on Market : 36
Concessions Amount :
Concession Comment :

Copyright 2026. All rights reserved.
15730 Dallas Street
Brighton, CO




















































