9156 Dover Street Broomfield CO 80021 MLS #REC5176237
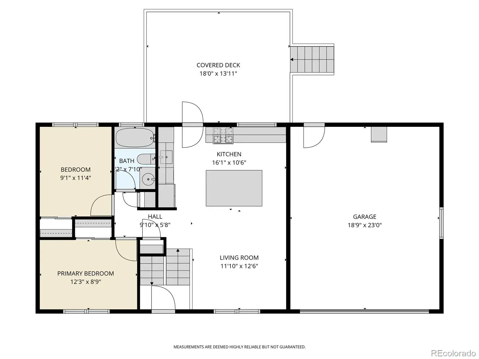
Welcome to this beautifully maintained Kings Mill gem, perfectly situated on a spacious corner lot just a short walk from Standley Lake and its extensive trail network. This 1,568-square-foot residence offers the ultimate peace of mind with major recent upgrades, including a brand-new roof, a new water heater, and a newer garage door for the detached two-car garage. The open-concept main level greets you with gorgeous hardwood floors and a renovated kitchen anchored by a large dine-in island, perfect for hosting. Transition seamlessly to the outdoors via the custom-crafted covered deck, which overlooks a massive backyard oasis ideal for gardening and entertaining. The thoughtful layout provides two bedrooms and a remodeled bath on the main floor, plus a lower level featuring a generous family room, two additional bedrooms, and another renovated bathroom. With no HOA and a prime location offering easy commutes to Denver, Boulder, and the new Downtown Westminster area, this meticulously cared-for home is truly move-in ready and waiting for its next chapter.
Property Details
Price:
$535,000
MLS #:
REC5176237
Status:
Active
Beds:
4
Baths:
2
Type:
Single Family
Subtype:
Single Family Residence
Subdivision:
Kings Mill
Finished Sq Ft:
1,568
Total Sq Ft:
1,568
Lot Size:
1,568 sqft / 0.04 acres (approx)
Year Built:
1973
Schools
School District:
Jefferson County R-1
Elementary School:
Lukas
Middle School:
Wayne Carle
High School:
Standley Lake
Interior
Above Grade Finished Area
1568
Appliances
Dishwasher, Disposal, Dryer, Microwave, Oven, Refrigerator, Washer
Bathrooms
2 Full Bathrooms
Cooling
Evaporative Cooling
Flooring
Carpet, Tile, Wood
Heating
Forced Air
Interior Features
Ceiling Fan(s), Eat-in Kitchen, Granite Counters, Kitchen Island, Open Floorplan
Levels
Bi-Level
Exterior
Construction Materials
Frame, Wood Siding
Direction Faces
West
Exterior Features
Garden, Private Yard, Rain Gutters
Fencing
Full
Garage Spaces
2
Lot Features
Level
Parking Spots
2
Parking Total
2
Patio And Porch Features
Covered, Deck
Roof
Composition
Financial
Tax Year
2024
Taxes
$2,375
Map
Contact Us
Mortgage Calculator
Property Summary
- Located in the Kings Mill subdivision, 9156 Dover Street Broomfield CO is a Single Family for sale in Broomfield, CO, 80021. It is listed for $535,000 and features 4 beds, 2 baths, and has approximately 1,568 square feet of living space, and was originally constructed in 1973. The current price per square foot is $341. The average price per square foot for Single Family listings in Broomfield is $329. The average listing price for Single Family in Broomfield is $954,307. To schedule a showing of MLS#rec5176237 at 9156 Dover Street in Broomfield, CO, contact your Smart Sale AI agent at 3039066915.
Similar Listings Nearby
Additional Details
MLS # : REC5176237
Listing Key : REC2051527721
Parcel Number : 103617
Zip Code : 80021
City : Broomfield
State : CO
Building if Condo :
Street : 9156 Dover Street
Address : 9156
Address Prefix :
Address Suffix : Street
Unit if Condo :
Latitude : 39.862598
Longitude : -105.094238
Property Type : singlefamily
Property Sub Type : Single Family Residence
Stories Total if Condo :
Lot Size : 1,568 sqft / 0.04 acres (approx)
Ownership : Individual
Zoning :
Condition :
Renovation :
Pets Allowed :
Special Conditions : None
Possession :
Original Price : 550000
Close Price :
Close Date :
List Date : Feb 26, 2026
List Contract Date : 2026-02-26
Off Market Date :
Purchase Contract Date :
Days on Market : 46
Concessions Amount :
Concession Comment :

Copyright 2026. All rights reserved.
9156 Dover Street
Broomfield, CO



































