1500 Abilene Drive Broomfield CO 80020 MLS #REC1677110
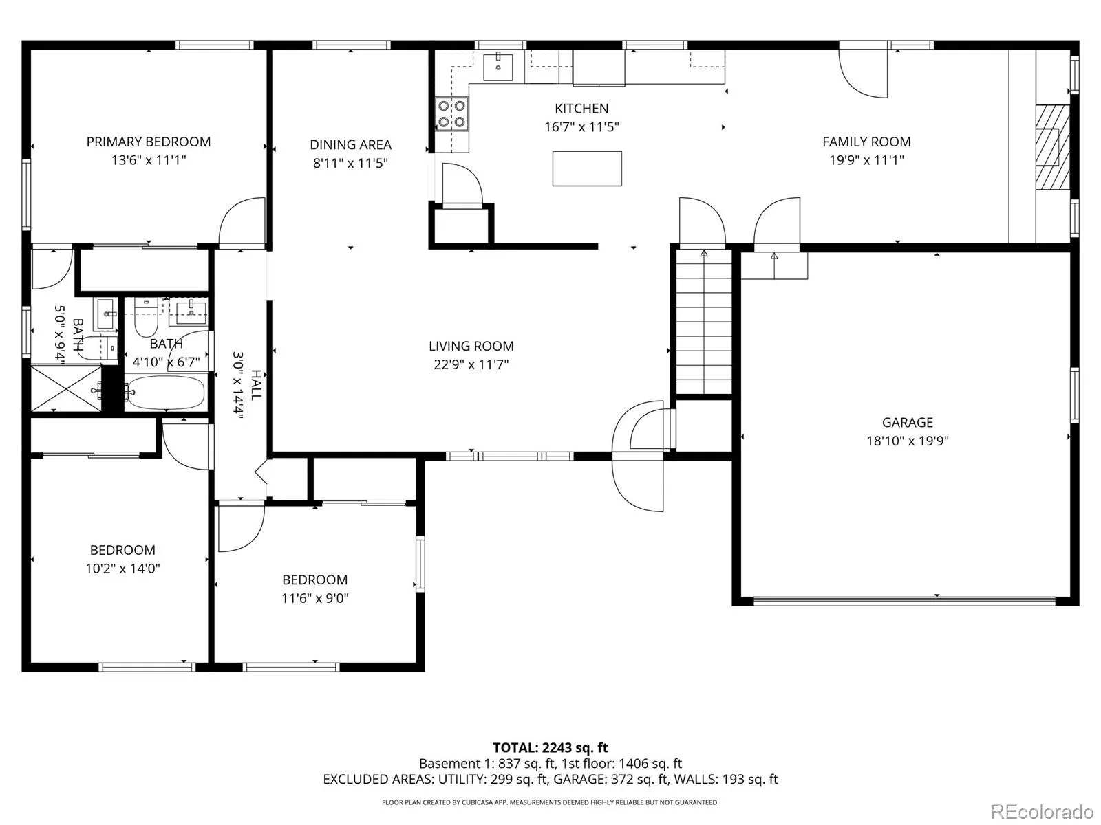
Welcome home to this reimagined brick ranch in the heart of Broomfield. Step inside to discover a beautifully updated main floor featuring modern laminate flooring throughout, all-new interior paint, and updated egress lighting that creates a bright, welcoming feel. The kitchen has been completely transformed and opened up, showcasing a new central island, brand-new cabinetry and countertops, and sleek stainless steel appliances, including an induction oven that home chefs will love. Just beyond, the cozy family room invites you to relax with a charming wood-burning stove and abundant natural light from skylights overhead. The main floor primary suite offers comfort and privacy with an updated en-suite 3/4 bathroom. Two additional generously sized bedrooms and a stylishly updated full bathroom complete the main level. Downstairs, the partially finished basement provides incredible flexibility and opportunity to make it your own. It includes a den, a full bathroom, and two additional flex spaces that can serve as non-conforming bedrooms, a home office, workout room, or creative space – with all new carpet in 2026. Set on a large lot backing directly to the Broomfield Trail, the outdoor space is just as appealing – featuring a fully fenced yard, two storage sheds, and potential space for small RV parking. The location is hard to beat: just blocks from Broomfield High School and with easy access to US-36, commuting to Denver or Boulder is effortless. A thoughtfully updated home with space to grow – make it yours today!
Property Details
Price:
$619,000
MLS #:
REC1677110
Status:
Active
Beds:
5
Baths:
3
Type:
Single Family
Subtype:
Single Family Residence
Subdivision:
Miramonte
Finished Sq Ft:
2,148
Total Sq Ft:
2,784
Lot Size:
8,843 sqft / 0.20 acres (approx)
Year Built:
1972
Schools
School District:
Boulder Valley RE 2
Elementary School:
Kohl
Middle School:
Aspen Creek K-8
High School:
Broomfield
Interior
Above Grade Finished Area
1512
Appliances
Dishwasher, Disposal, Dryer, Microwave, Oven, Refrigerator
Bathrooms
2 Full Bathrooms, 1 Three Quarter Bathroom
Below Grade Finished Area
636
Below Grade Unfinished Area
636
Cooling
Central Air
Flooring
Concrete, Laminate, Tile
Heating
Forced Air
Interior Features
Kitchen Island, Pantry, Primary Suite, Quartz Counters, Radon Mitigation System, Smoke Free
Levels
One
Main Level Bathrooms
2
Main Level Bedrooms
3
Exterior
Attached Garage YN
1
Construction Materials
Brick, Frame
Garage Spaces
2
Parking Spots
2
Parking Total
2
Roof
Composition
Security Features
Carbon Monoxide Detector(s), Smart Security System, Smoke Detector(s)
Financial
Tax Year
2024
Taxes
$3,698
Map
Contact Us
Mortgage Calculator
Property Summary
- Located in the Miramonte subdivision, 1500 Abilene Drive Broomfield CO is a Single Family for sale in Broomfield, CO, 80020. It is listed for $619,000 and features 5 beds, 3 baths, and has approximately 2,148 square feet of living space, and was originally constructed in 1972. The current price per square foot is $288. The average price per square foot for Single Family listings in Broomfield is $328. The average listing price for Single Family in Broomfield is $945,421. To schedule a showing of MLS#rec1677110 at 1500 Abilene Drive in Broomfield, CO, contact your Smart Sale AI agent at 3039066915.
Similar Listings Nearby
Additional Details
MLS # : REC1677110
Listing Key : REC2051918289
Parcel Number : R1018203
Zip Code : 80020
City : Broomfield
State : CO
Building if Condo :
Street : 1500 Abilene Drive
Address : 1500
Address Prefix :
Address Suffix : Drive
Unit if Condo :
Latitude : 39.936661
Longitude : -105.073265
Property Type : singlefamily
Property Sub Type : Single Family Residence
Stories Total if Condo :
Lot Size : 8,843 sqft / 0.20 acres (approx)
Ownership : Individual
Zoning : R-1
Condition : Updated/Remodeled
Renovation :
Pets Allowed :
Special Conditions : None
Possession : Close Plus 3 Days,Closing/DOD
Original Price : 625000
Close Price :
Close Date :
List Date : Feb 12, 2026
List Contract Date : 2026-02-12
Off Market Date :
Purchase Contract Date :
Days on Market : 64
Concessions Amount :
Concession Comment :

Copyright 2026. All rights reserved.
1500 Abilene Drive
Broomfield, CO


































