8195 S Newport Way Centennial CO 80112 MLS #REC7394686
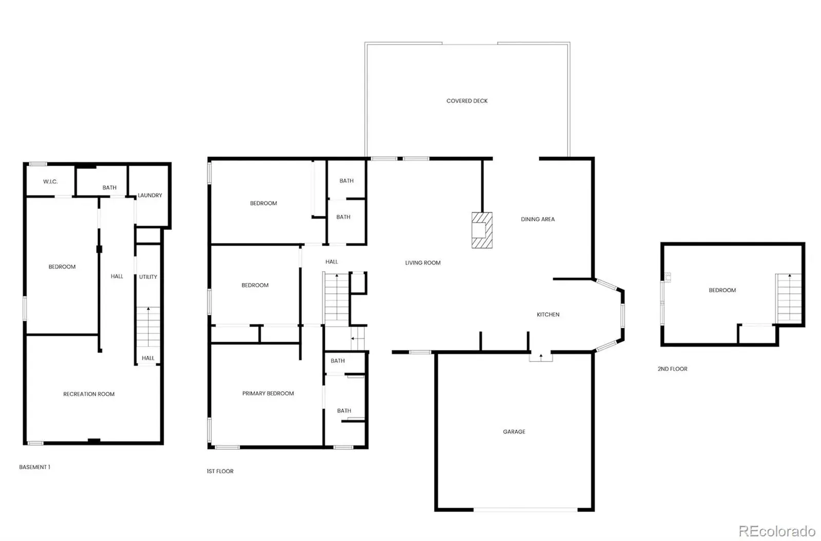
One-of-a-kind property in the desirable Foxridge neighborhood and the high-ranking Cherry Creek School District. This five-bedroom, three-bath updated home and oversized 14,680 sq ft lot has all the space you need both inside and out. The main level features an open living room with vaulted ceilings, and shares a double-sided fireplace with the dining area, providing a classic focal point that enhances both spaces. The kitchen includes newly refinished wood floors, stone countertops, a built-in refrigerator and a large center island with plenty of storage.
Newer carpet in the living area continues in the three main-level bedrooms, including a primary with remodeled en suite and custom storage. Upstairs is a single, private bedroom with laminate wood flooring for a modern feel. The fully finished basement has an additional living area that would make a perfect media room, a spacious fifth bedroom with conforming egress window and adjacent 3/4 bath, as well as separate laundry room and utility closet. The attached two-car garage and large driveway has room for all kinds of vehicles.
Rest assured with exterior improvements such as Hardie® cement siding and brand NEW ROOF installed Feb 2026. The backyard truly sets this home apart with over 1/3 acre to spread out. A shaded deck is accessible though French doors, leading to the open yard with mature trees and a separate, detached 670 sq ft “building out back” that can be used as an additional garage, workshop or convert to ADU. This unique space with both 220V electrical power and heat is a rare find in this kind of residential area.
Conveniently located near I-25 and E470, the house is remarkably close to shopping, dining, and entertainment while still adhering to the quiet street and peaceful neighborhood lifestyle. The voluntary Foxridge Improvement Association has partnerships with the Foxridge Clubhouse, the South Suburban Parks District and more for direct access to the local community.
Newer carpet in the living area continues in the three main-level bedrooms, including a primary with remodeled en suite and custom storage. Upstairs is a single, private bedroom with laminate wood flooring for a modern feel. The fully finished basement has an additional living area that would make a perfect media room, a spacious fifth bedroom with conforming egress window and adjacent 3/4 bath, as well as separate laundry room and utility closet. The attached two-car garage and large driveway has room for all kinds of vehicles.
Rest assured with exterior improvements such as Hardie® cement siding and brand NEW ROOF installed Feb 2026. The backyard truly sets this home apart with over 1/3 acre to spread out. A shaded deck is accessible though French doors, leading to the open yard with mature trees and a separate, detached 670 sq ft “building out back” that can be used as an additional garage, workshop or convert to ADU. This unique space with both 220V electrical power and heat is a rare find in this kind of residential area.
Conveniently located near I-25 and E470, the house is remarkably close to shopping, dining, and entertainment while still adhering to the quiet street and peaceful neighborhood lifestyle. The voluntary Foxridge Improvement Association has partnerships with the Foxridge Clubhouse, the South Suburban Parks District and more for direct access to the local community.
Property Details
Price:
$825,000
MLS #:
REC7394686
Status:
Active Under Contract
Beds:
5
Baths:
3
Type:
Single Family
Subtype:
Single Family Residence
Subdivision:
Foxridge
Finished Sq Ft:
3,049
Total Sq Ft:
3,104
Lot Size:
14,680 sqft / 0.34 acres (approx)
Year Built:
1978
Schools
School District:
Cherry Creek 5
Elementary School:
Dry Creek
Middle School:
West
High School:
Cherry Creek
Interior
Above Grade Finished Area
2161
Appliances
Dishwasher, Dryer, Gas Water Heater, Microwave, Oven, Range, Range Hood, Refrigerator, Washer, Water Softener
Bathrooms
2 Full Bathrooms, 1 Three Quarter Bathroom
Below Grade Finished Area
888
Below Grade Unfinished Area
55
Cooling
Central Air
Flooring
Carpet, Wood
Heating
Forced Air
Interior Features
High Ceilings, Kitchen Island, Open Floorplan, Primary Suite, Radon Mitigation System, Smart Thermostat, Stone Counters, Vaulted Ceiling(s)
Laundry Features
In Unit
Levels
Two
Main Level Bathrooms
2
Main Level Bedrooms
3
Exterior
Attached Garage YN
1
Construction Materials
Brick, Cement Siding, Frame
Exterior Features
Private Yard
Fencing
Full
Garage Spaces
2
Parking Spots
4
Parking Total
4
Patio And Porch Features
Deck
Roof
Composition
Security Features
Carbon Monoxide Detector(s), Smart Cameras, Smoke Detector(s)
Window Features
Double Pane Windows
Financial
Tax Year
2024
Taxes
$6,411
Map
Contact Us
Mortgage Calculator
Property Summary
- Located in the Foxridge subdivision, 8195 S Newport Way Centennial CO is a Single Family for sale in Centennial, CO, 80112. It is listed for $825,000 and features 5 beds, 3 baths, and has approximately 3,049 square feet of living space, and was originally constructed in 1978. The current price per square foot is $271. The average price per square foot for Single Family listings in Centennial is $300. The average listing price for Single Family in Centennial is $822,850. To schedule a showing of MLS#rec7394686 at 8195 S Newport Way in Centennial, CO, contact your Smart Sale AI agent at 3039066915.
Similar Listings Nearby
Additional Details
MLS # : REC7394686
Listing Key : REC2051834549
Parcel Number : 031913462
Zip Code : 80112
City : Centennial
State : CO
Building if Condo :
Street : 8195 S Newport Way
Address : 8195
Address Prefix :
Address Suffix : Way
Unit if Condo :
Latitude : 39.567627
Longitude : -104.910721
Property Type : singlefamily
Property Sub Type : Single Family Residence
Stories Total if Condo :
Lot Size : 14,680 sqft / 0.34 acres (approx)
Ownership : Individual
Zoning :
Condition :
Renovation :
Pets Allowed :
Special Conditions : None
Possession :
Original Price : 825000
Close Price :
Close Date :
List Date : Mar 5, 2026
List Contract Date : 2026-03-05
Off Market Date : 2026-03-10
Purchase Contract Date : 2026-03-10
Days on Market : 43
Concessions Amount :
Concession Comment :

Copyright 2026. All rights reserved.
8195 S Newport Way
Centennial, CO









































