8300 E Hinsdale Avenue Centennial CO 80112 MLS #REC3121224
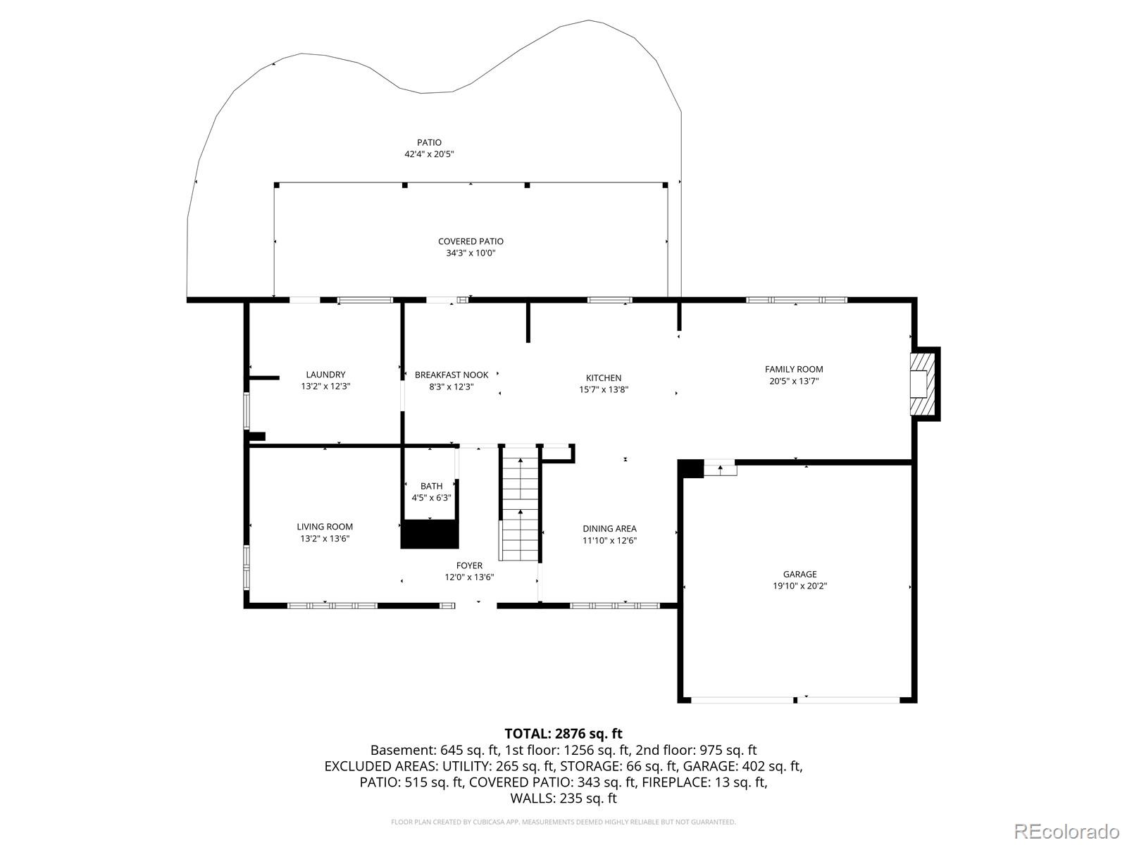
Tucked away on a quiet cul-de-sac, located in the Cherry Creek School District, and beautifully maintained for decades, this home is ready for its new owner. This 2-story home with a basement has 4 bedrooms, 2.5 bathrooms, a 2-car garage, the most lovely backyard, and plenty of storage. As you walk in, you will see a sitting room and a large dining room. There is a half bath on the main floor for guests. A large kitchen with custom cabinets is perfect for hosting and cooking. There is a full laundry room with a sink and built-in shelving with a desk. The family room is cozy and warm with natural light and a wood-burning fireplace insert. The backyard is an absolute gem, complete with a covered patio, garden boxes, and beautiful, mature plants and trees. Most of the patio furniture is included. Upstairs, you will find 4 spacious bedrooms and 2 updated bathrooms, including the primary en-suite and a walk-in closet. The finished basement has a large family room, 2 bonus rooms, and a large storage/utility room. It provides an opportunity to add another bedroom/bathroom in the future, but is perfect right now as a playroom or gym. Living in Hunters Hill, you have access to the community pool and park. It provides easy access to I-25, 470, mountain access and outdoor activities, shopping, dining, and more. If you are looking for a move-in-ready home that has been impeccably maintained and deeply cared for over the years, this is the one!
Property Details
Price:
$849,000
MLS #:
REC3121224
Status:
Active
Beds:
4
Baths:
3
Type:
Single Family
Subtype:
Single Family Residence
Subdivision:
Hunters Hill
Finished Sq Ft:
3,486
Total Sq Ft:
3,486
Lot Size:
1,904 sqft / 0.04 acres (approx)
Year Built:
1974
Schools
School District:
Cherry Creek 5
Elementary School:
Walnut Hills
Middle School:
Campus
High School:
Cherry Creek
Interior
Above Grade Finished Area
2422
Appliances
Cooktop, Disposal, Microwave, Oven, Refrigerator
Bathrooms
1 Full Bathroom, 1 Three Quarter Bathroom, 1 Half Bathroom
Below Grade Finished Area
1064
Cooling
Attic Fan, Central Air
Flooring
Carpet, Tile, Wood
Heating
Forced Air
Interior Features
Five Piece Bath, Granite Counters, Kitchen Island, Primary Suite, Walk-In Closet(s)
Levels
Two
Main Level Bathrooms
1
Exterior
Association Amenities
Playground, Pool, Tennis Court(s)
Attached Garage YN
1
Construction Materials
Concrete
Exterior Features
Private Yard
Garage Spaces
2
Lot Features
Cul-De-Sac, Landscaped, Level
Parking Spots
2
Parking Total
2
Patio And Porch Features
Covered, Front Porch, Patio
Roof
Other
Security Features
Carbon Monoxide Detector(s), Smoke Detector(s)
Window Features
Double Pane Windows, Window Coverings
Financial
HOA Fee
$1,325
HOA Fee Frequency
Annually
HOA Includes
Recycling, Trash
HOA Name
Hunters Hill Recreation Association inc.
HOA Phone
3034204433
Tax Year
2025
Taxes
$4,526
Map
Contact Us
Mortgage Calculator
Property Summary
- Located in the Hunters Hill subdivision, 8300 E Hinsdale Avenue Centennial CO is a Single Family for sale in Centennial, CO, 80112. It is listed for $849,000 and features 4 beds, 3 baths, and has approximately 3,486 square feet of living space, and was originally constructed in 1974. The current price per square foot is $244. The average price per square foot for Single Family listings in Centennial is $300. The average listing price for Single Family in Centennial is $822,850. To schedule a showing of MLS#rec3121224 at 8300 E Hinsdale Avenue in Centennial, CO, contact your Smart Sale AI agent at 3039066915.
Similar Listings Nearby
Additional Details
MLS # : REC3121224
Listing Key : REC2052888925
Parcel Number : 031861730
Zip Code : 80112
City : Centennial
State : CO
Building if Condo :
Street : 8300 E Hinsdale Avenue
Address : 8300
Address Prefix :
Address Suffix : Avenue
Unit if Condo :
Latitude : 39.581703
Longitude : -104.892616
Property Type : singlefamily
Property Sub Type : Single Family Residence
Stories Total if Condo :
Lot Size : 1,904 sqft / 0.04 acres (approx)
Ownership : Individual
Zoning :
Condition :
Renovation :
Pets Allowed :
Special Conditions : None
Possession : Negotiable
Original Price : 849000
Close Price :
Close Date :
List Date : Apr 9, 2026
List Contract Date : 2026-04-09
Off Market Date :
Purchase Contract Date :
Days on Market : 8
Concessions Amount :
Concession Comment :

Copyright 2026. All rights reserved.
8300 E Hinsdale Avenue
Centennial, CO



















































