2636 S Xenon Way Denver CO 80228 MLS #REC4368828
2636 S Xenon Way
Denver, CO, 80228
$1,100,000
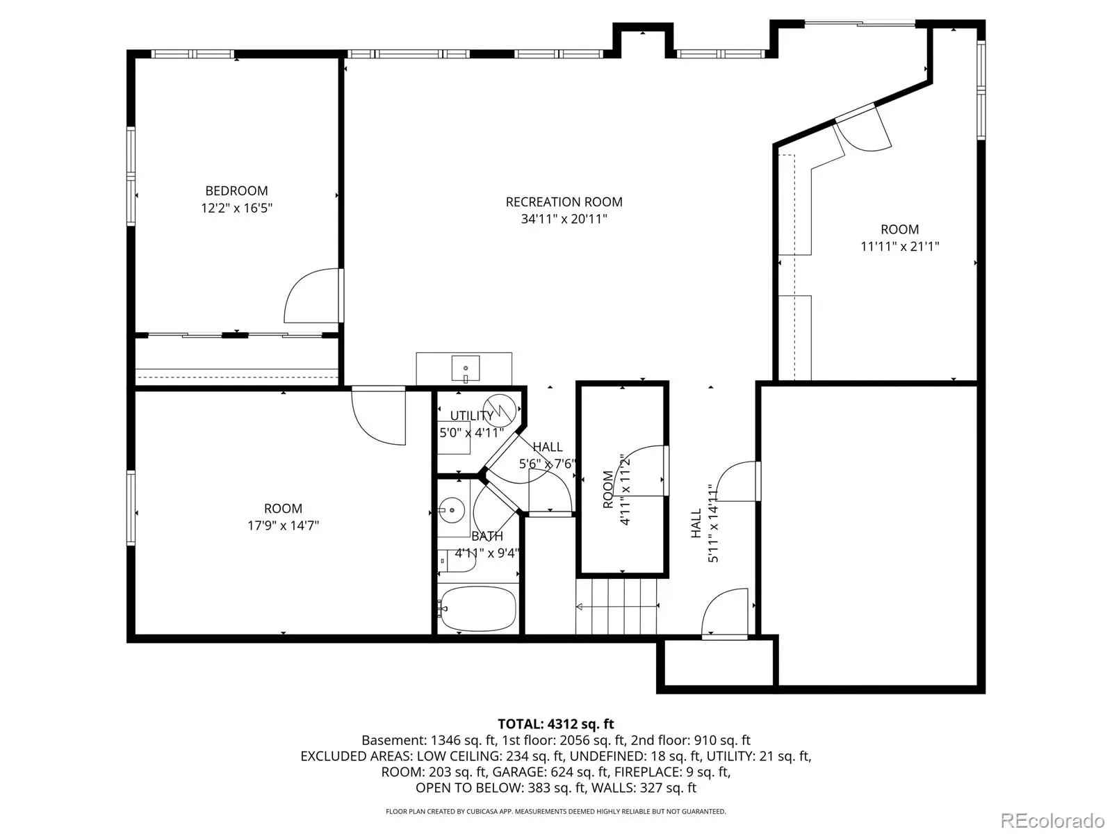
Set in the highly sought-after Bear Creek Village, where opportunities are few and far between, this 5-bedroom, 5-bath home offers an exceptional layout, incredible flexibility, and stunning Front Range mountain views. The main-level primary suite creates true everyday convenience and features a private slider to the expansive back deck that stretches across the rear of the home. Designed for both entertaining and comfortable living, the home includes two wet bars—one in the main living area and another downstairs—making it easy to host on any level.
Upstairs, you’ll find three additional bedrooms, including one with its own en-suite bath, while the other two are connected by a shared full bath. The walk-out lower level adds even more usable space with a workshop, bonus room, additional bedroom, and media room/flex space, offering endless options for hobbies, guests, work, or recreation.
This home is also a ONE Certified Home, offering added confidence and peace of mind for buyers. It has been pre-inspected and found to be structurally solid and in good repair, and it includes a 1 year home warranty covering major systems, appliances, electrical, and plumbing.
The setting is just as impressive as the home itself, with convenient access to downtown Denver, ski resorts, Red Rocks, hiking trails, Bear Creek Lake Park, Bear Creek Golf Club, and Fox Hollow Golf Course. A rare chance to own in one of the area’s most desirable neighborhoods, this home combines location, views, and a hard-to-find floorplan in one standout property.
Upstairs, you’ll find three additional bedrooms, including one with its own en-suite bath, while the other two are connected by a shared full bath. The walk-out lower level adds even more usable space with a workshop, bonus room, additional bedroom, and media room/flex space, offering endless options for hobbies, guests, work, or recreation.
This home is also a ONE Certified Home, offering added confidence and peace of mind for buyers. It has been pre-inspected and found to be structurally solid and in good repair, and it includes a 1 year home warranty covering major systems, appliances, electrical, and plumbing.
The setting is just as impressive as the home itself, with convenient access to downtown Denver, ski resorts, Red Rocks, hiking trails, Bear Creek Lake Park, Bear Creek Golf Club, and Fox Hollow Golf Course. A rare chance to own in one of the area’s most desirable neighborhoods, this home combines location, views, and a hard-to-find floorplan in one standout property.
Property Details
Price:
$1,100,000
MLS #:
REC4368828
Status:
Active Under Contract
Beds:
5
Baths:
5
Type:
Single Family
Subtype:
Single Family Residence
Subdivision:
Bear Creek Village
Finished Sq Ft:
4,634
Total Sq Ft:
5,158
Lot Size:
12,807 sqft / 0.29 acres (approx)
Year Built:
1993
Schools
School District:
Jefferson County R-1
Elementary School:
Devinny
Middle School:
Dunstan
High School:
Green Mountain
Interior
Above Grade Finished Area
3086
Appliances
Cooktop, Dishwasher, Disposal, Microwave, Oven, Refrigerator
Bathrooms
4 Full Bathrooms, 1 Half Bathroom
Below Grade Finished Area
1548
Below Grade Unfinished Area
524
Cooling
Central Air
Fireplaces Total
1
Flooring
Carpet, Wood
Heating
Forced Air
Interior Features
Breakfast Bar, Built-in Features, Ceiling Fan(s), Entrance Foyer, Five Piece Bath, Jack & Jill Bathroom, Pantry, Primary Suite, Smoke Free, Vaulted Ceiling(s), Walk-In Closet(s), Wet Bar
Laundry Features
Sink
Levels
Two
Main Level Bathrooms
2
Main Level Bedrooms
1
Exterior
Association Amenities
Playground, Pool, Tennis Court(s)
Attached Garage YN
1
Construction Materials
Brick, Frame
Direction Faces
North
Exterior Features
Gas Valve, Private Yard
Garage Spaces
3
Lot Features
Cul-De-Sac, Landscaped, Level
Parking Features
Exterior Access Door
Parking Spots
3
Parking Total
3
Patio And Porch Features
Deck, Patio
Roof
Composition
Security Features
Carbon Monoxide Detector(s), Smoke Detector(s)
View
Golf Course, Mountain(s)
Window Features
Bay Window(s), Double Pane Windows
Financial
HOA Fee
$330
HOA Fee Frequency
Quarterly
HOA Includes
Recycling, Trash
HOA Name
Bear Creek Village
HOA Phone
303-233-4646
Tax Year
2024
Taxes
$5,150
Map
Contact Us
Mortgage Calculator
Property Summary
- Located in the Bear Creek Village subdivision, 2636 S Xenon Way Denver CO is a Single Family for sale in Denver, CO, 80228. It is listed for $1,100,000 and features 5 beds, 5 baths, and has approximately 4,634 square feet of living space, and was originally constructed in 1993. The current price per square foot is $237. The average price per square foot for Single Family listings in Denver is $423. The average listing price for Single Family in Denver is $1,010,628. To schedule a showing of MLS#rec4368828 at 2636 S Xenon Way in Denver, CO, contact your Smart Sale AI agent at 3039066915.
Similar Listings Nearby
Additional Details
MLS # : REC4368828
Listing Key : REC2052541476
Parcel Number : 409080
Zip Code : 80228
City : Denver
State : CO
Building if Condo :
Street : 2636 S Xenon Way
Address : 2636
Address Prefix :
Address Suffix : Way
Unit if Condo :
Latitude : 39.668274
Longitude : -105.142265
Property Type : singlefamily
Property Sub Type : Single Family Residence
Stories Total if Condo :
Lot Size : 12,807 sqft / 0.29 acres (approx)
Ownership : Individual
Zoning : P-D
Condition :
Renovation :
Pets Allowed :
Special Conditions : None
Possession : Closing/DOD
Original Price : 1100000
Close Price :
Close Date :
List Date : Mar 19, 2026
List Contract Date : 2026-03-19
Off Market Date : 2026-04-02
Purchase Contract Date : 2026-04-02
Days on Market : 34
Concessions Amount :
Concession Comment :

Copyright 2026. All rights reserved.
2636 S Xenon Way
Denver, CO




















































