11273 E 28th Place Denver CO 80238 MLS #REC6169173
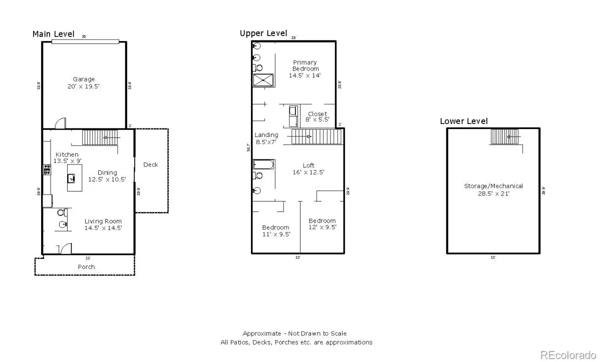
Welcome to this thoughtfully upgraded home, where custom design details meet a spacious, functional floor plan. The main level features real hardwood floors and an open, light-filled living room that flows seamlessly into the dining area and eat-in kitchen, complete with a quartz island, subway tile backsplash, and stainless-steel appliances. The layout is ideal for everyday living and entertaining, extending out to a deck and fenced yard with sunny southwest exposure. Upstairs, a generous loft offers flexible space for a cozy family room or home office. Two secondary bedrooms with western views share a full bath, while the primary suite serves as a comfortable retreat with a ¾ ensuite bath featuring a custom surround and quartz counters. Two large closets and an adjacent laundry area add everyday convenience. Custom finishes throughout bring a cohesive, elevated feel to the home. The open, unfinished basement provides a blank canvas – perfect for a gym, an entertainment area or future finished living space – along with ample storage. A two-car attached garage and extended driveway offer plenty of off-street parking. The location is equally appealing. Just a stone’s throw from the newly opened Bluff Lake Center, you’ll have easy access to trails and open space, as well as the dining and shopping options at Eastbridge Town Center and Stanley Marketplace, plus convenient Light Rail and I-70 access. Whether it’s a stroll through the courtyard, a quick grocery run, or time outdoors on nearby paths and parks, this home is well positioned for everyday living.
Property Details
Price:
$650,000
MLS #:
REC6169173
Status:
Active Under Contract
Beds:
3
Baths:
3
Type:
Single Family
Subtype:
Single Family Residence
Subdivision:
Central Park
Finished Sq Ft:
1,731
Total Sq Ft:
2,389
Lot Size:
2,686 sqft / 0.06 acres (approx)
Year Built:
2014
Schools
School District:
Denver 1
Elementary School:
Isabella Bird Community
Middle School:
McAuliffe International
High School:
Northfield
Interior
Above Grade Finished Area
1731
Appliances
Cooktop, Dishwasher, Disposal, Dryer, Microwave, Range Hood, Refrigerator, Washer
Bathrooms
1 Full Bathroom, 1 Three Quarter Bathroom, 1 Half Bathroom
Below Grade Unfinished Area
658
Cooling
Central Air
Flooring
Carpet, Tile, Wood
Heating
Forced Air
Interior Features
Ceiling Fan(s), Eat-in Kitchen, Entrance Foyer, High Ceilings, Kitchen Island, Open Floorplan, Pantry, Primary Suite, Quartz Counters
Laundry Features
In Unit
Levels
Two
Main Level Bathrooms
1
Exterior
Architectural Style
Traditional
Association Amenities
Pool
Attached Garage YN
1
Common Walls
End Unit, 1 Common Wall
Construction Materials
Cement Siding
Direction Faces
West
Fencing
Partial
Garage Spaces
2
Green Energy Efficient
Construction, Insulation
Lot Features
Level
Parking Features
Concrete
Parking Spots
3
Parking Total
3
Patio And Porch Features
Deck, Front Porch
Roof
Composition
Security Features
Carbon Monoxide Detector(s), Smoke Detector(s)
View
Mountain(s)
Window Features
Double Pane Windows, Egress Windows, Window Coverings
Financial
HOA Fee
$58
HOA Fee 2
$75
HOA Fee 2 Frequency
Monthly
HOA Fee Frequency
Monthly
HOA Includes
Maintenance Grounds, Snow Removal
HOA Name
MCA
HOA Name 2
Central Park (Stapleton Filings) F17, 35 & 40 Home
HOA Phone
303.388.0724
HOA Phone 2
(303) 733-1121
Tax Year
2024
Taxes
$5,346
Map
Contact Us
Mortgage Calculator
Property Summary
- Located in the Central Park subdivision, 11273 E 28th Place Denver CO is a Single Family for sale in Denver, CO, 80238. It is listed for $650,000 and features 3 beds, 3 baths, and has approximately 1,731 square feet of living space, and was originally constructed in 2014. The current price per square foot is $376. The average price per square foot for Single Family listings in Denver is $424. The average listing price for Single Family in Denver is $1,009,681. To schedule a showing of MLS#rec6169173 at 11273 E 28th Place in Denver, CO, contact your Smart Sale AI agent at 3039066915.
Similar Listings Nearby
Additional Details
MLS # : REC6169173
Listing Key : REC2051931147
Parcel Number : 1263-16-021
Zip Code : 80238
City : Denver
State : CO
Building if Condo :
Street : 11273 E 28th Place
Address : 11273
Address Prefix :
Address Suffix : Place
Unit if Condo :
Latitude : 39.757206
Longitude : -104.857124
Property Type : singlefamily
Property Sub Type : Single Family Residence
Stories Total if Condo :
Lot Size : 2,686 sqft / 0.06 acres (approx)
Ownership : Corporation/Trust
Zoning : R-MU-20
Condition :
Renovation :
Pets Allowed : Cats OK,Dogs OK
Special Conditions : None
Possession : Closing/DOD
Original Price : 670000
Close Price :
Close Date :
List Date : Feb 18, 2026
List Contract Date : 2026-02-18
Off Market Date : 2026-04-05
Purchase Contract Date : 2026-04-05
Days on Market : 60
Concessions Amount :
Concession Comment :

Copyright 2026. All rights reserved.
11273 E 28th Place
Denver, CO

















































