1351 N Franklin Street Denver CO 80218 MLS #REC8470641
1351 N Franklin Street
Denver, CO, 80218
$1,600,000
Live in a $1.6M historic Denver home for the cost of ~$800K—thanks to $4K–$5.2K/month in built-in income.
$20K seller concession offered — perfect for rate buy-down, closing costs, or upgrades.
Steps from Cheesman Park & short walk to Cherry Creek, this stunning 1886 Victorian wows with its iconic corner turret & rich original architectural details blending historic charm with modern luxury in one of Denver’s most desirable neighborhoods.
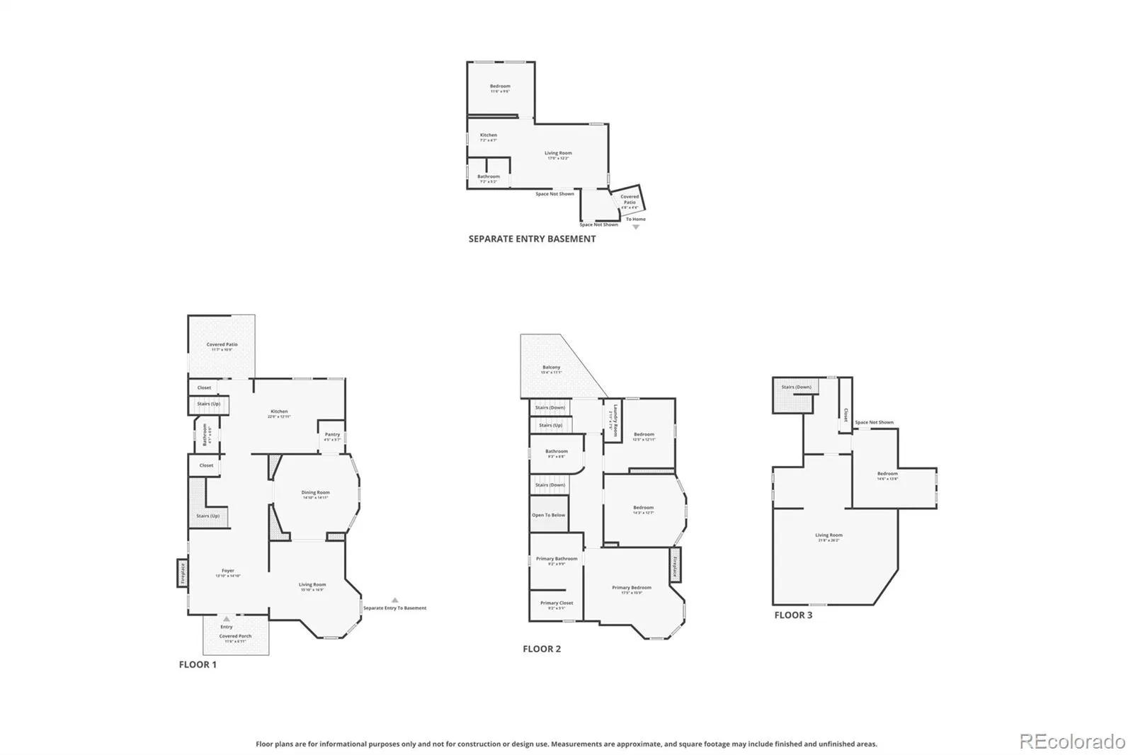
The standout private-entry garden-level 1-bed, 1-bath apartment (with full kitchen) delivers strong income—approximately $4K–$5.2K/month ($45K–$63K/year) depending on use and leasing strategy. Perfect for an au pair, in-laws, multigenerational living, or savvy house hacking that offsets your mortgage while keeping everyone comfortably close yet independent. Zoning allows for a potential 3rd unit, adding long-term upside.
Spanning 4,052 sq ft across 4 levels, the home offers 5 bedrooms & 4 bathrooms with exceptional flexibility for extended family or investors. Timeless original details—rich hardwood floors, intricate trim, pocket doors, & 3 fireplaces with original tile—shine alongside a gourmet kitchen featuring Viking & Kenmore Elite appliances, a spa-like primary bath, and attic media room complete with bar.
Outdoor living is magic: a welcoming front porch for peaceful mornings, a sunset & Denver skyline-facing second-story back deck for unforgettable evenings, a private yard, & a 2.5-car detached garage with future rooftop deck potential. Beautifully restored & flooded with natural light, this true sanctuary honors its heritage while delivering the warm, inviting lifestyle you’ve been dreaming of.
Perfectly positioned on a quiet, tree-lined block, this is a rare opportunity to own a legacy property that lives as beautifully as it performs.
The main home has historically rented for $6,250–$6,500/month furnished—creating ~$10K–$12K/month in total income when combined with the ADU.
Listing Agent has ownership in home.
$20K seller concession offered — perfect for rate buy-down, closing costs, or upgrades.
Steps from Cheesman Park & short walk to Cherry Creek, this stunning 1886 Victorian wows with its iconic corner turret & rich original architectural details blending historic charm with modern luxury in one of Denver’s most desirable neighborhoods.
The standout private-entry garden-level 1-bed, 1-bath apartment (with full kitchen) delivers strong income—approximately $4K–$5.2K/month ($45K–$63K/year) depending on use and leasing strategy. Perfect for an au pair, in-laws, multigenerational living, or savvy house hacking that offsets your mortgage while keeping everyone comfortably close yet independent. Zoning allows for a potential 3rd unit, adding long-term upside.
Spanning 4,052 sq ft across 4 levels, the home offers 5 bedrooms & 4 bathrooms with exceptional flexibility for extended family or investors. Timeless original details—rich hardwood floors, intricate trim, pocket doors, & 3 fireplaces with original tile—shine alongside a gourmet kitchen featuring Viking & Kenmore Elite appliances, a spa-like primary bath, and attic media room complete with bar.
Outdoor living is magic: a welcoming front porch for peaceful mornings, a sunset & Denver skyline-facing second-story back deck for unforgettable evenings, a private yard, & a 2.5-car detached garage with future rooftop deck potential. Beautifully restored & flooded with natural light, this true sanctuary honors its heritage while delivering the warm, inviting lifestyle you’ve been dreaming of.
Perfectly positioned on a quiet, tree-lined block, this is a rare opportunity to own a legacy property that lives as beautifully as it performs.
The main home has historically rented for $6,250–$6,500/month furnished—creating ~$10K–$12K/month in total income when combined with the ADU.
Listing Agent has ownership in home.
Property Details
Price:
$1,600,000
MLS #:
REC8470641
Status:
Active
Beds:
5
Baths:
4
Type:
Single Family
Subtype:
Single Family Residence
Subdivision:
Cheesman Park
Finished Sq Ft:
4,052
Total Sq Ft:
4,060
Lot Size:
3,915 sqft / 0.09 acres (approx)
Year Built:
1886
Schools
School District:
Denver 1
Elementary School:
Dora Moore
Middle School:
Morey
High School:
East
Interior
Above Grade Finished Area
3136
Bathrooms
4 Full Bathrooms
Below Grade Finished Area
916
Below Grade Unfinished Area
8
Cooling
Air Conditioning-Room, Central Air
Heating
Baseboard, Electric, Forced Air
Levels
Three Or More
Main Level Bathrooms
1
Exterior
Architectural Style
Denver Square, Victorian
Construction Materials
Brick, Rock, Stone
Exterior Features
Balcony, Barbecue, Dog Run, Fire Pit, Garden, Gas Grill, Gas Valve, Lighting, Private Yard, Rain Gutters, Smart Irrigation, Water Feature
Fencing
Full
Garage Spaces
2
Green Energy Efficient
HVAC, Lighting
Lot Features
Level, Many Trees, Sprinklers In Front, Sprinklers In Rear
Parking Spots
2
Parking Total
2
Patio And Porch Features
Covered, Deck, Front Porch, Patio, Rooftop
Roof
Composition
Financial
Tax Year
2024
Taxes
$7,142
Map
Contact Us
Mortgage Calculator
Property Summary
- Located in the Cheesman Park subdivision, 1351 N Franklin Street Denver CO is a Single Family for sale in Denver, CO, 80218. It is listed for $1,600,000 and features 5 beds, 4 baths, and has approximately 4,052 square feet of living space, and was originally constructed in 1886. The current price per square foot is $395. The average price per square foot for Single Family listings in Denver is $424. The average listing price for Single Family in Denver is $1,008,693. To schedule a showing of MLS#rec8470641 at 1351 N Franklin Street in Denver, CO, contact your Smart Sale AI agent at 3039066915.
Similar Listings Nearby
Additional Details
MLS # : REC8470641
Listing Key : REC2053341130
Parcel Number : 5021-09-004
Zip Code : 80218
City : Denver
State : CO
Building if Condo :
Street : 1351 N Franklin Street
Address : 1351
Address Prefix :
Address Suffix : Street
Unit if Condo :
Latitude : 39.737782
Longitude : -104.968575
Property Type : singlefamily
Property Sub Type : Single Family Residence
Stories Total if Condo :
Lot Size : 3,915 sqft / 0.09 acres (approx)
Ownership : Agent Owner
Zoning : U-RH-3A
Condition : Updated/Remodeled
Renovation :
Pets Allowed :
Special Conditions : None
Possession :
Original Price : 1600000
Close Price :
Close Date :
List Date : Apr 17, 2026
List Contract Date : 2026-04-17
Off Market Date :
Purchase Contract Date :
Days on Market : 0
Concessions Amount :
Concession Comment :

Copyright 2026. All rights reserved.
1351 N Franklin Street
Denver, CO




















































