566 Josephine Street Denver CO 80206 MLS #REC3156101
566 Josephine Street
Denver, CO, 80206
$1,350,000
Welcome Home to Cherry Creek North! Just updated the kitchen!
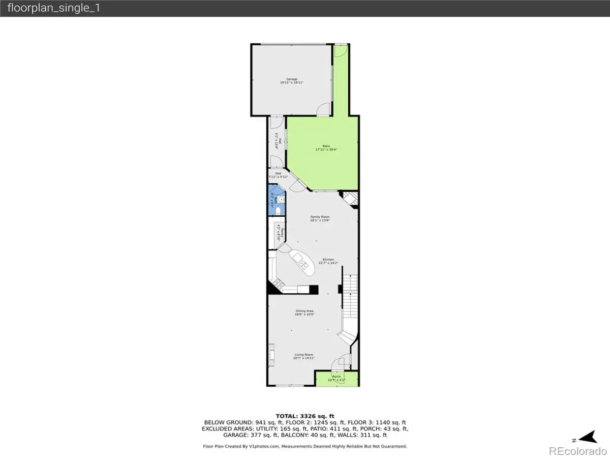
This fabulous, quiet, and conveniently located townhome blends style, comfort, and smart upgrades to make life easy. From the moment you step through the beautifully landscaped front entry, you’ll feel the inviting flow of this bright, open home. The living room with fireplace sets a cozy tone, while the spacious dining area is perfect for gatherings. Just beyond, the recently updated gourmet kitchen opens to a warm family room with a second fireplace and direct access to your private courtyard — ideal for entertaining or simply enjoying a quiet evening under the stars.
Upstairs, the light-filled staircase leads to a serene primary suite complete with a spa-like 5 piece bathroom with jetted tub and generous walk-in closet. You’ll also find a convenient upstairs laundry, a versatile loft/study with its own private balcony, and a second bedroom with en-suite bath.
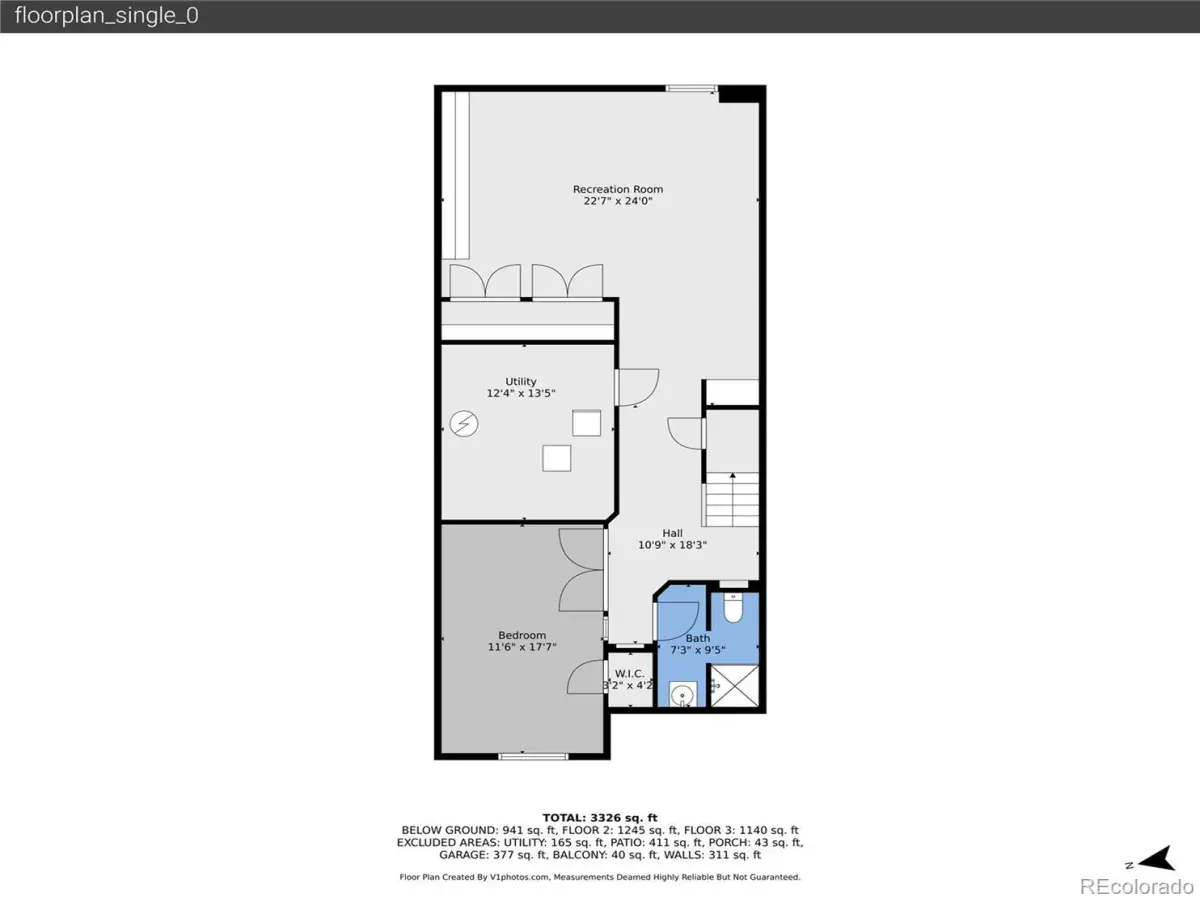
The finished basement adds even more flexibility, offering a rec room, a conforming third bedroom, ¾ bath, and plenty of storage. Parking is never an issue here — along with the attached two-car garage, there are up to three additional spaces (a rarity in Cherry Creek North!).
What really sets this home apart are the big-ticket updates already taken care of: 1 yr old roof, a fully paid for full solar system paired with a high-end electric water heater, plus a new refrigerator and dishwasher. That’s thousands of dollars in improvements you don’t have to worry about.
And let’s talk location — walking distance to Whole Foods, restaurants, shops, salons, and schools (just 2 minutes to Good Shepherd and 7 minutes to Bromwell). Even the neighborhood convenience store is extra friendly, with limited hours, no alcohol sales, and great lighting for added peace of mind.
This home blends the best of easy living, smart upgrades, and unbeatable location — ready for you to move right in and enjoy the Cherry Creek lifestyle.
This fabulous, quiet, and conveniently located townhome blends style, comfort, and smart upgrades to make life easy. From the moment you step through the beautifully landscaped front entry, you’ll feel the inviting flow of this bright, open home. The living room with fireplace sets a cozy tone, while the spacious dining area is perfect for gatherings. Just beyond, the recently updated gourmet kitchen opens to a warm family room with a second fireplace and direct access to your private courtyard — ideal for entertaining or simply enjoying a quiet evening under the stars.
Upstairs, the light-filled staircase leads to a serene primary suite complete with a spa-like 5 piece bathroom with jetted tub and generous walk-in closet. You’ll also find a convenient upstairs laundry, a versatile loft/study with its own private balcony, and a second bedroom with en-suite bath.
The finished basement adds even more flexibility, offering a rec room, a conforming third bedroom, ¾ bath, and plenty of storage. Parking is never an issue here — along with the attached two-car garage, there are up to three additional spaces (a rarity in Cherry Creek North!).
What really sets this home apart are the big-ticket updates already taken care of: 1 yr old roof, a fully paid for full solar system paired with a high-end electric water heater, plus a new refrigerator and dishwasher. That’s thousands of dollars in improvements you don’t have to worry about.
And let’s talk location — walking distance to Whole Foods, restaurants, shops, salons, and schools (just 2 minutes to Good Shepherd and 7 minutes to Bromwell). Even the neighborhood convenience store is extra friendly, with limited hours, no alcohol sales, and great lighting for added peace of mind.
This home blends the best of easy living, smart upgrades, and unbeatable location — ready for you to move right in and enjoy the Cherry Creek lifestyle.
Property Details
Price:
$1,350,000
MLS #:
REC3156101
Status:
Active Under Contract
Beds:
3
Baths:
4
Type:
Townhouse
Subdivision:
Cherry Creek North
Finished Sq Ft:
3,482
Total Sq Ft:
3,684
Lot Size:
2,987 sqft / 0.07 acres (approx)
Year Built:
2000
Schools
School District:
Denver 1
Elementary School:
Bromwell
Middle School:
Morey
High School:
East
Interior
Above Grade Finished Area
2484
Appliances
Dishwasher, Disposal, Dryer, Microwave, Oven, Range, Refrigerator, Self Cleaning Oven, Washer
Bathrooms
2 Full Bathrooms, 1 Three Quarter Bathroom, 1 Half Bathroom
Below Grade Finished Area
998
Below Grade Unfinished Area
202
Cooling
Central Air
Fireplaces Total
2
Flooring
Carpet, Tile, Wood
Heating
Forced Air
Interior Features
Ceiling Fan(s), Eat-in Kitchen, Five Piece Bath, Granite Counters, High Ceilings, High Speed Internet, Kitchen Island, Marble Counters, Open Floorplan, Pantry, Primary Suite, Radon Mitigation System, Smoke Free, Vaulted Ceiling(s), Walk-In Closet(s)
Laundry Features
In Unit
Levels
Two
Main Level Bathrooms
1
Exterior
Architectural Style
Contemporary
Attached Garage YN
1
Common Walls
2+ Common Walls
Construction Materials
Frame, Stucco
Direction Faces
West
Exterior Features
Balcony, Garden, Lighting, Private Yard
Fencing
Partial
Garage Spaces
2
Green Energy Efficient
Appliances, Lighting, Water Heater, Windows
Lot Features
Landscaped, Near Public Transit, Sprinklers In Front, Sprinklers In Rear
Parking Features
Dry Walled, Exterior Access Door, Insulated Garage, Lighted, Storage
Parking Spots
5
Parking Total
5
Patio And Porch Features
Patio
Roof
Shingle
Security Features
Carbon Monoxide Detector(s), Radon Detector, Smoke Detector(s), Video Doorbell
Spa Features
Bath
View
City
Window Features
Double Pane Windows, Egress Windows, Window Coverings
Financial
HOA Fee
$275
HOA Fee Frequency
Monthly
HOA Includes
Maintenance Grounds
HOA Name
Josephine Townhomes
HOA Phone
8082551323
Tax Year
2024
Taxes
$6,274
Map
Contact Us
Mortgage Calculator
Property Summary
- Located in the Cherry Creek North subdivision, 566 Josephine Street Denver CO is a Townhouse for sale in Denver, CO, 80206. It is listed for $1,350,000 and features 3 beds, 4 baths, and has approximately 3,482 square feet of living space, and was originally constructed in 2000. The current price per square foot is $388. The average price per square foot for Townhouse listings in Denver is $379. The average listing price for Townhouse in Denver is $633,365. To schedule a showing of MLS#rec3156101 at 566 Josephine Street in Denver, CO, contact your Smart Sale AI agent at 3039066915.
Similar Listings Nearby
Additional Details
MLS # : REC3156101
Listing Key : REC2049269514
Parcel Number : 5016-33-029
Zip Code : 80206
City : Denver
State : CO
Building if Condo :
Street : 566 Josephine Street
Address : 566
Address Prefix :
Address Suffix : Street
Unit if Condo :
Latitude : 39.725185
Longitude : -104.957970
Property Type : townhouse
Property Sub Type : Townhouse
Stories Total if Condo :
Lot Size : 2,987 sqft / 0.07 acres (approx)
Ownership : Corporation/Trust
Zoning : G-RH-3
Condition : Updated/Remodeled
Renovation :
Pets Allowed : Cats OK,Dogs OK
Special Conditions : None
Possession : Close Plus 3 Days
Original Price : 1500000
Close Price :
Close Date :
List Date : Sep 3, 2025
List Contract Date : 2025-09-03
Off Market Date : 2026-03-26
Purchase Contract Date : 2026-03-26
Days on Market : 227
Concessions Amount :
Concession Comment :

Copyright 2026. All rights reserved.
566 Josephine Street
Denver, CO















































