1644 S Lafayette Street Denver CO 80210 MLS #REC2922493
1644 S Lafayette Street
Denver, CO, 80210
$1,750,000
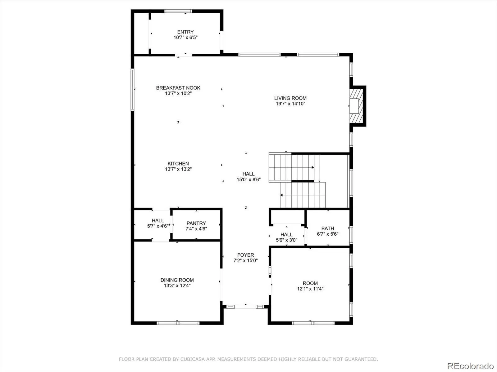
Perched on an elevated lot with easy access to Platt Park, Wash Park, and surrounding neighborhoods, this custom residence delivers scale, light, and a level of finish rarely found. The main living space is expansive and bright, anchored by soaring ceilings, white oak floors throughout the main and second floor, and oversized windows that flood the home with natural light. The living room centers around a fireplace and flows effortlessly into the kitchen, creating a cohesive environment for daily living and entertaining. The kitchen has been thoughtfully refreshed with new quartz countertops, designer lighting, and a high-end appliance suite including Miele, JennAir, and Sub-Zero, all oriented around a substantial island. A walk-through butler’s pantry with prep space connects to the formal dining room for a polished hosting experience. Just beyond, a dedicated main floor office with custom built-ins provides a refined workspace. A large mudroom completes the main level. Upstairs, four bedrooms on one level offer a layout that is increasingly rare. The primary suite is a standout with a fireplace, chandelier, and mountain views. The ensuite bath features dual vanities, a soaking tub, large shower, and a spacious walk-in closet. One secondary bedroom serves as a private guest suite with its own ensuite bath, while two additional bedrooms are supported by a full hall bath with a separate water closet. A centrally located laundry room adds convenience. The finished basement offers tall ceilings, a large recreation space, a custom display room ideal for whiskey, wine, or a library, plus an additional bedroom and full bath. The backyard is private and usable, while the detached three-car garage with additional off-street parking is a rare offering, providing exceptional space for vehicles, storage, or hobbies. Wide, substantial, and intentionally designed, this home offers a rare combination of volume, layout, and finish in a premier Denver location.
Property Details
Price:
$1,750,000
MLS #:
REC2922493
Status:
Active Under Contract
Beds:
5
Baths:
5
Type:
Single Family
Subtype:
Single Family Residence
Subdivision:
DU Platte Park
Finished Sq Ft:
4,515
Total Sq Ft:
4,515
Lot Size:
6,240 sqft / 0.14 acres (approx)
Year Built:
2014
Schools
School District:
Denver 1
Elementary School:
Asbury
Middle School:
Grant
High School:
South
Interior
Above Grade Finished Area
3020
Appliances
Bar Fridge, Cooktop, Dishwasher, Disposal, Double Oven, Dryer, Gas Water Heater, Microwave, Range, Range Hood, Refrigerator, Warming Drawer, Washer
Bathrooms
3 Full Bathrooms, 1 Three Quarter Bathroom, 1 Half Bathroom
Below Grade Finished Area
1495
Cooling
Central Air
Fireplaces Total
2
Flooring
Carpet, Tile, Wood
Heating
Forced Air, Natural Gas
Interior Features
Built-in Features, Ceiling Fan(s), Central Vacuum, Entrance Foyer, Five Piece Bath, High Ceilings, Kitchen Island, Open Floorplan, Pantry, Primary Suite, Quartz Counters, Smoke Free, Walk-In Closet(s)
Levels
Two
Main Level Bathrooms
1
Exterior
Architectural Style
Traditional
Construction Materials
Frame, Stone, Wood Siding
Exterior Features
Garden, Gas Valve
Fencing
Full
Garage Spaces
3
Lot Features
Level, Sprinklers In Front, Sprinklers In Rear
Parking Features
Concrete, Dry Walled, Exterior Access Door, Floor Coating, Insulated Garage, Lighted
Parking Spots
4
Parking Total
4
Patio And Porch Features
Covered, Front Porch, Patio
Roof
Shingle
Security Features
Carbon Monoxide Detector(s), Smoke Detector(s)
View
Mountain(s)
Window Features
Double Pane Windows, Egress Windows, Skylight(s), Window Coverings
Financial
Tax Year
2024
Taxes
$9,275
Map
Contact Us
Mortgage Calculator
Property Summary
- Located in the DU Platte Park subdivision, 1644 S Lafayette Street Denver CO is a Single Family for sale in Denver, CO, 80210. It is listed for $1,750,000 and features 5 beds, 5 baths, and has approximately 4,515 square feet of living space, and was originally constructed in 2014. The current price per square foot is $388. The average price per square foot for Single Family listings in Denver is $424. The average listing price for Single Family in Denver is $1,008,997. To schedule a showing of MLS#rec2922493 at 1644 S Lafayette Street in Denver, CO, contact your Smart Sale AI agent at 3039066915.
Similar Listings Nearby
Additional Details
MLS # : REC2922493
Listing Key : REC2053164453
Parcel Number : 5233-13-006
Zip Code : 80210
City : Denver
State : CO
Building if Condo :
Street : 1644 S Lafayette Street
Address : 1644
Address Prefix :
Address Suffix : Street
Unit if Condo :
Latitude : 39.686958
Longitude : -104.970772
Property Type : singlefamily
Property Sub Type : Single Family Residence
Stories Total if Condo :
Lot Size : 6,240 sqft / 0.14 acres (approx)
Ownership : Individual
Zoning : U-SU-C
Condition : Updated/Remodeled
Renovation :
Pets Allowed :
Special Conditions : None
Possession : Closing/DOD
Original Price : 1750000
Close Price :
Close Date :
List Date : Apr 9, 2026
List Contract Date : 2026-04-09
Off Market Date : 2026-04-11
Purchase Contract Date : 2026-04-11
Days on Market : 8
Concessions Amount :
Concession Comment :

Copyright 2026. All rights reserved.
1644 S Lafayette Street
Denver, CO















































