5474 Espana Street Denver CO 80249 MLS #REC8784186
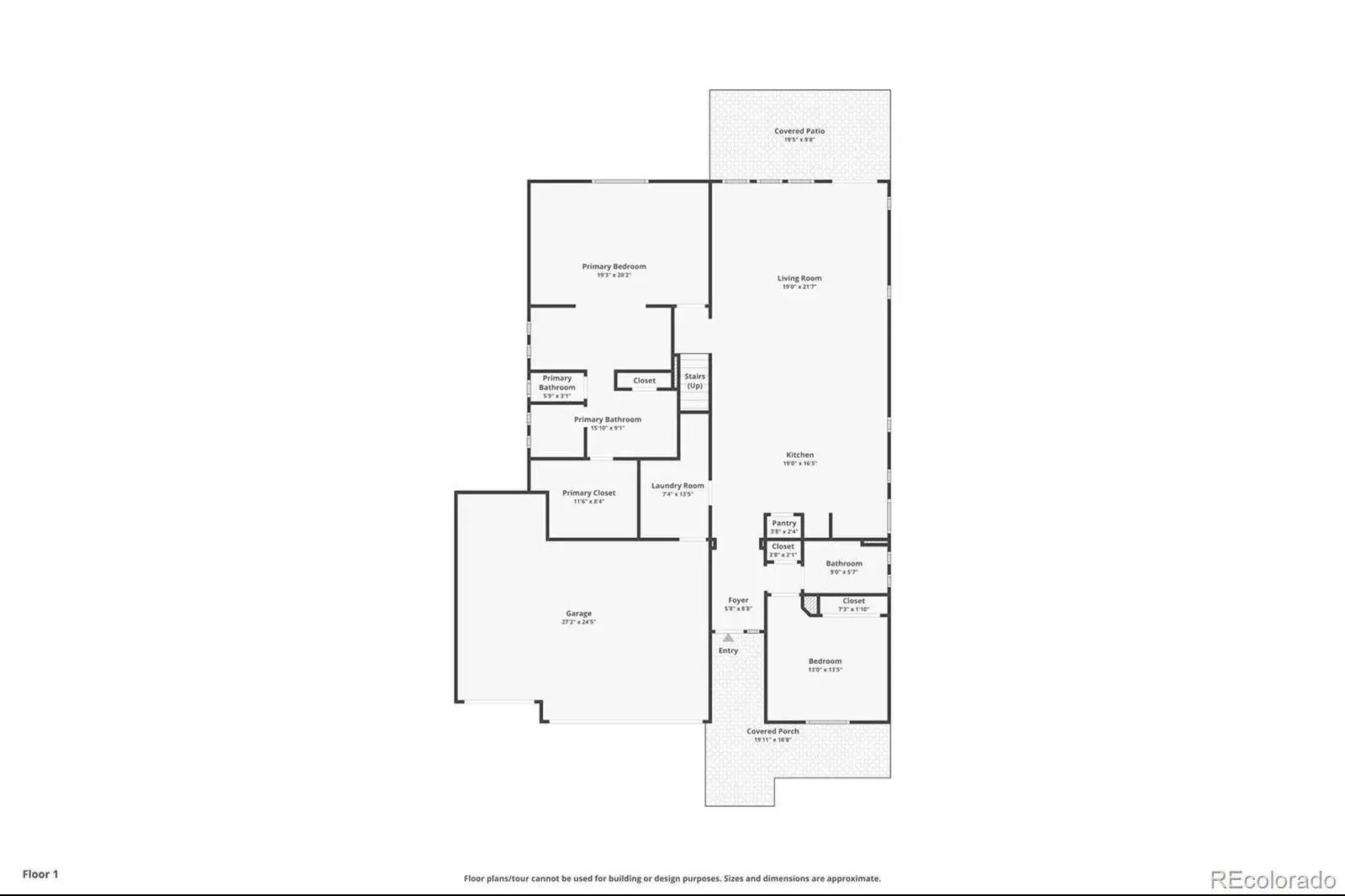
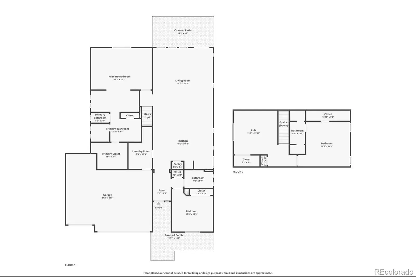
PRICE IMPROVED!!!!!!!!! Impeccably maintained and thoughtfully updated, this exceptional home at 5474 Espana Street offers a stylish, open-concept layout ideal for modern living. Built in 2014 and situated on a 7,205 sq ft lot in Green Valley Ranch, this residence blends space, function, and comfort in one of Denver’s most desirable neighborhoods. Step inside to discover a bright, open floor plan that effortlessly connects the main living, dining, and kitchen areas—perfect for everyday living and entertaining. The main-floor primary suite provides true single-level convenience, while an additional main-floor office/guest bedroom adds flexibility to suit your lifestyle. Upstairs loft, additional bedroom with a huge walk in closet for storage and stunning 3/4 bathroom provides an excellent space for unwinding and guests. Large windows throughout fill the home with natural light and accentuate the thoughtful finishes.
The chef kitchen is designed for both everyday use and hosting, and the covered rear patio expands your living space outdoors for summer evenings and weekend gatherings. Recent significant improvements—including a new HVAC system, water heater, and upgraded irrigation system, newer roof, siding—add reliability and long-term value, allowing buyers to move in with confidence. Located just minutes from shopping, dining, parks, and community amenities, this home delivers both convenience and quality. Don’t miss your opportunity to see the upgrades and lifestyle this home offers—schedule your showing today to experience it in person.
The chef kitchen is designed for both everyday use and hosting, and the covered rear patio expands your living space outdoors for summer evenings and weekend gatherings. Recent significant improvements—including a new HVAC system, water heater, and upgraded irrigation system, newer roof, siding—add reliability and long-term value, allowing buyers to move in with confidence. Located just minutes from shopping, dining, parks, and community amenities, this home delivers both convenience and quality. Don’t miss your opportunity to see the upgrades and lifestyle this home offers—schedule your showing today to experience it in person.
Property Details
Price:
$639,000
MLS #:
REC8784186
Status:
Active
Beds:
3
Baths:
3
Type:
Single Family
Subtype:
Single Family Residence
Subdivision:
Fairway Villas
Finished Sq Ft:
2,634
Total Sq Ft:
2,634
Lot Size:
7,205 sqft / 0.17 acres (approx)
Year Built:
2014
Schools
School District:
Denver 1
Elementary School:
Omar D. Blair Charter School
Middle School:
Omar D. Blair Charter School
High School:
KIPP Denver Collegiate High School
Interior
Above Grade Finished Area
2634
Appliances
Convection Oven, Dishwasher, Dryer, Microwave, Range, Range Hood, Refrigerator, Self Cleaning Oven, Washer
Bathrooms
2 Full Bathrooms, 1 Three Quarter Bathroom
Cooling
Central Air
Flooring
Carpet, Laminate
Heating
Forced Air
Interior Features
Built-in Features, Ceiling Fan(s), Eat-in Kitchen, Entrance Foyer, Five Piece Bath, Granite Counters, High Ceilings, High Speed Internet, Kitchen Island, Open Floorplan, Pantry, Primary Suite, Quartz Counters, Smoke Free, Solid Surface Counters
Levels
Two
Main Level Bathrooms
2
Main Level Bedrooms
2
Exterior
Architectural Style
Traditional
Association Amenities
Clubhouse, Fitness Center, Garden Area, Golf Course, Pool
Attached Garage YN
1
Common Walls
No Common Walls
Community
55+
Construction Materials
Brick, Vinyl Siding
Exterior Features
Private Yard
Fencing
Full
Garage Spaces
3
Lot Features
Irrigated, Landscaped, Level, Master Planned, Near Public Transit, Sprinklers In Front, Sprinklers In Rear
Parking Features
Finished Garage, Storage
Parking Spots
3
Parking Total
3
Patio And Porch Features
Covered, Front Porch, Patio
Roof
Composition
Security Features
Carbon Monoxide Detector(s), Smoke Detector(s)
Senior Community YN
1
Financial
HOA Fee Frequency
Included in Property Tax
HOA Includes
Maintenance Grounds, Recycling, Trash
HOA Name
Green Valley Ranch Metro District
HOA Phone
303-307-8601
Tax Year
2024
Taxes
$6,606
Map
Contact Us
Mortgage Calculator
Property Summary
- Located in the Fairway Villas subdivision, 5474 Espana Street Denver CO is a Single Family for sale in Denver, CO, 80249. It is listed for $639,000 and features 3 beds, 3 baths, and has approximately 2,634 square feet of living space, and was originally constructed in 2014. The current price per square foot is $243. The average price per square foot for Single Family listings in Denver is $425. The average listing price for Single Family in Denver is $1,010,435. To schedule a showing of MLS#rec8784186 at 5474 Espana Street in Denver, CO, contact your Smart Sale AI agent at 3039066915.
Similar Listings Nearby
Additional Details
MLS # : REC8784186
Listing Key : REC2051481900
Parcel Number : 143-25-002
Zip Code : 80249
City : Denver
State : CO
Building if Condo :
Street : 5474 Espana Street
Address : 5474
Address Prefix :
Address Suffix : Street
Unit if Condo :
Latitude : 39.793705
Longitude : -104.759735
Property Type : singlefamily
Property Sub Type : Single Family Residence
Stories Total if Condo :
Lot Size : 7,205 sqft / 0.17 acres (approx)
Ownership : Individual
Zoning : R-MU-20
Condition :
Renovation :
Pets Allowed :
Special Conditions : None
Possession : Negotiable
Original Price : 650000
Close Price :
Close Date :
List Date : Jan 23, 2026
List Contract Date : 2026-01-23
Off Market Date :
Purchase Contract Date :
Days on Market : 81
Concessions Amount :
Concession Comment :

Copyright 2026. All rights reserved.
5474 Espana Street
Denver, CO

































