6400 E Mississippi Avenue Denver CO 80224 MLS #REC2650704
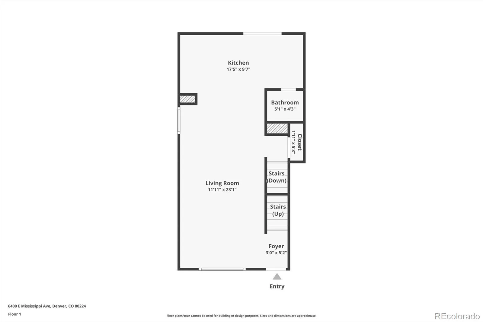
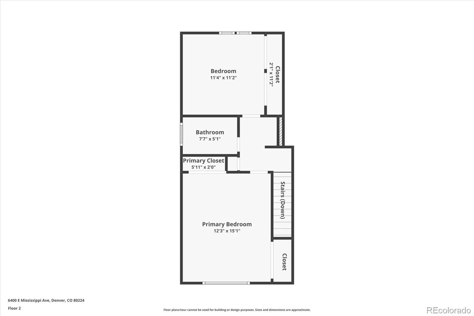
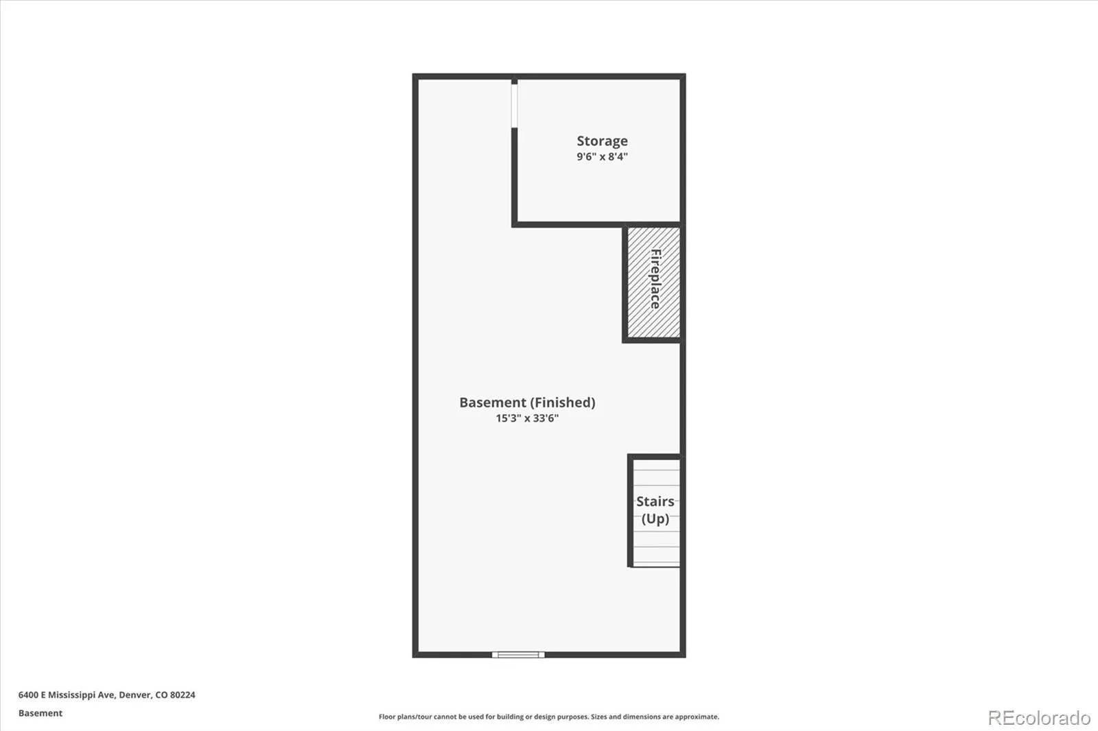
Welcome to Your New Home in the Heart of French Quarter! Ideally situated moments from shops, restaurants, & within blocks of local schools, this beautifully updated end-unit townhome offers comfort, convenience, and style. This charming 2-story residence features a detached 2-car carport, wood-burning fireplace, and finished basement perfect for additional living space, a home office, or generous storage. Modern elegance meets functionality in the fully remodeled kitchen w/newer white cabinetry, striking granite slab countertops, a sleek glass tile backsplash, stainless steel appliances, a breakfast bar with seating, and a bonus pantry for added storage. The main floor is spacious & versatile, ideal for both living and dining, & opens to a private, fenced-in patio off the Kitchen with a cozy garden area perfect for outdoor entertaining or quiet mornings.Upstairs, you’ll find 2 generously sized bedrooms w/spacious closets with built-in shelving systems. The full bathroom, along w/an additional vanity area, has been tastefully updated w/granite countertops, contemporary fixtures, & modern cabinetry. Additional highlights include hardwood flooring on the main level, durable luxury vinyl plank flooring upstairs & in the basement, as well as updated vinyl windows & sliding door. Community amenities include: indoor pool, clubhouse, & party room ideal for social gatherings or relaxing weekends. The monthly HOA includes these amenities & all grounds/exterior maintenance, snow removal, trash/recycling, water/sewer. Enjoy the Cherry Creek Trail, Garland Park, and Tennis Courts nearby. Short walk to McMeen Elementary. Easy access to grocery, shops, restaurants, Cherry Creek Mall/shopping district, and downtown. Public Transit options are right there! This home blends thoughtful updates with unbeatable location and value. Don’t miss your opportunity to make it yours!
Property Details
Price:
$350,000
MLS #:
REC2650704
Status:
Active
Beds:
2
Baths:
2
Type:
Condo
Subtype:
Condominium
Subdivision:
French Quarter
Finished Sq Ft:
1,839
Total Sq Ft:
1,839
Year Built:
1970
Schools
School District:
Denver 1
Elementary School:
McMeen
Middle School:
Hill
High School:
George Washington
Interior
Above Grade Finished Area
1304
Appliances
Dishwasher, Disposal, Microwave, Range, Refrigerator
Bathrooms
1 Full Bathroom, 1 Half Bathroom
Below Grade Finished Area
508
Below Grade Unfinished Area
27
Cooling
Central Air
Fireplaces Total
1
Flooring
Vinyl, Wood
Heating
Forced Air
Interior Features
Eat-in Kitchen, Granite Counters
Laundry Features
In Unit
Levels
Two
Main Level Bathrooms
1
Exterior
Association Amenities
Clubhouse, Pool
Common Walls
End Unit, 1 Common Wall
Construction Materials
Brick, Frame
Direction Faces
South
Exterior Features
Private Yard
Fencing
Full
Lot Features
Greenbelt
Parking Spots
2
Parking Total
2
Patio And Porch Features
Patio
Roof
Other
Window Features
Double Pane Windows
Financial
HOA Fee
$525
HOA Fee Frequency
Monthly
HOA Includes
Maintenance Grounds, Maintenance Structure, Recycling, Sewer, Snow Removal, Trash, Water
HOA Name
French Quarter
HOA Phone
720-961-5150
Tax Year
2025
Taxes
$1,882
Map
Contact Us
Mortgage Calculator
Property Summary
- Located in the French Quarter subdivision, 6400 E Mississippi Avenue Denver CO is a Condo for sale in Denver, CO, 80224. It is listed for $350,000 and features 2 beds, 2 baths, and has approximately 1,839 square feet of living space, and was originally constructed in 1970. The current price per square foot is $190. The average price per square foot for Condo listings in Denver is $391. The average listing price for Condo in Denver is $472,685. To schedule a showing of MLS#rec2650704 at 6400 E Mississippi Avenue in Denver, CO, contact your Smart Sale AI agent at 3039066915.
Similar Listings Nearby
Additional Details
MLS ID : REC2650704
Listing Key : REC2053255344
Parcel Number : 6202-01-139
Zip Code : 80224
City : Denver
State : CO
Building if Condo : French Quarter
Full Street: 6400 E Mississippi Avenue
Address : 6400
Address Prefix :
Address Suffix : Avenue
Street : Mississippi
Street Prefix : E
Street Suffix :
Unit if Condo :
Latitude : 39.696087
Longitude : -104.914352
Property Type : condo
Property Sub Type : Condominium
Stories Total if Condo :
Lot Size :
Ownership : Corporation/Trust
Zoning : R-2-A
Condition :
Renovation :
Pets Allowed : Yes
Special Conditions : None
Possession :
Original Price : 350000
Close Price :
Close Date :
List Date : Apr 8, 2026
List Contract Date : 2026-04-08
Off Market Date :
Purchase Contract Date :
Days on Market : 47
Concessions Amount :
Concession Comment :
Renovation :
Company : Madison & Company Properties

Copyright 2026. All rights reserved.
6400 E Mississippi Avenue
Denver, CO


























