2340 W 48th Avenue S Drive Denver CO 80211 MLS #REC5425859
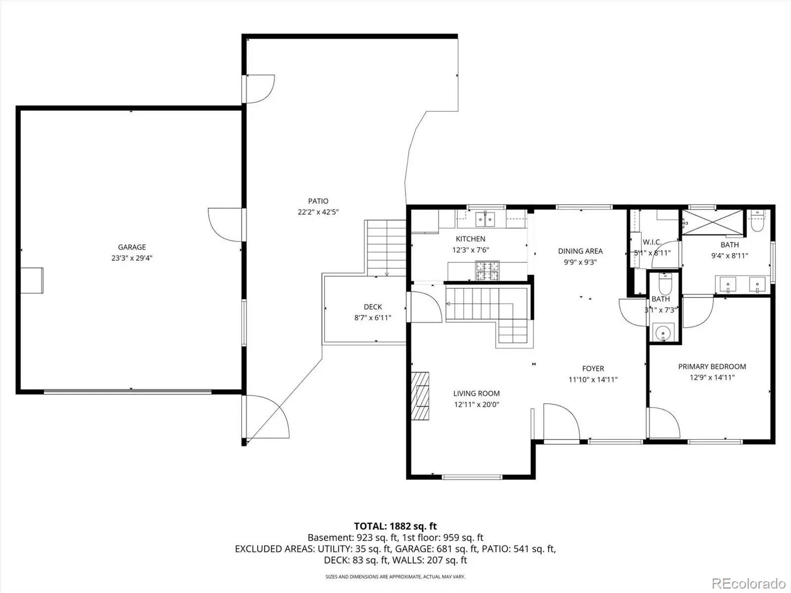
Updated modern raised ranch located in the desirable Highlands/Sunnyside area with convenient access to dining, entertainment, and downtown Denver. Home is walking distance to Bacon Social House, El Jefe’s, and minutes from sporting and entertainment venues such as Coors Field and Empower Field at Mile High. The updated kitchen features quartz countertops, stainless steel appliances, and a stainless steel vent hood. The living room includes a wood-burning fireplace, creating a comfortable space during cooler months. Bathrooms throughout the home have been thoughtfully updated with modern finishes. The main level includes the primary bedroom, 3/4 bathroom, and a convenient half bath. The garden-level lower level offers a spacious recreation room, two additional bedrooms, an updated bathroom, and a laundry room. Luxury vinyl flooring and tile run throughout the home for durability and easy maintenance. The oversized heated two-car garage offers nearly 700 sq. ft. of space for vehicles, storage, or projects. Outdoor features include a Trex deck, stamped concrete patio, and arbor with a built-in fire pit, providing multiple spaces to enjoy the outdoors. Major system updates include electrical panel (2021), plumbing (2023), HVAC (2023), and water heater (2024). Pella windows provide additional insulation and sound reduction. The listing agent is providing a one-year home warranty for the buyer. *Seller has a 2.875% VA Assumable Loan.* This home qualifies for the community reinvestment act providing 1.75% of the loan amount with a cap of $7,000 as a credit towards buyer’s closing costs, pre-paids and discount points.
Property Details
Price:
$725,000
MLS #:
REC5425859
Status:
Active Under Contract
Beds:
3
Baths:
3
Type:
Single Family
Subtype:
Single Family Residence
Subdivision:
Highlands
Finished Sq Ft:
2,015
Total Sq Ft:
2,049
Lot Size:
7,114 sqft / 0.16 acres (approx)
Year Built:
1974
Schools
School District:
Denver 1
Elementary School:
Trevista at Horace Mann
Middle School:
Skinner
High School:
North
Interior
Above Grade Finished Area
1099
Appliances
Dishwasher, Dryer, Gas Water Heater, Oven, Range Hood, Refrigerator, Washer
Bathrooms
1 Full Bathroom, 1 Three Quarter Bathroom, 1 Half Bathroom
Below Grade Finished Area
916
Below Grade Unfinished Area
34
Cooling
Central Air
Fireplaces Total
1
Flooring
Tile, Vinyl
Heating
Forced Air, Natural Gas
Interior Features
Quartz Counters
Levels
Two
Main Level Bathrooms
2
Main Level Bedrooms
1
Exterior
Construction Materials
Brick, Stucco
Exterior Features
Fire Pit
Garage Spaces
2
Lot Features
Level
Parking Features
Dry Walled, Electric Vehicle Charging Station(s), Heated Garage, Oversized
Parking Spots
2
Parking Total
2
Patio And Porch Features
Deck, Patio
Roof
Composition
Security Features
Carbon Monoxide Detector(s), Smoke Detector(s), Video Doorbell
Financial
Tax Year
2024
Taxes
$3,412
Map
Contact Us
Mortgage Calculator
Property Summary
- Located in the Highlands subdivision, 2340 W 48th Avenue S Drive Denver CO is a Single Family for sale in Denver, CO, 80211. It is listed for $725,000 and features 3 beds, 3 baths, and has approximately 2,015 square feet of living space, and was originally constructed in 1974. The current price per square foot is $360. The average price per square foot for Single Family listings in Denver is $424. The average listing price for Single Family in Denver is $1,011,080. To schedule a showing of MLS#rec5425859 at 2340 W 48th Avenue S Drive in Denver, CO, contact your Smart Sale AI agent at 3039066915.
Similar Listings Nearby
Additional Details
MLS # : REC5425859
Listing Key : REC2052619424
Parcel Number : 2212-06-013
Zip Code : 80211
City : Denver
State : CO
Building if Condo :
Street : 2340 W 48th Avenue S Drive
Address : 2340
Address Prefix :
Address Suffix : Drive
Unit if Condo :
Latitude : 39.783051
Longitude : -105.015038
Property Type : singlefamily
Property Sub Type : Single Family Residence
Stories Total if Condo :
Lot Size : 7,114 sqft / 0.16 acres (approx)
Ownership : Individual
Zoning : U-SU-C
Condition : Fixer
Renovation :
Pets Allowed :
Special Conditions : None
Possession : Immediate
Original Price : 725000
Close Price :
Close Date :
List Date : Mar 14, 2026
List Contract Date : 2026-03-14
Off Market Date : 2026-03-25
Purchase Contract Date : 2026-03-25
Days on Market : 38
Concessions Amount :
Concession Comment :

Copyright 2026. All rights reserved.
2340 W 48th Avenue S Drive
Denver, CO












































