3515 Wyandot Street Denver CO 80211 MLS #REC7134628
Permit approved Duplex, plans come with the purchase. Permit expires in June.
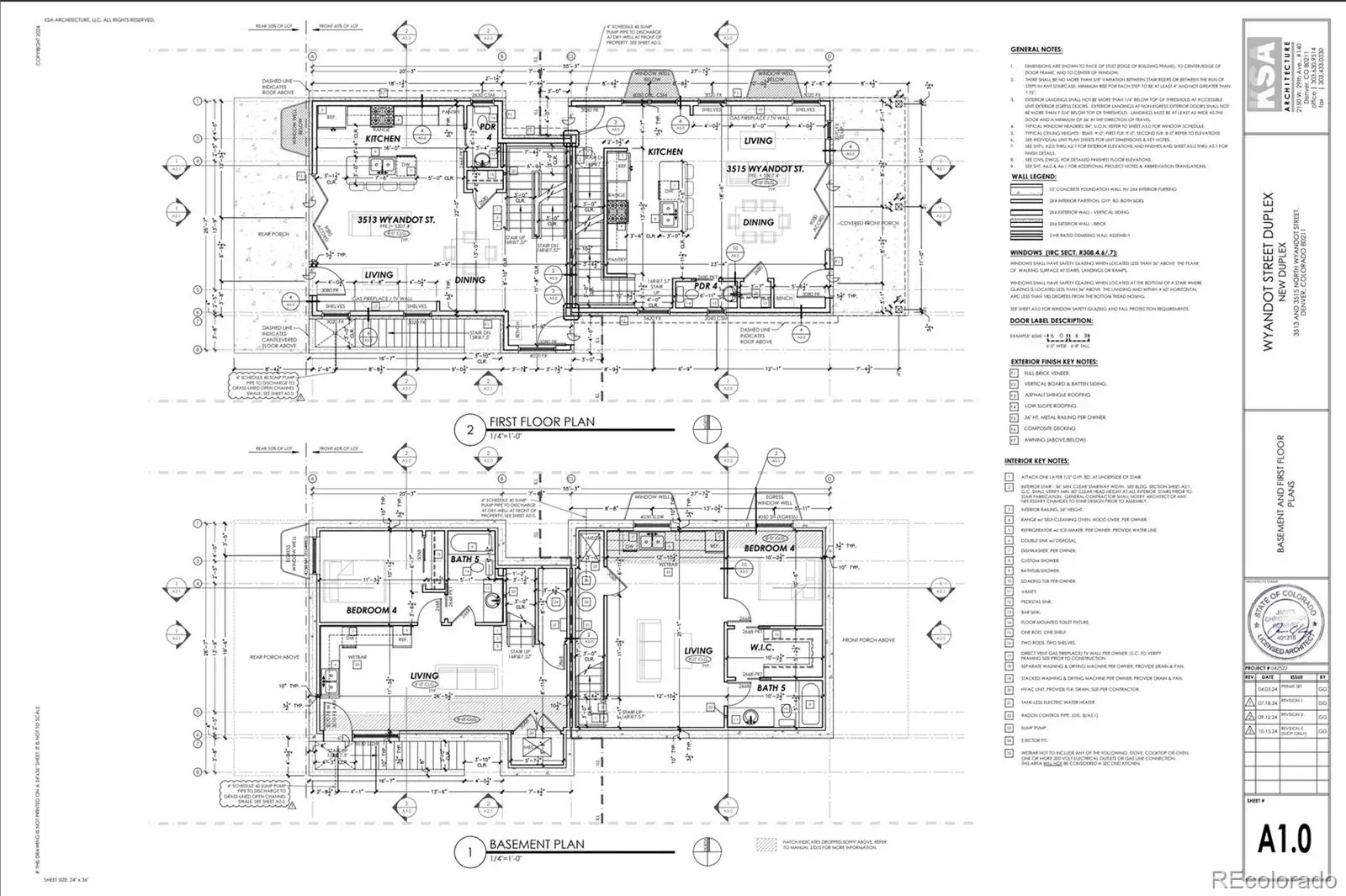
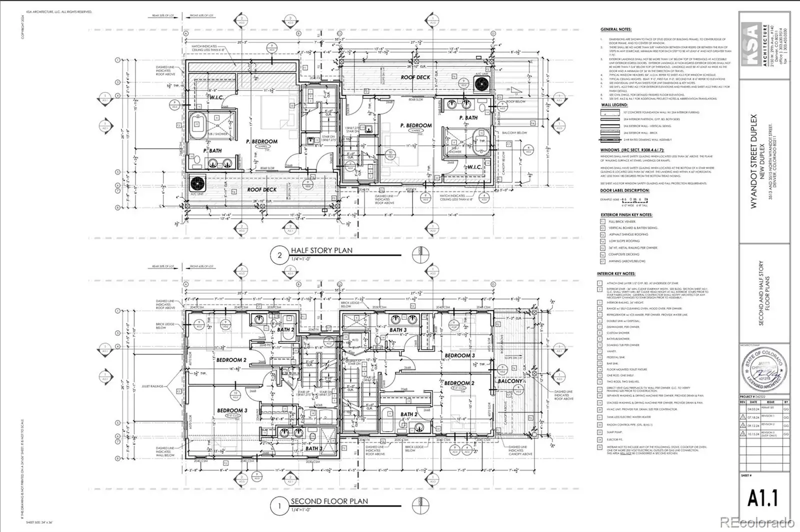
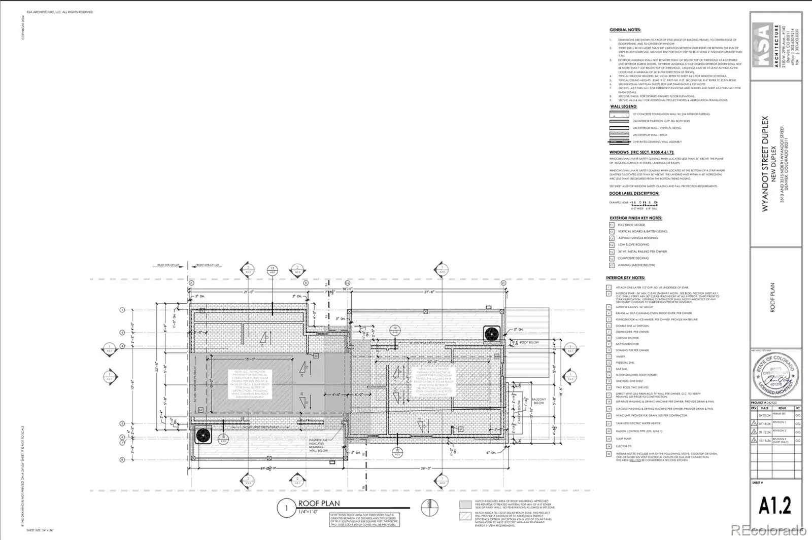
Each side is —- 2500 square feet. Four bedroom five bath. Rooftop decks with amazing views. 2 car Garage. Lock of Lock off legal Airbnb’s in the basement. ADU. See documents for details.
Open to partnerships. Call 417-593-6536 to discuss
Current home on the property.
Charming 2 bed 1 bath bungalow styled home in the lovely Highland/Sunnyside neighborhood with an open main level great for entertaining. You can learn to love the quirky kitchen or renovate for your needs; basement bonus room adds flexible space for a home office, gym or storage. Large back patio perfect for storing all of your Colorado outdoor gear. Fantastic location with easy access to I-25 and I-70 for quick trips to downtown or the mountains.
Development, duplex, zoning, permits, land, TU,
Each side is —- 2500 square feet. Four bedroom five bath. Rooftop decks with amazing views. 2 car Garage. Lock of Lock off legal Airbnb’s in the basement. ADU. See documents for details.
Open to partnerships. Call 417-593-6536 to discuss
Current home on the property.
Charming 2 bed 1 bath bungalow styled home in the lovely Highland/Sunnyside neighborhood with an open main level great for entertaining. You can learn to love the quirky kitchen or renovate for your needs; basement bonus room adds flexible space for a home office, gym or storage. Large back patio perfect for storing all of your Colorado outdoor gear. Fantastic location with easy access to I-25 and I-70 for quick trips to downtown or the mountains.
Development, duplex, zoning, permits, land, TU,
Property Details
Price:
$750,000
MLS #:
REC7134628
Status:
Active
Beds:
2
Baths:
1
Type:
Single Family
Subtype:
Single Family Residence
Subdivision:
LoHi
Finished Sq Ft:
892
Total Sq Ft:
1,300
Lot Size:
4,700 sqft / 0.11 acres (approx)
Year Built:
1925
Schools
School District:
Denver 1
Elementary School:
Columbian
Middle School:
Skinner
High School:
North
Interior
Above Grade Finished Area
892
Bathrooms
1 Full Bathroom
Below Grade Unfinished Area
408
Cooling
Air Conditioning-Room
Heating
Forced Air
Laundry Features
In Unit
Levels
One
Main Level Bathrooms
1
Main Level Bedrooms
2
Exterior
Common Walls
No Common Walls
Construction Materials
Brick
Fencing
Full
Lot Features
Level
Parking Spots
2
Parking Total
2
Roof
Shingle
Financial
Tax Year
2024
Taxes
$3,273
Map
Contact Us
Mortgage Calculator
Property Summary
- Located in the LoHi subdivision, 3515 Wyandot Street Denver CO is a Single Family for sale in Denver, CO, 80211. It is listed for $750,000 and features 2 beds, 1 baths, and has approximately 892 square feet of living space, and was originally constructed in 1925. The current price per square foot is $841. The average price per square foot for Single Family listings in Denver is $424. The average listing price for Single Family in Denver is $1,010,087. To schedule a showing of MLS#rec7134628 at 3515 Wyandot Street in Denver, CO, contact your Smart Sale AI agent at 3039066915.
Similar Listings Nearby
Additional Details
MLS # : REC7134628
Listing Key : REC2051407095
Parcel Number : 2282-18-014
Zip Code : 80211
City : Denver
State : CO
Building if Condo :
Street : 3515 Wyandot Street
Address : 3515
Address Prefix :
Address Suffix : Street
Unit if Condo :
Latitude : 39.765953
Longitude : -105.014648
Property Type : singlefamily
Property Sub Type : Single Family Residence
Stories Total if Condo :
Lot Size : 4,700 sqft / 0.11 acres (approx)
Ownership : Agent Owner
Zoning : U-TU-B
Condition : New Construction,Under Construction
Renovation :
Pets Allowed :
Special Conditions : None
Possession :
Original Price : 800000
Close Price :
Close Date :
List Date : Jan 22, 2026
List Contract Date : 2026-01-22
Off Market Date :
Purchase Contract Date :
Days on Market : 89
Concessions Amount :
Concession Comment :

Copyright 2026. All rights reserved.
3515 Wyandot Street
Denver, CO





























