1757 W 34th Avenue Denver CO 80211 MLS #REC6489222
1757 W 34th Ave/3420 Quivas by appointment ONLY!!!
Zoned U-TU-B
Property is sold AS IS
Call Peter (303)246-7383
Unique investment opportunity!! Corner double lot in highly sought after Lower Highland in Denver. (loHi)
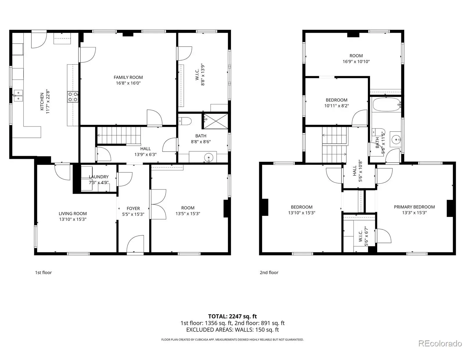
This lot has two separate dwellings. The 2-story main house facing 34th Ave has three bedrooms and two baths. It is structurally compromised and will eventually need to be rebuilt.
The second home, formerly a grocery store, facing Quivas Street has been rented as a Corporate Housing unit. Most recently for $3150 a month. This two-bed, one-bath single-story home, approximately 1,000 sf has an open loft layout with a separate attached sun porch currently used as a second bedroom. (non conforming as it does not have a closet)
Between both structures is a cobblestone-paved courtyard. The property has a relatively new three car garage accessible from the alley on Quivas Street and through the courtyard by foot. The legal address for both is 1757 W 34th Ave. While the back, former grocery store is named 3420 Quivas St on Google Maps, it is technically 1757 W 34th Ave #2.
Currently both units are rented on a monthly basis. The main house is rented at $2600/month and the former grocery store is rented at $3150/month. This provides a total income of $5,750 a month for any investor while they determine changes and procure permits.
All information, claims and statements regarding the use/zoning and potential improvement of this property must be verified by the interested party and are not guaranteed by the Seller/Listing Agent.
Attached are floor plans of both units and photos of Quivas property only.
Zoned U-TU-B
Property is sold AS IS
Call Peter (303)246-7383
Unique investment opportunity!! Corner double lot in highly sought after Lower Highland in Denver. (loHi)
This lot has two separate dwellings. The 2-story main house facing 34th Ave has three bedrooms and two baths. It is structurally compromised and will eventually need to be rebuilt.
The second home, formerly a grocery store, facing Quivas Street has been rented as a Corporate Housing unit. Most recently for $3150 a month. This two-bed, one-bath single-story home, approximately 1,000 sf has an open loft layout with a separate attached sun porch currently used as a second bedroom. (non conforming as it does not have a closet)
Between both structures is a cobblestone-paved courtyard. The property has a relatively new three car garage accessible from the alley on Quivas Street and through the courtyard by foot. The legal address for both is 1757 W 34th Ave. While the back, former grocery store is named 3420 Quivas St on Google Maps, it is technically 1757 W 34th Ave #2.
Currently both units are rented on a monthly basis. The main house is rented at $2600/month and the former grocery store is rented at $3150/month. This provides a total income of $5,750 a month for any investor while they determine changes and procure permits.
All information, claims and statements regarding the use/zoning and potential improvement of this property must be verified by the interested party and are not guaranteed by the Seller/Listing Agent.
Attached are floor plans of both units and photos of Quivas property only.
Property Details
Price:
$950,000
MLS #:
REC6489222
Status:
Active
Beds:
0
Baths:
0
Type:
Land
Subtype:
Improved Land
Subdivision:
Lower Highland LoHi
Lot Size:
7,170 sqft / 0.16 acres (approx)
Schools
School District:
Denver 1
Interior
Exterior
Attached Garage YN
1
Garage Spaces
3
Lot Features
Level
Parking Features
220 Volts
Parking Spots
3
Parking Total
3
Financial
Tax Year
2024
Taxes
$8,238
Map
Contact Us
Mortgage Calculator
Property Summary
- Located in the Lower Highland (LoHi) subdivision, 1757 W 34th Avenue Denver CO is a Land for sale in Denver, CO, 80211. It is listed for $950,000 and features 0 acres. To schedule a showing of MLS#rec6489222 at 1757 W 34th Avenue in Denver, CO, contact your Smart Sale AI agent at 3039066915.
Similar Listings Nearby
Additional Details
MLS # : REC6489222
Listing Key : REC2052286191
Parcel Number : 2282-24-028
Zip Code : 80211
City : Denver
State : CO
Building if Condo :
Street : 1757 W 34th Avenue
Address : 1757
Address Prefix :
Address Suffix : Avenue
Unit if Condo :
Latitude : 39.764664
Longitude : -105.007843
Property Type : land
Property Sub Type : Improved Land
Stories Total if Condo :
Lot Size : 7,170 sqft / 0.16 acres (approx)
Ownership : Agent Owner
Zoning : U-TU-B
Condition :
Renovation :
Pets Allowed :
Special Conditions : None
Possession :
Original Price : 1100000
Close Price :
Close Date :
List Date : Feb 26, 2026
List Contract Date : 2026-02-26
Off Market Date :
Purchase Contract Date :
Days on Market : 55
Concessions Amount :
Concession Comment :

Copyright 2026. All rights reserved.
1757 W 34th Avenue
Denver, CO
























