475 Olive Street Denver CO 80220 MLS #REC2102316
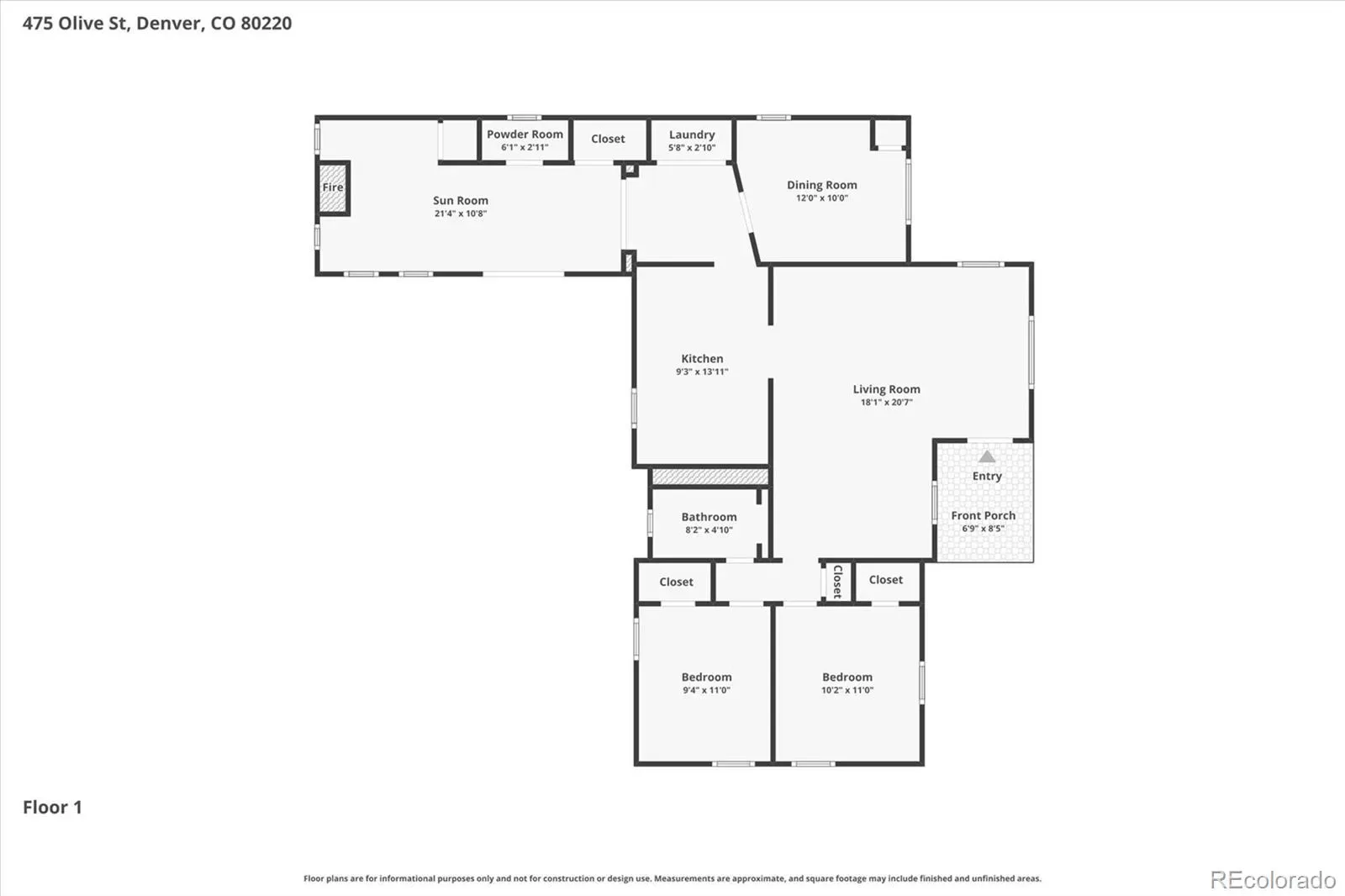
Welcome home to this charming ranch-style home with easy access to all Lowry has to offer, this is 475 Olive Street. This 3-bed/2-bath home greets you with instant curb appeal and unfolds to an updated home that perfectly blends modern amenities and historical charm. This home exudes pride of ownership! The main living spaces feature refinished hardwood floors, a neutral palette, and upgraded lighting. The formal dining room (currently used as a piano room) seamlessly connects to the updated kitchen, complete with white cabinetry, a gas range, granite counters, and abundant natural light from the above skylight. Enjoy a peaceful afternoon reading or relaxing evenings curled up by the gas fireplace in the back sunroom addition. Step out of the large glass slider to the spacious backyard, with a large patio and pergola, for summer entertaining, all overlooking mature trees and lush landscaping. The bonus shed is the ideal spot for all your tools and toys. Additional features of this residence include a tankless water heater, Lennox central AC, a well-insulated attic, and multiple off-street parking spots. 475 Olive Street is within minutes of Lowry Sports Complex, Great Lawn park, the Hanger Club, Lowry Beer Garden, and endless shopping, dining, and entertainment.
Property Details
Price:
$599,000
MLS #:
REC2102316
Status:
Active Under Contract
Beds:
3
Baths:
2
Type:
Single Family
Subtype:
Single Family Residence
Subdivision:
Mayfair Park
Finished Sq Ft:
1,296
Total Sq Ft:
1,296
Lot Size:
6,680 sqft / 0.15 acres (approx)
Year Built:
1946
Schools
School District:
Denver 1
Elementary School:
Lowry
Middle School:
Hill
High School:
George Washington
Interior
Above Grade Finished Area
1296
Appliances
Dishwasher, Disposal, Dryer, Microwave, Oven, Range, Refrigerator, Tankless Water Heater, Washer
Bathrooms
1 Full Bathroom, 1 Half Bathroom
Cooling
Central Air
Fireplaces Total
1
Flooring
Stone, Tile, Wood
Heating
Floor Furnace, Natural Gas
Interior Features
Built-in Features, Ceiling Fan(s), Granite Counters, High Ceilings, No Stairs, Smoke Free, Vaulted Ceiling(s)
Laundry Features
In Unit
Levels
One
Main Level Bathrooms
2
Main Level Bedrooms
3
Exterior
Architectural Style
Traditional
Construction Materials
Brick, Frame, Vinyl Siding
Direction Faces
East
Exterior Features
Garden, Private Yard, Rain Gutters
Fencing
Full
Lot Features
Landscaped, Level, Many Trees, Sprinklers In Front, Sprinklers In Rear
Parking Spots
4
Parking Total
4
Patio And Porch Features
Covered, Front Porch, Patio
Roof
Composition
Security Features
Smoke Detector(s)
Window Features
Double Pane Windows, Skylight(s), Window Coverings
Financial
Tax Year
2024
Taxes
$3,029
Map
Contact Us
Mortgage Calculator
Property Summary
- Located in the Mayfair Park subdivision, 475 Olive Street Denver CO is a Single Family for sale in Denver, CO, 80220. It is listed for $599,000 and features 3 beds, 2 baths, and has approximately 1,296 square feet of living space, and was originally constructed in 1946. The current price per square foot is $462. The average price per square foot for Single Family listings in Denver is $424. The average listing price for Single Family in Denver is $1,009,690. To schedule a showing of MLS#rec2102316 at 475 Olive Street in Denver, CO, contact your Smart Sale AI agent at 3039066915.
Similar Listings Nearby
Additional Details
MLS # : REC2102316
Listing Key : REC2052721687
Parcel Number : 6081-09-019
Zip Code : 80220
City : Denver
State : CO
Building if Condo :
Street : 475 Olive Street
Address : 475
Address Prefix :
Address Suffix : Street
Unit if Condo :
Latitude : 39.723846
Longitude : -104.907127
Property Type : singlefamily
Property Sub Type : Single Family Residence
Stories Total if Condo :
Lot Size : 6,680 sqft / 0.15 acres (approx)
Ownership : Individual
Zoning : E-SU-DX
Condition : Updated/Remodeled
Renovation :
Pets Allowed :
Special Conditions : None
Possession :
Original Price : 599000
Close Price :
Close Date :
List Date : Mar 19, 2026
List Contract Date : 2026-03-19
Off Market Date : 2026-03-22
Purchase Contract Date : 2026-03-22
Days on Market : 29
Concessions Amount :
Concession Comment :

Copyright 2026. All rights reserved.
475 Olive Street
Denver, CO
































