1749 Unit 1 & 2 N Williams Street Denver CO 80218 MLS #REC8826870
Introducing a New Construction Uptown Duplex designed for long-term investment performance and modern living. Situated in a high-growth neighborhood, this duplex offers the perfect combination of turnkey stability and appreciation upside. This building is just steps from St. Joseph Hospital and City Park where there is high demand for living in single family buildings with private doors, parking, yards, and utilities.
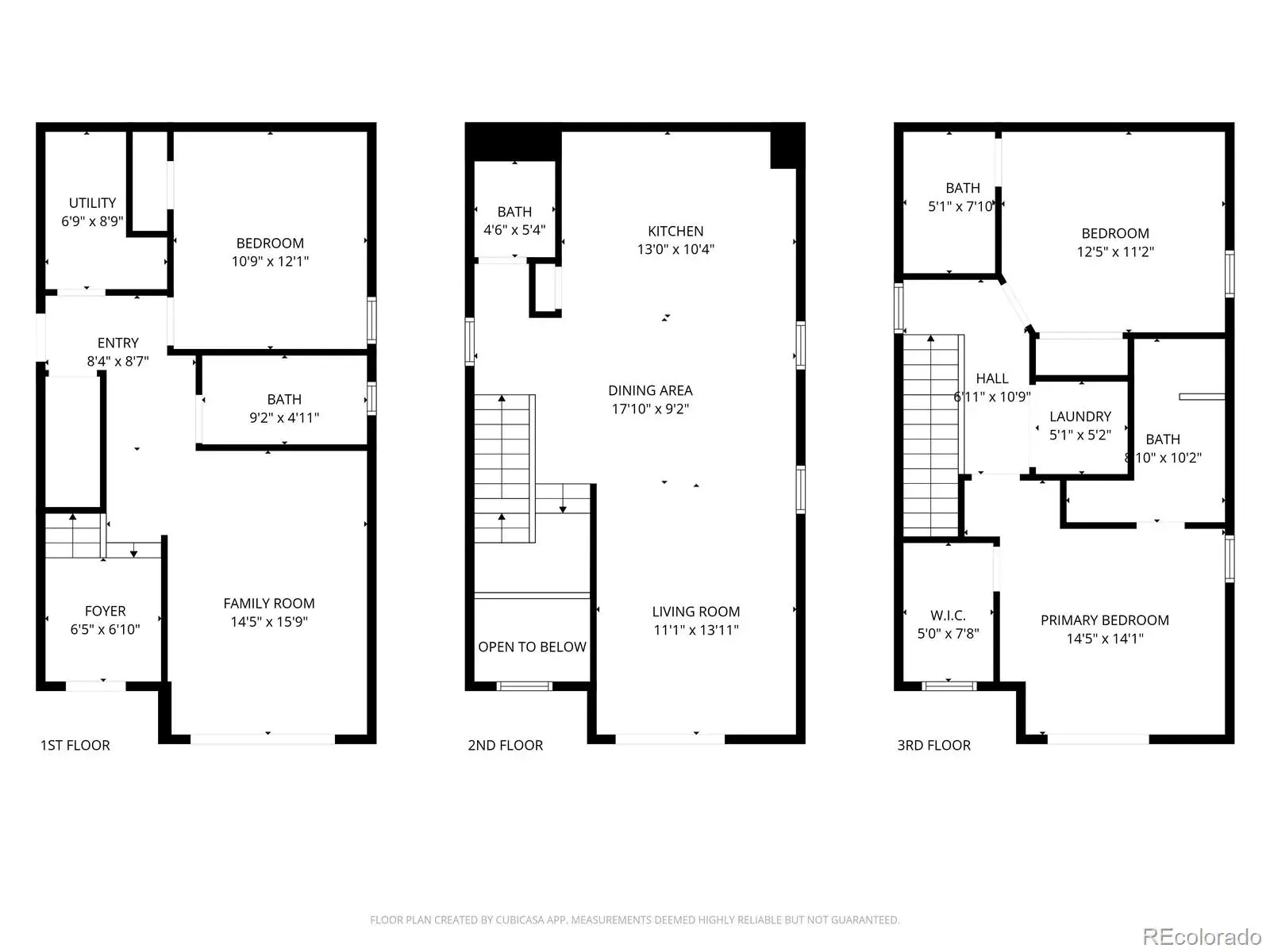
This rare investment opportunity is designed for strong rental performance and long-term value. Each unit offers premium finishes, private entrances, in-unit laundry, and energy-efficient systems. Located in the heart of one of Denver’s most walkable and high-demand neighborhoods, the property is ideal for attracting medical professionals and urban renters. With unbeatable proximity to hospitals, downtown, and transit, this is a turnkey portfolio investment in one of the city’s fastest-growing corridors. Each home / unit is situated on their own property and can be sold separately. Developer is flexible in the sale, and would consider selling part or all of the portfolio. There are 3 buildings / 6 units for sale currently. ***Taxes are estimated and will be determined prior to closing ***Party Wall agreement with no HOA*** Each home has own parcel ***Agent Owner Developer
This rare investment opportunity is designed for strong rental performance and long-term value. Each unit offers premium finishes, private entrances, in-unit laundry, and energy-efficient systems. Located in the heart of one of Denver’s most walkable and high-demand neighborhoods, the property is ideal for attracting medical professionals and urban renters. With unbeatable proximity to hospitals, downtown, and transit, this is a turnkey portfolio investment in one of the city’s fastest-growing corridors. Each home / unit is situated on their own property and can be sold separately. Developer is flexible in the sale, and would consider selling part or all of the portfolio. There are 3 buildings / 6 units for sale currently. ***Taxes are estimated and will be determined prior to closing ***Party Wall agreement with no HOA*** Each home has own parcel ***Agent Owner Developer
Property Details
Price:
$1,500,000
MLS #:
REC8826870
Status:
Active
Beds:
6
Baths:
4
Type:
Multi Family
Subtype:
Duplex
Subdivision:
MCCULLOUGH
Finished Sq Ft:
3,678
Total Sq Ft:
3,678
Lot Size:
3,125 sqft / 0.07 acres (approx)
Year Built:
2025
Schools
School District:
Denver 1
Elementary School:
Whittier E-8
Middle School:
Whittier E-8
High School:
East
Interior
Above Grade Finished Area
3678
Appliances
Dishwasher, Disposal, Electric Water Heater, Microwave, Oven, Range, Range Hood, Refrigerator, Sump Pump
Cooling
Central Air
Flooring
Carpet, Tile, Wood
Heating
Forced Air, Heat Pump
Interior Features
Entrance Foyer, High Speed Internet, In-Law Floorplan, Kitchen Island, Open Floorplan, Pantry, Primary Suite, Quartz Counters, Radon Mitigation System, Smart Thermostat, Smoke Free, Solid Surface Counters, Walk-In Closet(s), Wired for Data
Laundry Features
In Unit
Levels
Three Or More
Exterior
Architectural Style
Traditional, Urban Contemporary
Common Walls
1 Common Wall
Construction Materials
Brick, Cement Siding, Concrete, Frame
Exterior Features
Balcony, Lighting, Private Yard, Rain Gutters
Fencing
Partial
Garage Spaces
2
Green Energy Efficient
Appliances, Construction, HVAC, Insulation, Lighting, Thermostat, Water Heater, Windows
Lot Features
Landscaped, Level, Sprinklers In Front, Sprinklers In Rear, Subdividable
Parking Features
220 Volts, Concrete, Exterior Access Door, Oversized Door
Parking Spots
2
Parking Total
2
Patio And Porch Features
Patio
Roof
Composition, Membrane
Security Features
Carbon Monoxide Detector(s), Smoke Detector(s)
View
City
Financial
Tax Year
2024
Taxes
$6,905
Map
Contact Us
Mortgage Calculator
Property Summary
- Located in the MCCULLOUGH subdivision, 1749 Unit 1 & 2 N Williams Street Denver CO is a Multi Family for sale in Denver, CO, 80218. It is listed for $1,500,000 To schedule a showing of MLS#rec8826870 at 1749 Unit 1 & 2 N Williams Street in Denver, CO, contact your Smart Sale AI agent at 3039066915.
Similar Listings Nearby
Additional Details
MLS # : REC8826870
Listing Key : REC2052101262
Parcel Number : 0235519055000
Zip Code : 80218
City : Denver
State : CO
Building if Condo : Uptown Duplex
Street : 1749 Unit 1 & 2 N Williams Street
Address : 1749 Unit 1 & 2
Address Prefix :
Address Suffix : Street
Unit if Condo :
Latitude : 39.744148
Longitude : -104.966156
Property Type : multifamily
Property Sub Type : Duplex
Stories Total if Condo :
Lot Size : 3,125 sqft / 0.07 acres (approx)
Ownership : Corporation/Trust
Zoning : G-RO-3
Condition : New Construction
Renovation :
Pets Allowed :
Special Conditions : None
Possession : Closing/DOD
Original Price : 1630000
Close Price :
Close Date :
List Date : Feb 18, 2026
List Contract Date : 2026-02-18
Off Market Date :
Purchase Contract Date :
Days on Market : 59
Concessions Amount :
Concession Comment :

Copyright 2026. All rights reserved.
1749 Unit 1 & 2 N Williams Street
Denver, CO




















































