1385 S Vrain Way Denver CO 80219 MLS #REC7502304
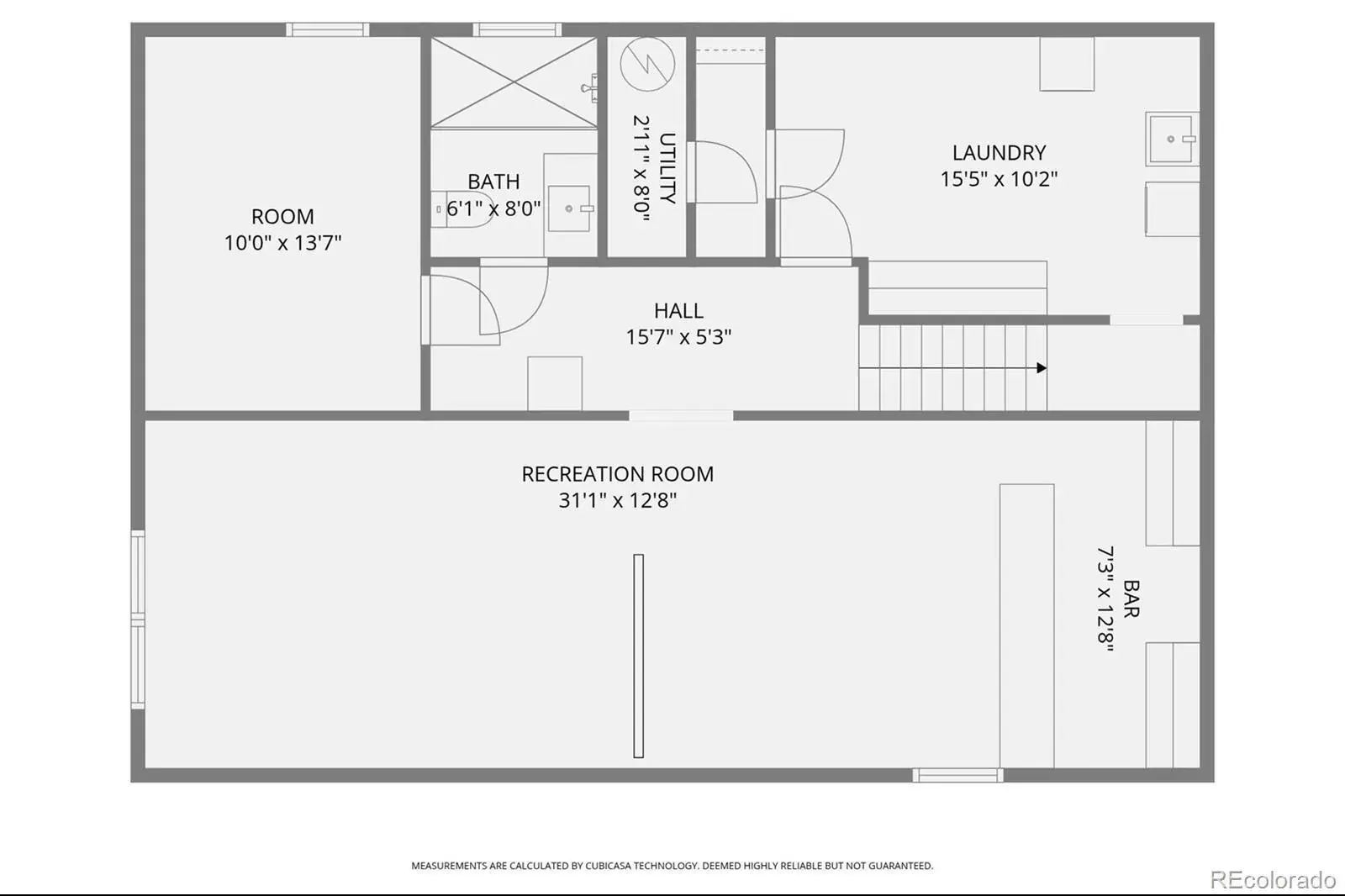
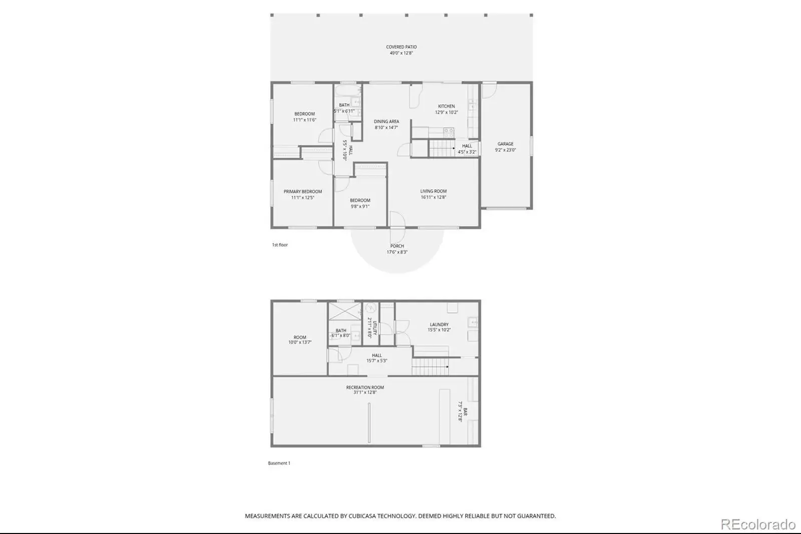
Be sure to include this home on your tour. Very sharp and spacious, move in ready ranch style home located in a great Southwest Denver neighborhood. Featuring 3 bedrooms on the main level, 1 bedroom and/or office in the basement, original hardwood floors, freshly painted, updated bathrooms in 2025, granite countertops & stainless-steel appliances in the kitchen, a large family room in the basement with a great retro bar and entertainment area, newer washer and dryer in the laundry room and lots of storage. The large covered concrete patio extends across the entire back of the house which allows for additional outdoor living and entertainment space. Excellent location, close to schools, restaurants, shopping and parks. Enjoy quick access to many major thoroughfares getting you anywhere in the greater metro Denver area or the beautiful Rocky Mountains in ample time. Rates are dropping.
Property Details
Price:
$529,000
MLS #:
REC7502304
Status:
Active Under Contract
Beds:
4
Baths:
2
Type:
Single Family
Subtype:
Single Family Residence
Subdivision:
Morbro Park/ Mar Lee
Finished Sq Ft:
1,995
Total Sq Ft:
2,190
Lot Size:
7,270 sqft / 0.17 acres (approx)
Year Built:
1954
Schools
School District:
Denver 1
Elementary School:
Force
Middle School:
Kepner
High School:
John F. Kennedy
Interior
Above Grade Finished Area
1095
Appliances
Dishwasher, Disposal, Dryer, Gas Water Heater, Oven, Range, Range Hood, Refrigerator, Washer
Bathrooms
1 Full Bathroom, 1 Three Quarter Bathroom
Below Grade Finished Area
900
Below Grade Unfinished Area
195
Cooling
None
Flooring
Tile, Wood
Heating
Forced Air
Interior Features
Ceiling Fan(s), Granite Counters, Radon Mitigation System, Smart Thermostat
Levels
One
Main Level Bathrooms
1
Main Level Bedrooms
3
Exterior
Architectural Style
A-Frame
Attached Garage YN
1
Construction Materials
Brick
Direction Faces
North
Exterior Features
Private Yard, Rain Gutters
Fencing
Full
Garage Spaces
1
Lot Features
Near Public Transit
Parking Features
Concrete
Parking Spots
3
Parking Total
3
Patio And Porch Features
Covered, Patio
Roof
Composition
Security Features
Carbon Monoxide Detector(s), Radon Detector, Smoke Detector(s)
Window Features
Double Pane Windows
Financial
Tax Year
2024
Taxes
$2,654
Map
Contact Us
Mortgage Calculator
Property Summary
- Located in the Morbro Park/ Mar Lee subdivision, 1385 S Vrain Way Denver CO is a Single Family for sale in Denver, CO, 80219. It is listed for $529,000 and features 4 beds, 2 baths, and has approximately 1,995 square feet of living space, and was originally constructed in 1954. The current price per square foot is $265. The average price per square foot for Single Family listings in Denver is $423. The average listing price for Single Family in Denver is $1,009,912. To schedule a showing of MLS#rec7502304 at 1385 S Vrain Way in Denver, CO, contact your Smart Sale AI agent at 3039066915.
Similar Listings Nearby
Additional Details
MLS # : REC7502304
Listing Key : REC2051039702
Parcel Number : 5192-31-005
Zip Code : 80219
City : Denver
State : CO
Building if Condo :
Street : 1385 S Vrain Way
Address : 1385
Address Prefix :
Address Suffix : Way
Unit if Condo :
Latitude : 39.691349
Longitude : -105.047508
Property Type : singlefamily
Property Sub Type : Single Family Residence
Stories Total if Condo :
Lot Size : 7,270 sqft / 0.17 acres (approx)
Ownership : Individual
Zoning : S-SU-D
Condition :
Renovation :
Pets Allowed :
Special Conditions : None
Possession : Closing/DOD
Original Price : 537000
Close Price :
Close Date :
List Date : Dec 6, 2025
List Contract Date : 2025-12-06
Off Market Date : 2026-04-20
Purchase Contract Date : 2026-04-20
Days on Market : 136
Concessions Amount :
Concession Comment :

Copyright 2026. All rights reserved.
1385 S Vrain Way
Denver, CO


































