2684 S Adams Street Denver CO 80210 MLS #REC2177580
2684 S Adams Street
Denver, CO, 80210
$1,150,000
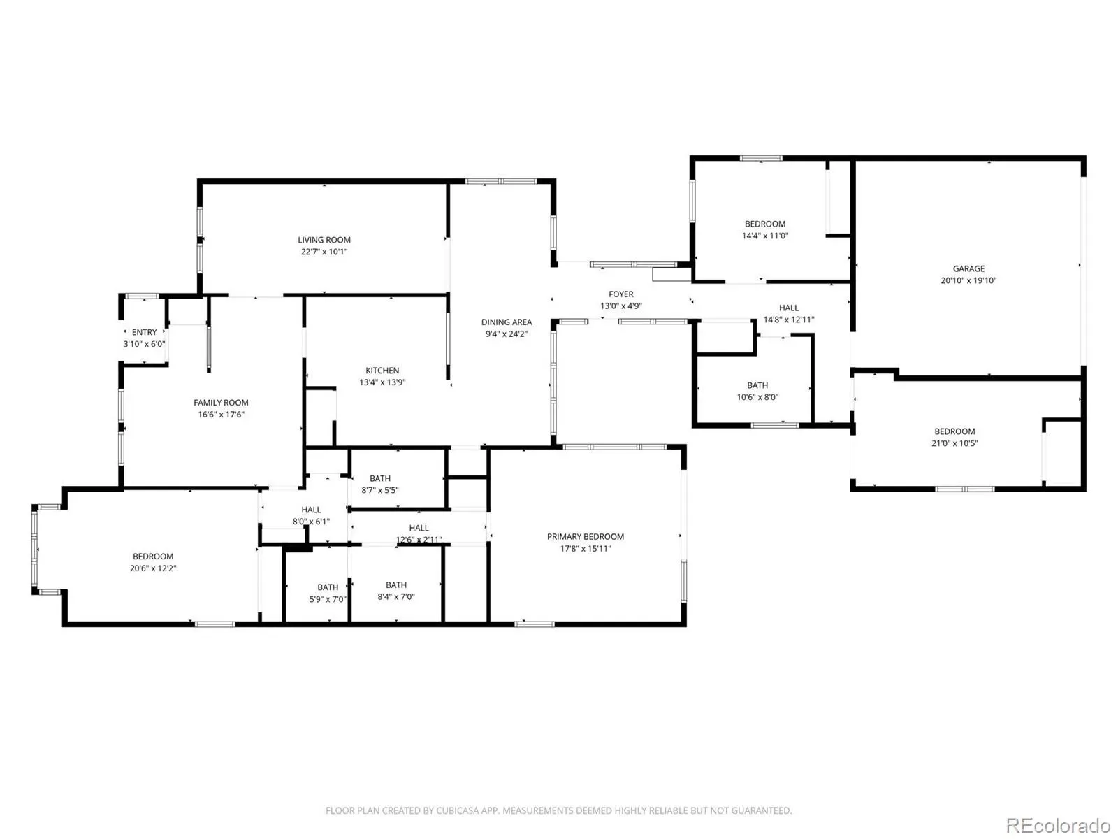
Situated in the highly sought-after Observatory Park neighborhood, this beautiful ranch style home offers the ease of true one-level living paired with exceptional indoor-outdoor spaces and an unbeatable location. The floor plan features a spacious primary suite complete with dual closets and an updated bath. A generously sized secondary bedroom is filled with charm, showcasing a west-facing bay window that overlooks the picturesque front yard with mature trees. The updated kitchen is both functional and stylish, featuring quartz countertops, stainless steel appliances, new tile backsplash, and a desirable walk-in pantry. Throughout the home, an abundance of windows and skylights flood the space with natural light, creating a bright and inviting atmosphere. Step outside to enjoy a private outdoor oasis, complete with a new redwood deck and custom pergola, new fencing, fresh landscaping with sprinkler system, and an additional patio area with a firepit—perfect for entertaining or relaxing year-round. The fully fenced front yard adds an extra layer of privacy and peace of mind. The attached two car garage is an added bonus and provides ample storage. Additional upgrades include all new HVAC, a tankless hot water heater, newer roof and gutters, new wood flooring, and all new interior doors—offering true turnkey convenience. Ideally located in one of Denver’s premier neighborhoods, this home is just moments from top-rated schools, Washington Park, Cherry Creek, and an array of dining, shopping, and entertainment options.
Property Details
Price:
$1,150,000
MLS #:
REC2177580
Status:
Active Under Contract
Beds:
4
Baths:
3
Type:
Single Family
Subtype:
Single Family Residence
Subdivision:
Observatory Park
Finished Sq Ft:
2,498
Total Sq Ft:
2,498
Lot Size:
6,370 sqft / 0.15 acres (approx)
Year Built:
1953
Schools
School District:
Denver 1
Elementary School:
University Park
Middle School:
Merrill
High School:
South
Interior
Above Grade Finished Area
2498
Appliances
Cooktop, Dishwasher, Disposal, Dryer, Microwave, Oven, Refrigerator, Self Cleaning Oven, Washer
Bathrooms
2 Full Bathrooms, 1 Three Quarter Bathroom
Cooling
Air Conditioning-Room, Central Air
Flooring
Carpet, Tile, Wood
Heating
Forced Air
Interior Features
No Stairs, Pantry, Primary Suite, Quartz Counters, Smoke Free, Walk-In Closet(s)
Laundry Features
In Unit
Levels
One
Main Level Bathrooms
3
Main Level Bedrooms
4
Exterior
Attached Garage YN
1
Construction Materials
Frame
Direction Faces
West
Exterior Features
Fire Pit, Private Yard
Fencing
Full
Garage Spaces
2
Lot Features
Level
Parking Features
Storage
Parking Spots
2
Parking Total
2
Patio And Porch Features
Covered, Deck, Front Porch, Patio
Roof
Composition
Window Features
Bay Window(s), Double Pane Windows, Skylight(s), Window Coverings
Financial
Tax Year
2024
Taxes
$5,598
Map
Contact Us
Mortgage Calculator
Property Summary
- Located in the Observatory Park subdivision, 2684 S Adams Street Denver CO is a Single Family for sale in Denver, CO, 80210. It is listed for $1,150,000 and features 4 beds, 3 baths, and has approximately 2,498 square feet of living space, and was originally constructed in 1953. The current price per square foot is $460. The average price per square foot for Single Family listings in Denver is $424. The average listing price for Single Family in Denver is $1,009,881. To schedule a showing of MLS#rec2177580 at 2684 S Adams Street in Denver, CO, contact your Smart Sale AI agent at 3039066915.
Similar Listings Nearby
Additional Details
MLS # : REC2177580
Listing Key : REC2052705731
Parcel Number : 5254-24-004
Zip Code : 80210
City : Denver
State : CO
Building if Condo :
Street : 2684 S Adams Street
Address : 2684
Address Prefix :
Address Suffix : Street
Unit if Condo :
Latitude : 39.667992
Longitude : -104.948410
Property Type : singlefamily
Property Sub Type : Single Family Residence
Stories Total if Condo :
Lot Size : 6,370 sqft / 0.15 acres (approx)
Ownership : Individual
Zoning : E-SU-DX
Condition : Updated/Remodeled
Renovation :
Pets Allowed :
Special Conditions : None
Possession : Closing/DOD
Original Price : 1150000
Close Price :
Close Date :
List Date : Mar 18, 2026
List Contract Date : 2026-03-18
Off Market Date : 2026-04-07
Purchase Contract Date : 2026-04-07
Days on Market : 30
Concessions Amount :
Concession Comment :

Copyright 2026. All rights reserved.
2684 S Adams Street
Denver, CO



















































