6795 E Arizona Avenue #C Denver CO 80224 MLS #REC2469183
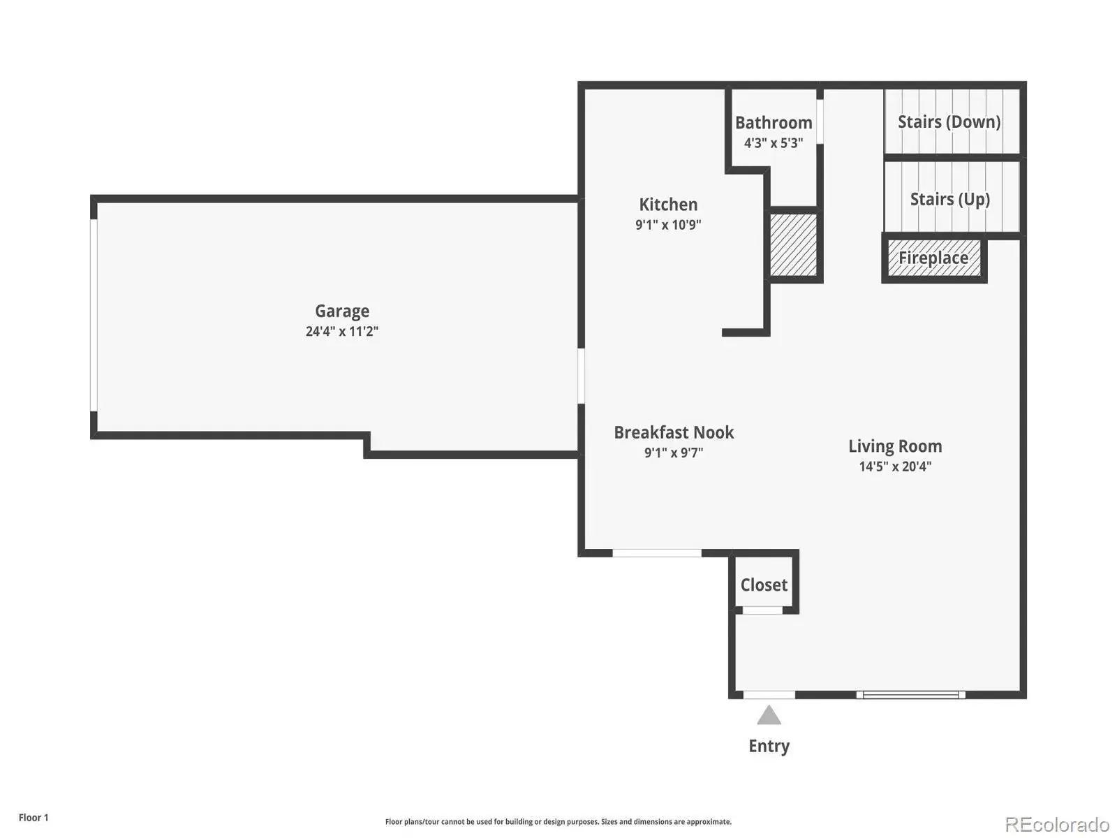
Discover contemporary Denver living in this turnkey 2-bedroom, 2.5-bath townhome-style condo featuring a private entrance, attached garage, and abundant off-street parking—truly a rare find in today’s Denver market! Embrace the outdoors with a welcoming front patio ideal for morning coffee and a private balcony off the primary suite—perfect for unwinding at sunset. Step inside to an open-concept layout with gorgeous hardwood/wood flooring throughout, ideal for entertaining or cozy nights by the gas fireplace. The spacious kitchen flows seamlessly to the dining area, offering plenty of space for gatherings. Enjoy a fully remodeled spa-inspired bathroom with dual vanity zones, bringing both style and function. The finished basement adds flexible space for a home office, fitness studio, or media lounge. Located just one block from Garland Park, enjoy premier access to walking trails, tennis courts, running paths, and cycling—pet-friendly and perfect for an active lifestyle. This prime location puts you minutes from Downtown Denver, DTC, and the Cherry Creek Shopping District, with top-rated schools, shopping, dining, and commuter routes all nearby. Home highlights: turnkey, prime location, flex space, open floor plan, private garage, luxury bath remodel, hardwood floors, cedar closet, new dishwasher, outdoor living, modern finishes, close to parks & trails, convenient to light rail—schedule your private showing today!
Property Details
Price:
$340,000
MLS #:
REC2469183
Status:
Active
Beds:
2
Baths:
3
Type:
Condo
Subtype:
Condominium
Subdivision:
Park Monaco
Finished Sq Ft:
1,620
Total Sq Ft:
1,720
Year Built:
1978
Schools
School District:
Denver 1
Elementary School:
Place Bridge Academy
Middle School:
Hill
High School:
George Washington
Interior
Above Grade Finished Area
1184
Appliances
Dryer, Refrigerator, Washer
Bathrooms
1 Full Bathroom, 1 Three Quarter Bathroom, 1 Half Bathroom
Below Grade Finished Area
436
Below Grade Unfinished Area
100
Cooling
Central Air
Fireplaces Total
1
Flooring
Carpet, Laminate, Vinyl, Wood
Heating
Forced Air, Natural Gas
Interior Features
Ceiling Fan(s), High Ceilings, Open Floorplan, Radon Mitigation System, Walk-In Closet(s)
Laundry Features
In Unit
Levels
Two
Main Level Bathrooms
1
Exterior
Association Amenities
Clubhouse, Parking, Pool
Attached Garage YN
1
Common Walls
2+ Common Walls
Construction Materials
Vinyl Siding
Garage Spaces
1
Parking Spots
1
Parking Total
1
Patio And Porch Features
Deck, Front Porch
Roof
Composition
Financial
HOA Fee
$550
HOA Fee Frequency
Monthly
HOA Includes
Insurance, Irrigation, Maintenance Grounds, Maintenance Structure, Recycling, Sewer, Snow Removal, Trash, Water
HOA Name
Five Keys
HOA Phone
720-961-5150
Tax Year
2024
Taxes
$1,712
Map
Contact Us
Mortgage Calculator
Property Summary
- Located in the Park Monaco subdivision, 6795 E Arizona Avenue #C Denver CO is a Condo for sale in Denver, CO, 80224. It is listed for $340,000 and features 2 beds, 3 baths, and has approximately 1,620 square feet of living space, and was originally constructed in 1978. The current price per square foot is $210. The average price per square foot for Condo listings in Denver is $391. The average listing price for Condo in Denver is $472,685. To schedule a showing of MLS#rec2469183 at 6795 E Arizona Avenue #C in Denver, CO, contact your Smart Sale AI agent at 3039066915.
Similar Listings Nearby
Additional Details
MLS ID : REC2469183
Listing Key : REC2051946750
Parcel Number : 6201-20-009
Zip Code : 80224
City : Denver
State : CO
Building if Condo :
Full Street: 6795 E Arizona Avenue #C
Address : 6795
Address Prefix :
Address Suffix : Avenue
Street : Arizona
Street Prefix : E
Street Suffix :
Unit if Condo : C
Latitude : 39.695766
Longitude : -104.909851
Property Type : condo
Property Sub Type : Condominium
Stories Total if Condo :
Lot Size :
Ownership : Individual
Zoning : R-2-A
Condition :
Renovation :
Pets Allowed : Cats OK,Dogs OK
Special Conditions : None
Possession : Closing/DOD
Original Price : 350000
Close Price :
Close Date :
List Date : Feb 13, 2026
List Contract Date : 2026-02-13
Off Market Date :
Purchase Contract Date :
Days on Market : 101
Concessions Amount :
Concession Comment :
Renovation :
Company : Madison & Company Properties

Copyright 2026. All rights reserved.
6795 E Arizona Avenue #C
Denver, CO
































