2329 N Emerson Street Denver CO 80205 MLS #REC5191117
2329 N Emerson Street
Denver, CO, 80205
$1,750,000
Lovingly restored with respect for its 1890 history + elevated for modern luxury, this is the rare Denver home that preserves its original character & classic architectural details while living like a modern, fully rebuilt residence with high-end functionality + a level of craftsmanship you feel in every room. Set on a quiet, historic block in San Rafael/Five Points, you’re minutes from RiNo, City Park, Uptown, & Downtown, along with the restaurants, shops, venues, & cultural destinations that define Denver. Outside, you get multiple “exhale” zones. The east-facing front porch is ideal for morning coffee & neighborhood connection. Out back, the brick courtyard offers a private retreat framed by Japanese aspens & evergreens. Off the primary suite, an outdoor great room (w/ gas + water hookups) creates a flexible space for dining, entertaining, or quiet evenings. Above, a rooftop deck offers incredible mountain + city skyline views. Inside, historic charm is matched with modern performance: modern flow, exceptional daylighting, a true chef’s kitchen, beautiful & functional built-ins throughout, designer fixtures & custom, historically accurate hardware + design features down to the smallest detail – everything selected with exceptional intention + attention to detail. The main floor offers an open, expansive layout designed for everyday living & hosting – connected, comfortable, & intentional. Upstairs, two spacious bedrooms complement a private primary retreat that feels like a luxury boutique hotel suite, calm and private, with direct access to the outdoor great room & exceptional views of the mountains and downtown. Downstairs, the lower level adds exceptional versatility and functionality with 10′ ceilings, heated floors throughout, guest bedroom w/ full bath, a large den/lounge that connects to a bright 5th bedroom. Come see how Historic soul, modern luxury, and outdoor living truly elevates daily life in one of Denver’s most connected & iconic neighborhoods.
Property Details
Price:
$1,750,000
MLS #:
REC5191117
Status:
Active Under Contract
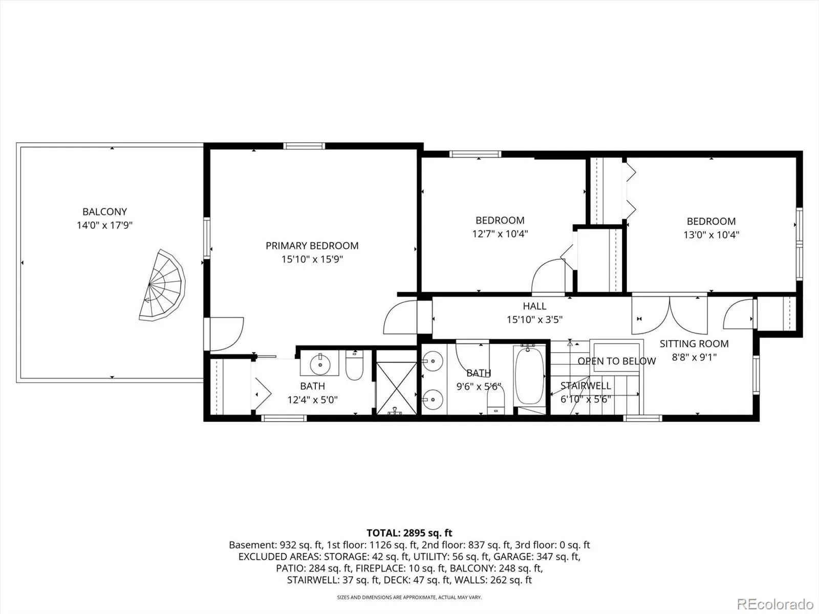
Beds:
5
Baths:
5
Type:
Single Family
Subtype:
Single Family Residence
Subdivision:
San Rafael
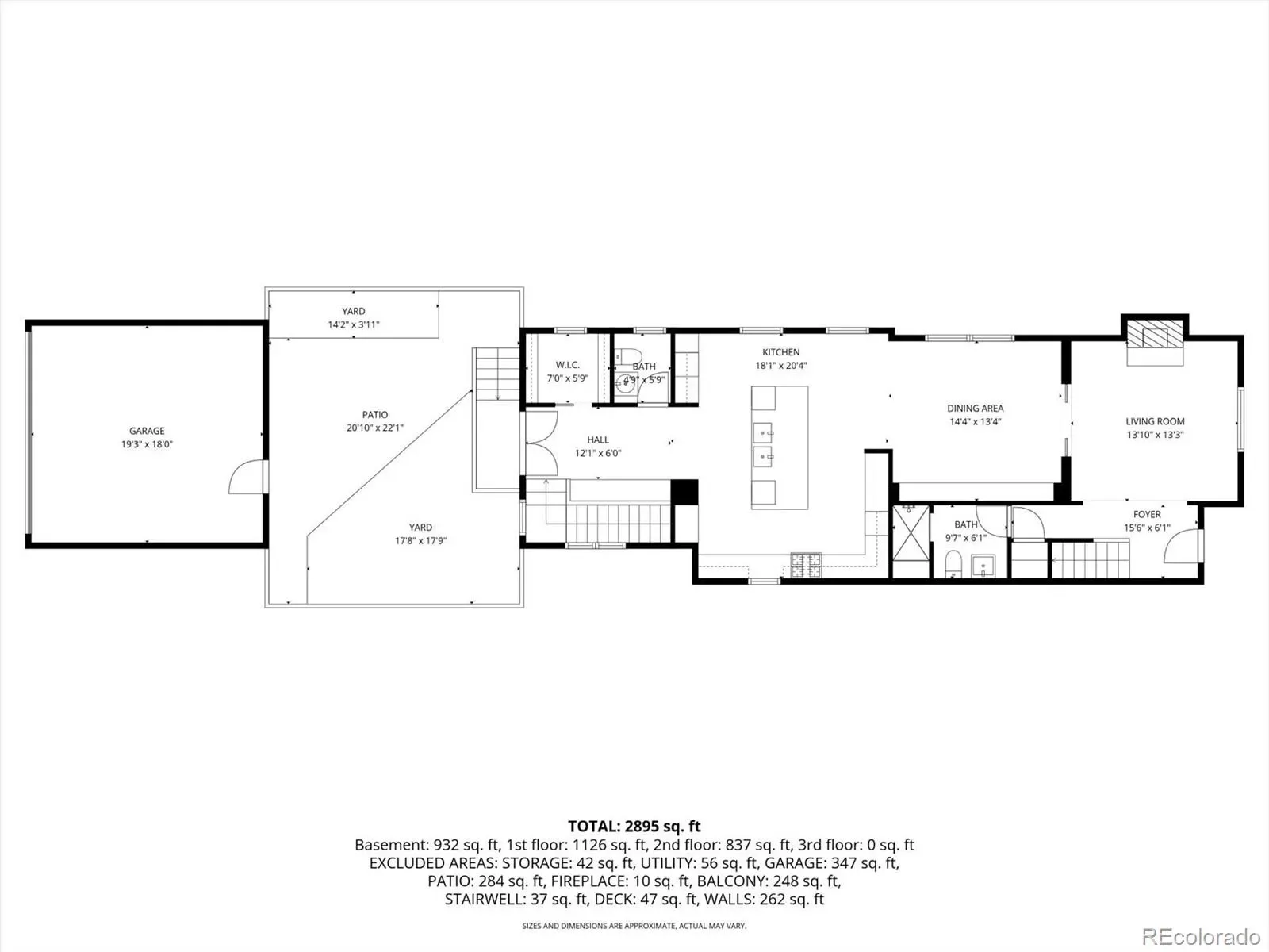
Finished Sq Ft:
3,640
Total Sq Ft:
3,640
Lot Size:
3,640 sqft / 0.08 acres (approx)
Year Built:
1890
Schools
School District:
Denver 1
Elementary School:
Whittier E-8
Middle School:
Whittier E-8
High School:
Manual
Interior
Above Grade Finished Area
2339
Appliances
Bar Fridge, Convection Oven, Cooktop, Dishwasher, Disposal, Double Oven, Dryer, Gas Water Heater, Humidifier, Microwave, Range, Range Hood, Refrigerator, Self Cleaning Oven, Sump Pump, Washer, Water Purifier
Bathrooms
4 Full Bathrooms, 1 Half Bathroom
Below Grade Finished Area
1301
Cooling
Central Air
Fireplaces Total
1
Flooring
Stone, Wood
Heating
Electric, Forced Air, Heat Pump, Natural Gas, Radiant Floor
Interior Features
Audio/Video Controls, Ceiling Fan(s), Eat-in Kitchen, Entrance Foyer, High Ceilings, High Speed Internet, Kitchen Island, Marble Counters, Open Floorplan, Radon Mitigation System, Smart Light(s), Smoke Free, Sound System, Walk-In Closet(s), Wet Bar, Wired for Data
Laundry Features
Sink, In Unit
Levels
Two
Main Level Bathrooms
2
Exterior
Architectural Style
Denver Square
Construction Materials
Brick, Concrete, Frame
Exterior Features
Balcony, Dog Run, Gas Valve, Lighting, Private Yard, Rain Gutters, Smart Irrigation
Garage Spaces
2
Lot Features
Irrigated, Landscaped, Level, Sprinklers In Front, Sprinklers In Rear
Parking Spots
2
Parking Total
2
Patio And Porch Features
Covered, Deck, Patio, Rooftop
Roof
Membrane
Security Features
Carbon Monoxide Detector(s), Security System, Smart Cameras, Smart Locks, Smoke Detector(s), Video Doorbell, Water Leak/Flood Alarm
View
City, Mountain(s)
Window Features
Double Pane Windows, Window Coverings
Financial
Tax Year
2024
Taxes
$6,369
Map
Contact Us
Mortgage Calculator
Property Summary
- Located in the San Rafael subdivision, 2329 N Emerson Street Denver CO is a Single Family for sale in Denver, CO, 80205. It is listed for $1,750,000 and features 5 beds, 5 baths, and has approximately 3,640 square feet of living space, and was originally constructed in 1890. The current price per square foot is $481. The average price per square foot for Single Family listings in Denver is $424. The average listing price for Single Family in Denver is $1,009,300. To schedule a showing of MLS#rec5191117 at 2329 N Emerson Street in Denver, CO, contact your Smart Sale AI agent at 3039066915.
Similar Listings Nearby
Additional Details
MLS # : REC5191117
Listing Key : REC2052818268
Parcel Number : 2352-23-015
Zip Code : 80205
City : Denver
State : CO
Building if Condo :
Street : 2329 N Emerson Street
Address : 2329
Address Prefix :
Address Suffix : Street
Unit if Condo :
Latitude : 39.751289
Longitude : -104.976044
Property Type : singlefamily
Property Sub Type : Single Family Residence
Stories Total if Condo :
Lot Size : 3,640 sqft / 0.08 acres (approx)
Ownership : Individual
Zoning : U-SU-A1
Condition : Updated/Remodeled
Renovation :
Pets Allowed :
Special Conditions : None
Possession : Close Plus 3 Days,Close Plus 5 to 30 Days,Closing/DOD
Original Price : 1750000
Close Price :
Close Date :
List Date : Mar 26, 2026
List Contract Date : 2026-03-26
Off Market Date : 2026-03-27
Purchase Contract Date : 2026-03-27
Days on Market : 22
Concessions Amount :
Concession Comment :

Copyright 2026. All rights reserved.
2329 N Emerson Street
Denver, CO


















































