39 S Grant Street Denver CO 80209 MLS #REC8253871
Classic Historic 1895 residence- quiet single-family duplex, offering privacy, a generous yard, and timeless character rarely found this close to Wash Park West and all the entertainment nearby Broadway has to offer. Nestled in the heart of Denver. This charming home sits along tree-lined Grant Street, offering timeless architecture and a true neighborhood feel. Just blocks from vibrant South Broadway and its sought-after shops, restaurants, and cafés, you’re moments from Baker, Wash Park, Cherry Creek North, Downtown Denver, and some of the city’s best dining, shopping, and entertainment, yet surrounded by peaceful, residential serenity. Inside, this 3bed, 2bath home beautifully blends 1895 craftsmanship with modern comfort. Sparkling original hardwood floors, transom windows, solid wood doors, preserved trim work, and classic proportions speak to the home’s historic character, while updated wiring and plumbing support today’s lifestyle. The sun filled kitchen features granite countertops and opens to a private, fenced backyard retreat, ideal for morning coffee, evening relaxation, entertaining guests, or providing a secure outdoor space for pets. The oversized primary bedroom offers a rare and comfortable retreat for a historic home, while a main-level bathroom with a walk-in shower adds everyday convenience and doubles as a functional mudroom perfect for cleaning up after pets or outdoor adventures. A basement provides valuable additional storage, a highly sought-after feature in historic properties. Rare for the area, 2 off-street parking spaces further enhances convenience in this highly walkable neighborhood. With a Walk Score of 93, enjoy easy access to boutiques, cafés, live music venues, lush parks, light rail, and quick downtown commuting by bike or car. If you’re drawn to historic charm, urban convenience, or a strong sense of community this home offers a rare opportunity to own a beautifully preserved piece of Denver’s architectural story.
Property Details
Price:
$665,000
MLS #:
REC8253871
Status:
Active
Beds:
3
Baths:
2
Type:
Single Family
Subtype:
Single Family Residence
Subdivision:
Speer
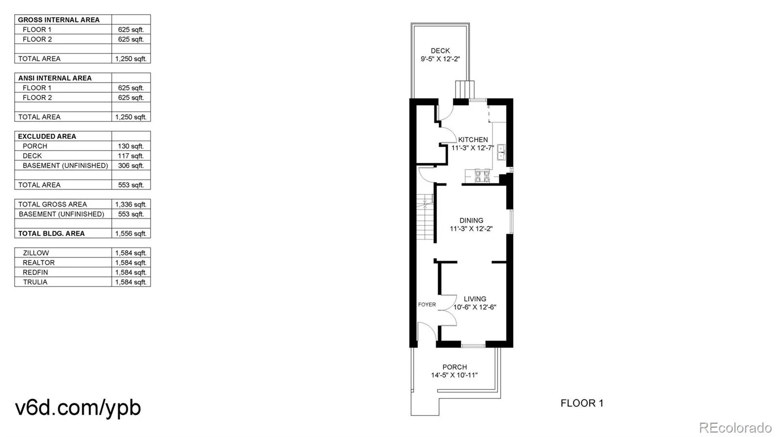
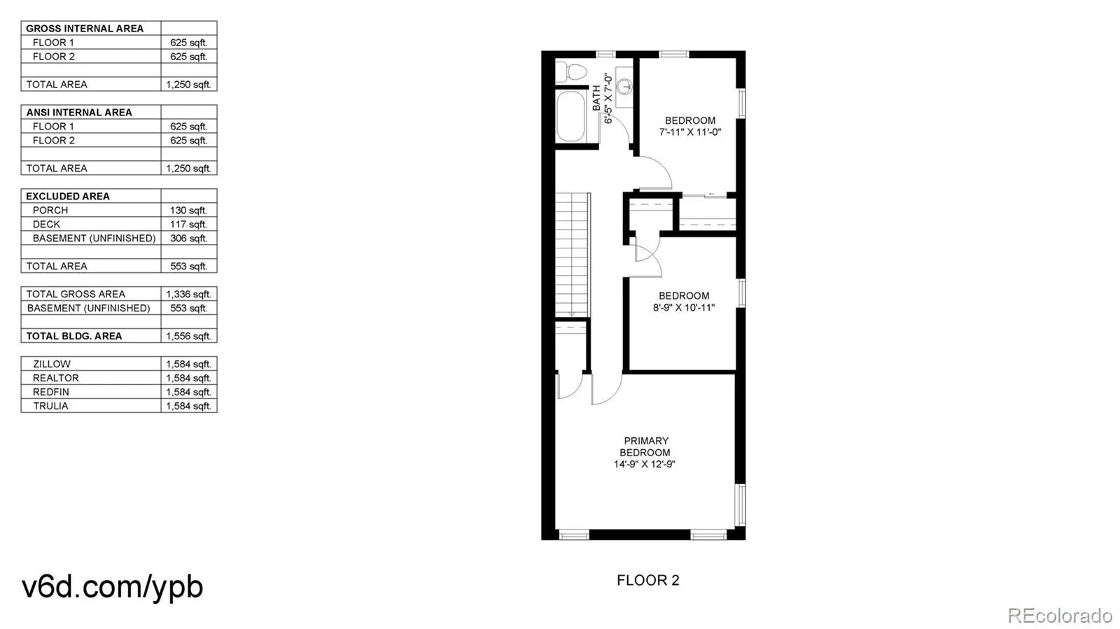
Finished Sq Ft:
1,250
Total Sq Ft:
1,556
Lot Size:
2,352 sqft / 0.05 acres (approx)
Year Built:
1895
Schools
School District:
Denver 1
Elementary School:
Dora Moore
Middle School:
Grant
High School:
South
Interior
Above Grade Finished Area
1250
Appliances
Dishwasher, Disposal, Dryer, Microwave, Oven, Refrigerator, Washer
Bathrooms
1 Full Bathroom, 1 Three Quarter Bathroom
Below Grade Unfinished Area
306
Cooling
Other
Flooring
Tile, Wood
Heating
Forced Air
Interior Features
Ceiling Fan(s), Entrance Foyer, Granite Counters, High Ceilings, Kitchen Island, Primary Suite, Smoke Free
Levels
Two
Main Level Bathrooms
1
Exterior
Common Walls
1 Common Wall
Construction Materials
Brick
Exterior Features
Private Yard, Rain Gutters
Fencing
Full
Lot Features
Historical District, Landscaped
Parking Spots
2
Parking Total
2
Patio And Porch Features
Covered, Deck, Front Porch
Roof
Composition
Financial
Tax Year
2024
Taxes
$3,250
Map
Contact Us
Mortgage Calculator
Property Summary
- Located in the Speer subdivision, 39 S Grant Street Denver CO is a Single Family for sale in Denver, CO, 80209. It is listed for $665,000 and features 3 beds, 2 baths, and has approximately 1,250 square feet of living space, and was originally constructed in 1895. The current price per square foot is $532. The average price per square foot for Single Family listings in Denver is $424. The average listing price for Single Family in Denver is $1,011,697. To schedule a showing of MLS#rec8253871 at 39 S Grant Street in Denver, CO, contact your Smart Sale AI agent at 3039066915.
Similar Listings Nearby
Additional Details
MLS # : REC8253871
Listing Key : REC2051829533
Parcel Number : 5104-11-057
Zip Code : 80209
City : Denver
State : CO
Building if Condo :
Street : 39 S Grant Street
Address : 39
Address Prefix :
Address Suffix : Street
Unit if Condo :
Latitude : 39.715847
Longitude : -104.984100
Property Type : singlefamily
Property Sub Type : Single Family Residence
Stories Total if Condo :
Lot Size : 2,352 sqft / 0.05 acres (approx)
Ownership : Individual
Zoning : U-TU-B2
Condition : Updated/Remodeled
Renovation :
Pets Allowed :
Special Conditions : None
Possession : Closing/DOD
Original Price : 685000
Close Price :
Close Date :
List Date : Jan 9, 2026
List Contract Date : 2026-01-09
Off Market Date :
Purchase Contract Date :
Days on Market : 99
Concessions Amount : 0
Concession Comment :

Copyright 2026. All rights reserved.
39 S Grant Street
Denver, CO






































