4742 Eliot Street Denver CO 80211 MLS #REC7066518
4742 Eliot Street
Denver, CO, 80211
$1,887,000
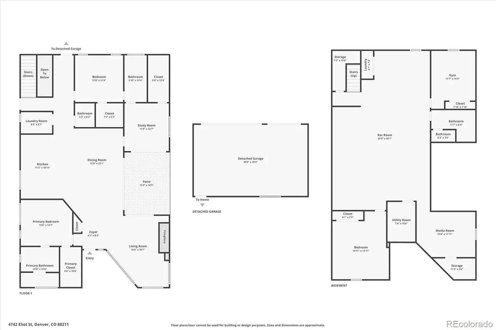
*$15,000 Lender Concession Offered For Rate Buy Down and/or Closing! Stunning Mid-Century Modern masterpiece in the heart of Sunnyside, offering ranch-style living at its finest. Filled with natural light from expansive windows, this home showcases an open floor plan designed for effortless everyday living and elegant entertaining. Accordion-style doors create a seamless transition for indoor-outdoor living, leading to a private terrace perfect for relaxing or hosting guests. Designer finishes abound, featuring high-end Porcelanosa tile and thoughtfully curated details throughout. At the heart of the home, the chef’s kitchen impresses with quartz countertops, a waterfall island, Dacor French Door refrigerator, JennAir range top and oven/microwave combo, custom tile backsplash, and upgraded lighting selections—ideal for both cooking and entertaining. The main level includes a luxurious primary suite with walk-in closet and spa-inspired bath complete with standalone tub, dual vanities, and walk-in shower. Two additional bedrooms share a Jack-and-Jill bath, while an exquisite powder room showcases designer wallpaper. Custom curtains in select rooms, Hunter Douglas Roman shades in all bedrooms, and remote-control shades in the primary suite and living room add both function and sophistication, complemented by a whole-house Honeywell steam humidifier. The fully finished basement extends the living space with an expansive recreation room, wet bar with refrigerator and dishwasher, three additional bedrooms, full bath, second laundry hookup, and plush wool carpeting—just another of the home’s many upgrades. Outside, enjoy a professionally designed and landscaped backyard with a custom garden box, perfect for outdoor dining and relaxation. Completing this exceptional property is a detached three-car garage. Ideally located just steps from Rocky Mountain Lake Park and Berkeley Lake Park, and near Tennyson Street, the Highlands, and downtown Denver.
Property Details
Price:
$1,887,000
MLS #:
REC7066518
Status:
Active
Beds:
6
Baths:
4
Type:
Single Family
Subtype:
Single Family Residence
Subdivision:
Sunnyside
Finished Sq Ft:
4,280
Total Sq Ft:
4,280
Lot Size:
6,700 sqft / 0.15 acres (approx)
Year Built:
2021
Schools
School District:
Denver 1
Elementary School:
Trevista at Horace Mann
Middle School:
Strive Sunnyside
High School:
North
Interior
Above Grade Finished Area
2140
Appliances
Cooktop, Dishwasher, Disposal, Dryer, Humidifier, Microwave, Oven, Range Hood, Refrigerator, Sump Pump, Tankless Water Heater, Washer
Bathrooms
3 Full Bathrooms, 1 Half Bathroom
Below Grade Finished Area
2140
Cooling
Central Air
Fireplaces Total
1
Flooring
Carpet, Tile, Wood
Heating
Forced Air, Natural Gas
Interior Features
Ceiling Fan(s), Eat-in Kitchen, Five Piece Bath, High Ceilings, In-Law Floorplan, Jack & Jill Bathroom, Kitchen Island, Open Floorplan, Primary Suite, Quartz Counters, Radon Mitigation System, Smart Thermostat, Smoke Free, Walk-In Closet(s), Wet Bar
Laundry Features
Sink
Levels
One
Main Level Bathrooms
3
Main Level Bedrooms
3
Exterior
Architectural Style
Mid-Century Modern
Common Walls
No Common Walls
Construction Materials
Frame, Stucco
Direction Faces
West
Exterior Features
Garden, Gas Valve
Fencing
Full
Garage Spaces
3
Parking Spots
3
Parking Total
3
Patio And Porch Features
Covered, Front Porch, Patio
Roof
Composition
Security Features
Carbon Monoxide Detector(s), Radon Detector, Smoke Detector(s)
View
City, Mountain(s)
Window Features
Window Coverings, Window Treatments
Financial
Tax Year
2024
Taxes
$9,883
Map
Contact Us
Mortgage Calculator
Property Summary
- Located in the Sunnyside subdivision, 4742 Eliot Street Denver CO is a Single Family for sale in Denver, CO, 80211. It is listed for $1,887,000 and features 6 beds, 4 baths, and has approximately 4,280 square feet of living space, and was originally constructed in 2021. The current price per square foot is $441. The average price per square foot for Single Family listings in Denver is $424. The average listing price for Single Family in Denver is $1,009,690. To schedule a showing of MLS#rec7066518 at 4742 Eliot Street in Denver, CO, contact your Smart Sale AI agent at 3039066915.
Similar Listings Nearby
Additional Details
MLS # : REC7066518
Listing Key : REC2051397253
Parcel Number : 2201-07-015
Zip Code : 80211
City : Denver
State : CO
Building if Condo :
Street : 4742 Eliot Street
Address : 4742
Address Prefix :
Address Suffix : Street
Unit if Condo :
Latitude : 39.782928
Longitude : -105.023666
Property Type : singlefamily
Property Sub Type : Single Family Residence
Stories Total if Condo :
Lot Size : 6,700 sqft / 0.15 acres (approx)
Ownership : Individual
Zoning :
Condition :
Renovation :
Pets Allowed :
Special Conditions : None
Possession :
Original Price : 1955000
Close Price :
Close Date :
List Date : Jan 15, 2026
List Contract Date : 2026-01-15
Off Market Date :
Purchase Contract Date :
Days on Market : 92
Concessions Amount :
Concession Comment :

Copyright 2026. All rights reserved.
4742 Eliot Street
Denver, CO


















































