4665 Gaylord Street Denver CO 80216 MLS #REC3804394
There are multiple listings for this address:
10-Bedroom Duplex • Two 5-Bed Residences • Fully Leased • Income Producing • E-TU-B Zoning • Central Denver
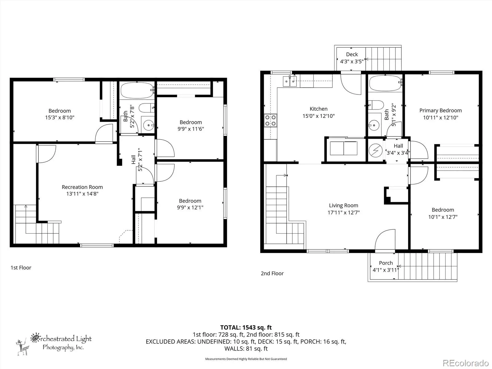
Positioned near major employment centers, event venues, and downtown access, this centrally located duplex offers two separate 5-bedroom residences (10 bedrooms total) designed for shared living configurations. The layout supports multiple private bedrooms paired with common living, kitchen, and dining areas suited for everyday functionality.
The property offers approximately 3,134 sq ft of combined living space across both residences. The high-bedroom configuration provides scale rarely found in two-unit residential properties.
Both residences are currently leased, providing in-place income of $5,095 per month ($61,140 annually). One residence is leased at $3,000/month with documented payment history. The second lease began February 6 at $2,095/month.
Zoned E-TU-B (Urban Edge – Two Unit), the property allows residential flexibility subject to buyer verification of permitted uses and approvals. The 10-bedroom layout supports multiple residential rental strategies depending on buyer objectives and local regulations.
The surrounding area provides convenient access to downtown Denver, major commuter routes, employment districts, dining areas, and event venues that contribute to ongoing housing demand in the central Denver market.
Seller-provided figures indicate an estimated 9.06% gross cap rate based on current rents and a $675,000 purchase price. A potential stabilization scenario referencing Housing Authority payment standards indicates projected rents up to $8,630 per month ($103,560 annually). All income figures, projections, zoning allowances, and operating assumptions are subject to buyer verification.
NEARBY AMENITIES
• ~0.6 mi — National Western Complex
• ~1.2 mi — RiNo Art District
• ~1.5 mi — Mission Ballroom
• ~1.8 mi — Downtown Denver
• ~2.0 mi — Coors Field
• ~2.2 mi — Union Station
Positioned near major employment centers, event venues, and downtown access, this centrally located duplex offers two separate 5-bedroom residences (10 bedrooms total) designed for shared living configurations. The layout supports multiple private bedrooms paired with common living, kitchen, and dining areas suited for everyday functionality.
The property offers approximately 3,134 sq ft of combined living space across both residences. The high-bedroom configuration provides scale rarely found in two-unit residential properties.
Both residences are currently leased, providing in-place income of $5,095 per month ($61,140 annually). One residence is leased at $3,000/month with documented payment history. The second lease began February 6 at $2,095/month.
Zoned E-TU-B (Urban Edge – Two Unit), the property allows residential flexibility subject to buyer verification of permitted uses and approvals. The 10-bedroom layout supports multiple residential rental strategies depending on buyer objectives and local regulations.
The surrounding area provides convenient access to downtown Denver, major commuter routes, employment districts, dining areas, and event venues that contribute to ongoing housing demand in the central Denver market.
Seller-provided figures indicate an estimated 9.06% gross cap rate based on current rents and a $675,000 purchase price. A potential stabilization scenario referencing Housing Authority payment standards indicates projected rents up to $8,630 per month ($103,560 annually). All income figures, projections, zoning allowances, and operating assumptions are subject to buyer verification.
NEARBY AMENITIES
• ~0.6 mi — National Western Complex
• ~1.2 mi — RiNo Art District
• ~1.5 mi — Mission Ballroom
• ~1.8 mi — Downtown Denver
• ~2.0 mi — Coors Field
• ~2.2 mi — Union Station
Property Details
Price:
$675,000
MLS #:
REC3804394
Status:
Active
Beds:
5
Baths:
2
Type:
Single Family
Subtype:
Single Family Residence
Subdivision:
Swansea
Finished Sq Ft:
3,134
Total Sq Ft:
3,134
Lot Size:
6,003 sqft / 0.14 acres (approx)
Year Built:
2000
Schools
School District:
Denver 1
Elementary School:
Swansea
Middle School:
Bruce Randolph
High School:
Manual
Interior
Above Grade Finished Area
1567
Bathrooms
2 Full Bathrooms
Below Grade Finished Area
1567
Cooling
None
Flooring
Vinyl
Heating
Forced Air
Laundry Features
In Unit
Levels
Two
Main Level Bathrooms
1
Main Level Bedrooms
2
Exterior
Construction Materials
Frame
Lot Features
Level
Parking Spots
4
Parking Total
4
Roof
Composition
Financial
Tax Year
2024
Taxes
$1,975
Map
Contact Us
Mortgage Calculator
Property Summary
- Located in the Swansea subdivision, 4665 Gaylord Street Denver CO is a Single Family for sale in Denver, CO, 80216. It is listed for $675,000 and features 5 beds, 2 baths, and has approximately 3,134 square feet of living space, and was originally constructed in 2000. The current price per square foot is $215. The average price per square foot for Single Family listings in Denver is $400. The average listing price for Single Family in Denver is $993,881. To schedule a showing of MLS#rec3804394 at 4665 Gaylord Street in Denver, CO, contact your Smart Sale AI agent at 3039066915.
Similar Listings Nearby
Additional Details
MLS ID : REC3804394
Listing Key : REC2050984179
Parcel Number : 2231-16-026
Zip Code : 80216
City : Denver
State : CO
Building if Condo :
Full Street: 4665 Gaylord Street
Address : 4665
Address Prefix :
Address Suffix : Street
Street : Gaylord
Street Prefix :
Street Suffix :
Unit if Condo :
Latitude : 39.781261
Longitude : -104.961578
Property Type : singlefamily
Property Sub Type : Single Family Residence
Stories Total if Condo :
Lot Size : 6,003 sqft / 0.14 acres (approx)
Ownership : Individual
Zoning : E-TU-B
Condition :
Renovation :
Pets Allowed :
Special Conditions : None
Possession : Closing/DOD
Original Price : 675000
Close Price :
Close Date :
List Date : Jan 9, 2026
List Contract Date : 2026-01-09
Off Market Date :
Purchase Contract Date :
Days on Market : 136
Concessions Amount :
Concession Comment :
Renovation :
Company : Real Broker, LLC DBA Real

Copyright 2026. All rights reserved.
4665 Gaylord Street
Denver, CO
10-Bedroom Duplex • Two 5-Bed Residences • Fully Leased • Income Producing • E-TU-B Zoning • Central Denver
Positioned near major employment centers, event venues, and downtown access, this centrally located duplex offers two separate 5-bedroom residences (10 bedrooms total) designed for shared living configurations. The layout supports multiple private bedrooms paired with common living, kitchen, and dining areas suited for everyday functionality.
The property offers approximately 3,134 sq ft of combined living space across both residences. The high-bedroom configuration provides scale rarely found in two-unit residential properties.
Both residences are currently leased, providing in-place income of $5,095 per month ($61,140 annually). One residence is leased at $3,000/month with documented payment history. The second lease began February 6 at $2,095/month.
Zoned E-TU-B (Urban Edge – Two Unit), the property allows residential flexibility subject to buyer verification of permitted uses and approvals. The 10-bedroom layout supports multiple residential rental strategies depending on buyer objectives and local regulations.
The surrounding area provides convenient access to downtown Denver, major commuter routes, employment districts, dining areas, and event venues that contribute to ongoing housing demand in the central Denver market.
Seller-provided figures indicate an estimated 9.06% gross cap rate based on current rents and a $675,000 purchase price. A potential stabilization scenario referencing Housing Authority payment standards indicates projected rents up to $8,630 per month ($103,560 annually). All income figures, projections, zoning allowances, and operating assumptions are subject to buyer verification.
NEARBY AMENITIES
• ~0.6 mi — National Western Complex
• ~1.2 mi — RiNo Art District
• ~1.5 mi — Mission Ballroom
• ~1.8 mi — Downtown Denver
• ~2.0 mi — Coors Field
• ~2.2 mi — Union Station
Positioned near major employment centers, event venues, and downtown access, this centrally located duplex offers two separate 5-bedroom residences (10 bedrooms total) designed for shared living configurations. The layout supports multiple private bedrooms paired with common living, kitchen, and dining areas suited for everyday functionality.
The property offers approximately 3,134 sq ft of combined living space across both residences. The high-bedroom configuration provides scale rarely found in two-unit residential properties.
Both residences are currently leased, providing in-place income of $5,095 per month ($61,140 annually). One residence is leased at $3,000/month with documented payment history. The second lease began February 6 at $2,095/month.
Zoned E-TU-B (Urban Edge – Two Unit), the property allows residential flexibility subject to buyer verification of permitted uses and approvals. The 10-bedroom layout supports multiple residential rental strategies depending on buyer objectives and local regulations.
The surrounding area provides convenient access to downtown Denver, major commuter routes, employment districts, dining areas, and event venues that contribute to ongoing housing demand in the central Denver market.
Seller-provided figures indicate an estimated 9.06% gross cap rate based on current rents and a $675,000 purchase price. A potential stabilization scenario referencing Housing Authority payment standards indicates projected rents up to $8,630 per month ($103,560 annually). All income figures, projections, zoning allowances, and operating assumptions are subject to buyer verification.
NEARBY AMENITIES
• ~0.6 mi — National Western Complex
• ~1.2 mi — RiNo Art District
• ~1.5 mi — Mission Ballroom
• ~1.8 mi — Downtown Denver
• ~2.0 mi — Coors Field
• ~2.2 mi — Union Station
Property Details
Price:
$675,000
MLS #:
REC7155437
Status:
Active
Beds:
5
Baths:
2
Type:
Multi Family
Subtype:
Single Family Residence
Subdivision:
Swansea
Finished Sq Ft:
3,134
Total Sq Ft:
3,134
Lot Size:
6,003 sqft / 0.14 acres (approx)
Year Built:
2000
Schools
School District:
Denver 1
Elementary School:
Swansea
Middle School:
Bruce Randolph
High School:
Manual
Interior
Above Grade Finished Area
1567
Bathrooms
2 Full Bathrooms
Below Grade Finished Area
1567
Cooling
None
Flooring
Vinyl
Heating
Forced Air
Laundry Features
In Unit
Levels
Two
Main Level Bathrooms
1
Main Level Bedrooms
2
Exterior
Construction Materials
Frame
Lot Features
Level
Parking Spots
4
Parking Total
4
Roof
Composition
Financial
Tax Year
2024
Taxes
$1,975
Map
Contact Us
Mortgage Calculator
Property Summary
- Located in the Swansea subdivision, 4665 Gaylord Street Denver CO is a Multi Family for sale in Denver, CO, 80216. It is listed for $675,000 To schedule a showing of MLS#rec7155437 at 4665 Gaylord Street in Denver, CO, contact your Smart Sale AI agent at 3039066915.
Similar Listings Nearby
Additional Details
MLS ID : REC7155437
Listing Key : REC2050977450
Parcel Number : 2231-16-026
Zip Code : 80216
City : Denver
State : CO
Building if Condo :
Full Street: 4665 Gaylord Street
Address : 4665
Address Prefix :
Address Suffix : Street
Street : Gaylord
Street Prefix :
Street Suffix :
Unit if Condo :
Latitude : 39.781254
Longitude : -104.961601
Property Type : multifamily
Property Sub Type : Single Family Residence
Stories Total if Condo :
Lot Size : 6,003 sqft / 0.14 acres (approx)
Ownership : Individual
Zoning : E-TU-B
Condition :
Renovation :
Pets Allowed :
Special Conditions : None
Possession : Closing/DOD
Original Price : 675000
Close Price :
Close Date :
List Date : Dec 3, 2025
List Contract Date : 2026-01-09
Off Market Date :
Purchase Contract Date :
Days on Market : 173
Concessions Amount :
Concession Comment :
Renovation :
Company : Real Broker, LLC DBA Real







































