4684 E Dartmouth Avenue Denver CO 80222 MLS #REC9537098
4684 E Dartmouth Avenue
Denver, CO, 80222
$1,900,000
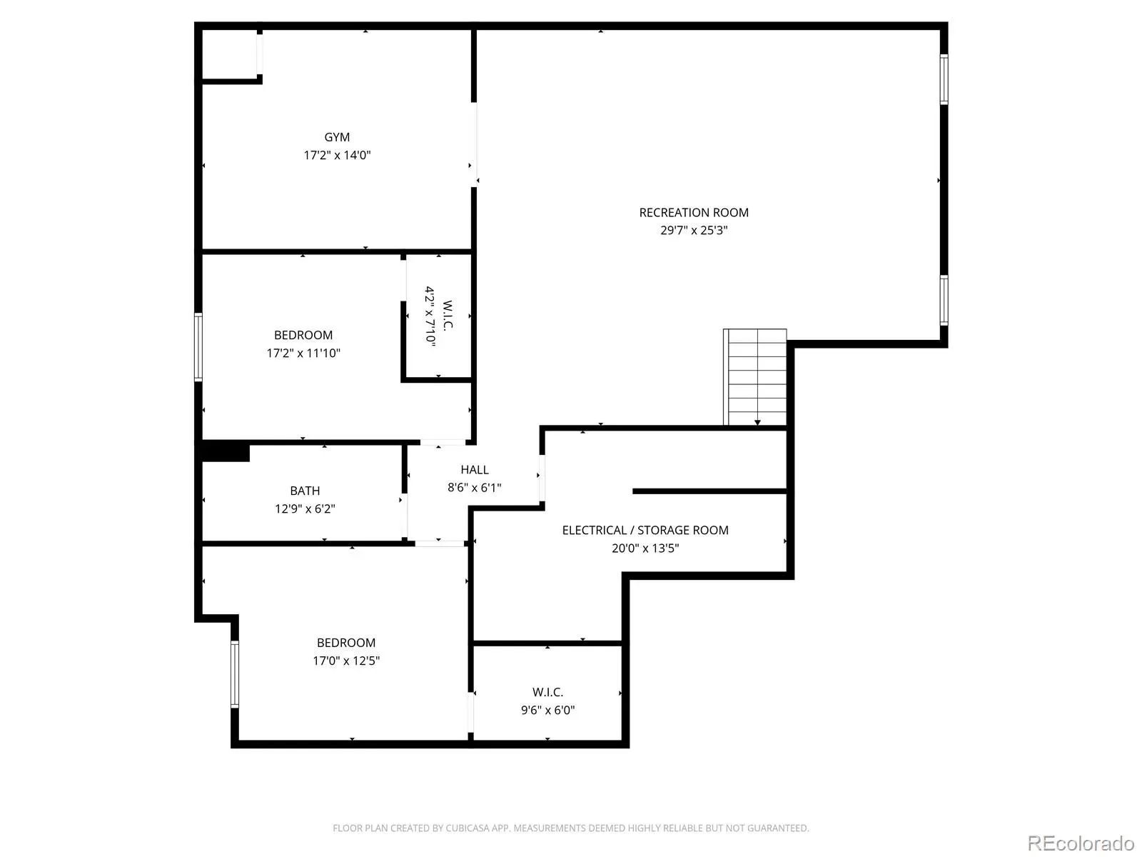
This stunning ranch home, built new in 2021, offers a harmonious blend of style and functionality. Upon entry into the foyer, you’ll be wowed by the living space with 18′ ceilings surrounded by transom windows bathing the space in natural light. The central gas fireplace wrapped in designer Porcelanosa Air Slate that extends from floor to ceiling, adds a touch of sophistication to the space. Open to the living room is a dining area and a gourmet kitchen anchored by a center island with waterfall quartz countertops. The showpiece of the kitchen is the Bertazzoni Italia gas range accented by a dimensional backsplash which extends throughout the room. A Bosch dishwasher, full size Electrolux refrigerator and freezer and in-ceiling speakers with wall controls complete the space. The spacious primary suite is a true retreat with an expansive walk-in closet and en-suite bath with a large dual sink vanity, freestanding soaking tub, glass shower and separate water closet. Also on the main level are two bedrooms separated by a generously sized bathroom, laundry room with built-in cabinets plus a powder bath with floor to ceiling designer tile. The basement is an entertainers delight with plenty of space for game tables and a seating area, is accentuated by 9’ ceilings and wired for data and a sound system. Adjacent you’ll find a gym with commercial rubber flooring and an in-wall water bottle filler. Completing the downstairs space are two bedrooms with walk-in closets, a spacious bathroom in between and large storage closet. Step outside to your beautifully landscaped backyard, a serene retreat featuring perennials, a rare paperbark maple tree and more. With a covered patio that has built-in speakers, it’s the perfect setting for relaxation and outdoor entertaining. Situated just a block and a half from Eisenhower Park, you’ll enjoy a rec center with a pool and tennis/pickleball courts all within easy reach. Don’t miss the opportunity to call this exquisite home your own.
Property Details
Price:
$1,900,000
MLS #:
REC9537098
Status:
Active Under Contract
Beds:
5
Baths:
4
Type:
Single Family
Subtype:
Single Family Residence
Subdivision:
University Hills
Finished Sq Ft:
4,227
Total Sq Ft:
4,421
Lot Size:
9,600 sqft / 0.22 acres (approx)
Year Built:
2021
Schools
School District:
Denver 1
Elementary School:
Bradley
Middle School:
Hamilton
High School:
Thomas Jefferson
Interior
Above Grade Finished Area
2478
Appliances
Dishwasher, Disposal, Dryer, Freezer, Microwave, Range, Range Hood, Refrigerator, Sump Pump, Tankless Water Heater, Washer
Bathrooms
3 Full Bathrooms, 1 Half Bathroom
Below Grade Finished Area
1749
Below Grade Unfinished Area
194
Cooling
Central Air
Fireplaces Total
1
Flooring
Carpet, Tile, Wood
Heating
Forced Air, Natural Gas
Interior Features
Audio/Video Controls, Built-in Features, Ceiling Fan(s), Entrance Foyer, Five Piece Bath, High Ceilings, High Speed Internet, Kitchen Island, Open Floorplan, Pantry, Primary Suite, Quartz Counters, Radon Mitigation System, Smart Thermostat, Smoke Free, Sound System, Vaulted Ceiling(s), Walk-In Closet(s), Wired for Data
Laundry Features
In Unit
Levels
One
Main Level Bathrooms
3
Main Level Bedrooms
3
Exterior
Architectural Style
Contemporary
Attached Garage YN
1
Construction Materials
Brick, Stucco, Wood Siding
Direction Faces
North
Exterior Features
Garden, Gas Grill, Gas Valve, Lighting, Private Yard, Rain Gutters
Fencing
Full
Garage Spaces
2
Green Energy Efficient
Thermostat, Water Heater
Lot Features
Level, Sprinklers In Front, Sprinklers In Rear
Parking Features
Concrete, Electric Vehicle Charging Station(s), Finished Garage, Insulated Garage, Oversized, Smart Garage Door
Parking Spots
2
Parking Total
2
Patio And Porch Features
Covered, Patio
Roof
Composition
Security Features
Carbon Monoxide Detector(s), Smart Cameras, Smart Locks, Smoke Detector(s), Video Doorbell
Window Features
Double Pane Windows, Egress Windows, Window Coverings
Financial
Tax Year
2025
Taxes
$8,615
Map
Contact Us
Mortgage Calculator
Property Summary
- Located in the University Hills subdivision, 4684 E Dartmouth Avenue Denver CO is a Single Family for sale in Denver, CO, 80222. It is listed for $1,900,000 and features 5 beds, 4 baths, and has approximately 4,227 square feet of living space, and was originally constructed in 2021. The current price per square foot is $449. The average price per square foot for Single Family listings in Denver is $424. The average listing price for Single Family in Denver is $1,009,128. To schedule a showing of MLS#rec9537098 at 4684 E Dartmouth Avenue in Denver, CO, contact your Smart Sale AI agent at 3039066915.
Similar Listings Nearby
Additional Details
MLS # : REC9537098
Listing Key : REC2052855914
Parcel Number : 6312-15-009
Zip Code : 80222
City : Denver
State : CO
Building if Condo :
Street : 4684 E Dartmouth Avenue
Address : 4684
Address Prefix :
Address Suffix : Avenue
Unit if Condo :
Latitude : 39.660500
Longitude : -104.933258
Property Type : singlefamily
Property Sub Type : Single Family Residence
Stories Total if Condo :
Lot Size : 9,600 sqft / 0.22 acres (approx)
Ownership : Agent Owner
Zoning : S-SU-D
Condition : Updated/Remodeled
Renovation :
Pets Allowed :
Special Conditions : None
Possession : Close Plus 5 to 30 Days,Negotiable
Original Price : 1900000
Close Price :
Close Date :
List Date : Mar 26, 2026
List Contract Date : 2026-03-26
Off Market Date : 2026-03-30
Purchase Contract Date : 2026-03-30
Days on Market : 22
Concessions Amount :
Concession Comment :

Copyright 2026. All rights reserved.
4684 E Dartmouth Avenue
Denver, CO













































