820 Knox Court Denver CO 80204 MLS #REC6087036
820 Knox Court
Denver, CO, 80204
$510,000
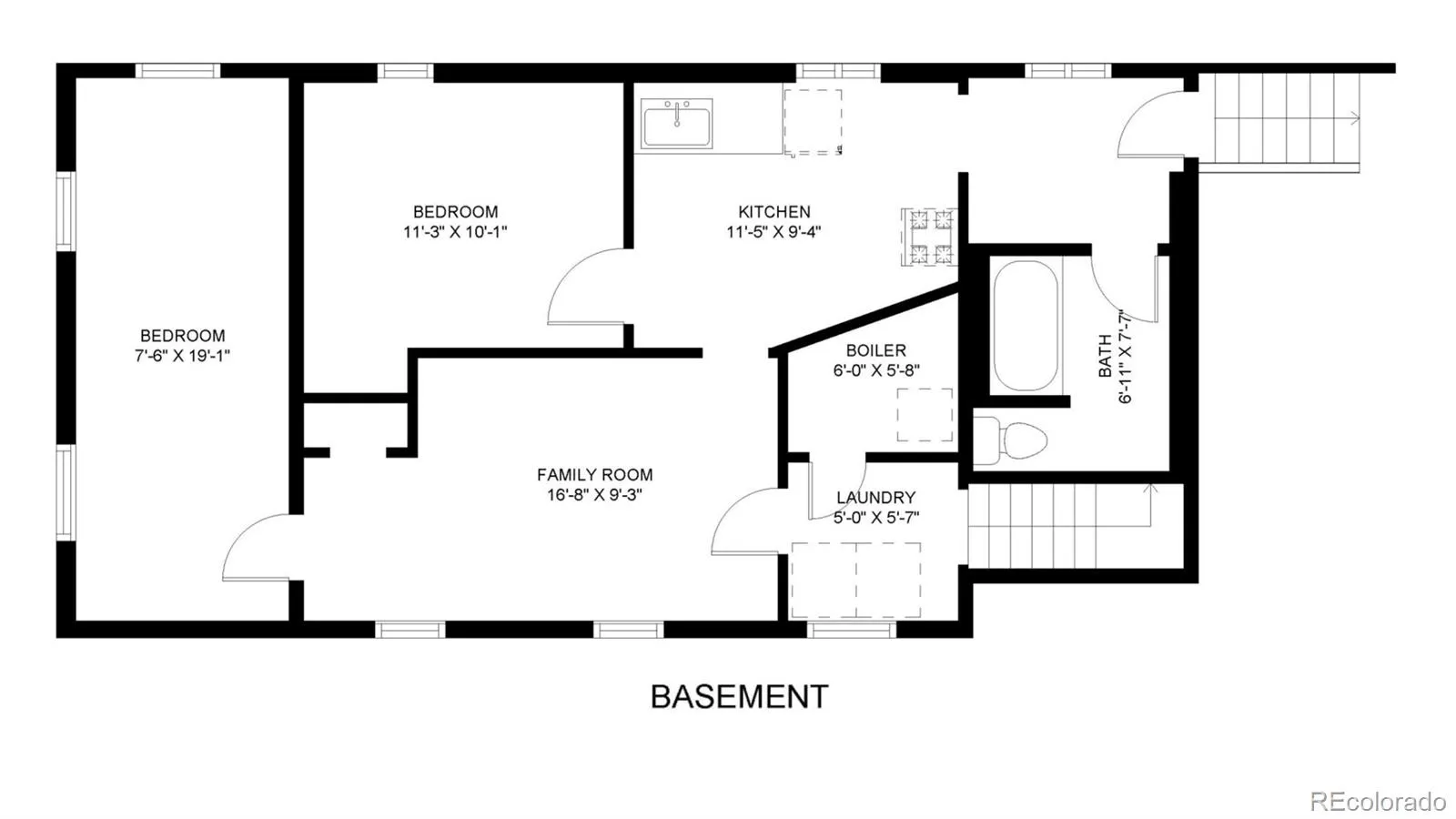
This updated raised ranch offers a flexible layout with two distinct living spaces – ideal for buyers looking for extended living, rental potential (short- or long-term), or a home with added versatility. The main level features a bright, L-shaped living area that can accommodate both living and dining setups, a fully updated eat-in kitchen and bathroom, one bedroom, and a small additional room suited for an office, workspace, or storage. Main-level laundry included. Step outside to the deck and enjoy views of the Downtown Denver skyline. The garden-level basement has a separate entrance and functions as its own living space, complete with a kitchen, living area, two bedrooms with egress windows, a full bathroom, and a separate laundry area – well suited for guests, extended family, or rental use. Recent improvements include updated flooring and ceilings, kitchen cabinetry, appliances, sink, and light fixtures, along with fresh interior and exterior paint. Additional updates include an updated electrical panel, newer furnace, newer basement windows, garage door and opener, roof, xeriscaping, and tree removal. Located just minutes from Empower Field at Mile High, Sloan’s Lake Park, and Downtown Denver, with light rail and Paco Sanchez Park approximately 3 blocks away, and easy access to 6th Avenue and I-25. Approximately a 5-minute drive (or about a 30-minute walk) to the Burnham Yard redevelopment site, a planned mixed-use development expected to bring a new stadium, retail, dining, and community-focused spaces to the area. Additional features include a tandem 2-car garage with an attached workshop, offering added flexibility for projects, storage, or hobbies. The property is positioned next to a church rather than another residential home, offering a bit of added separation and a more private feel compared to typical neighboring properties. Property is eligible for a 1.75% CRA (Community Reinvestment Act) credit available to both owner occupants and investors.
Property Details
Price:
$510,000
MLS #:
REC6087036
Status:
Active
Beds:
3
Baths:
2
Type:
Single Family
Subtype:
Single Family Residence
Subdivision:
Villa Park
Finished Sq Ft:
1,574
Total Sq Ft:
1,610
Lot Size:
5,970 sqft / 0.14 acres (approx)
Year Built:
1926
Schools
School District:
Denver 1
Elementary School:
Eagleton
Middle School:
Lake
High School:
North
Interior
Above Grade Finished Area
808
Appliances
Dishwasher, Disposal, Dryer, Gas Water Heater, Microwave, Oven, Refrigerator, Washer
Bathrooms
2 Full Bathrooms
Below Grade Finished Area
766
Below Grade Unfinished Area
36
Cooling
Air Conditioning-Room
Flooring
Vinyl
Heating
Forced Air, Natural Gas
Interior Features
Eat-in Kitchen, In-Law Floorplan, Laminate Counters, Smoke Free
Laundry Features
In Unit
Levels
One
Main Level Bathrooms
1
Main Level Bedrooms
1
Exterior
Construction Materials
Frame
Direction Faces
West
Exterior Features
Private Yard
Garage Spaces
2
Lot Features
Level, Near Public Transit
Parking Features
Concrete, Exterior Access Door, Tandem
Parking Spots
2
Parking Total
2
Patio And Porch Features
Covered, Deck, Front Porch
Roof
Shingle
Security Features
Carbon Monoxide Detector(s), Smoke Detector(s)
View
City
Window Features
Bay Window(s), Double Pane Windows, Egress Windows, Window Coverings
Financial
Tax Year
2024
Taxes
$2,192
Map
Contact Us
Mortgage Calculator
Property Summary
- Located in the Villa Park subdivision, 820 Knox Court Denver CO is a Single Family for sale in Denver, CO, 80204. It is listed for $510,000 and features 3 beds, 2 baths, and has approximately 1,574 square feet of living space, and was originally constructed in 1926. The current price per square foot is $324. The average price per square foot for Single Family listings in Denver is $423. The average listing price for Single Family in Denver is $1,010,613. To schedule a showing of MLS#rec6087036 at 820 Knox Court in Denver, CO, contact your Smart Sale AI agent at 3039066915.
Similar Listings Nearby
Additional Details
MLS # : REC6087036
Listing Key : REC2053116481
Parcel Number : 5053-27-030
Zip Code : 80204
City : Denver
State : CO
Building if Condo :
Street : 820 Knox Court
Address : 820
Address Prefix :
Address Suffix : Court
Unit if Condo :
Latitude : 39.729767
Longitude : -105.031883
Property Type : singlefamily
Property Sub Type : Single Family Residence
Stories Total if Condo :
Lot Size : 5,970 sqft / 0.14 acres (approx)
Ownership : Individual
Zoning : E-SU-D
Condition : Updated/Remodeled
Renovation :
Pets Allowed :
Special Conditions : None
Possession : Closing/DOD
Original Price : 510000
Close Price :
Close Date :
List Date : Apr 3, 2026
List Contract Date : 2026-04-03
Off Market Date :
Purchase Contract Date :
Days on Market : 19
Concessions Amount :
Concession Comment :

Copyright 2026. All rights reserved.
820 Knox Court
Denver, CO







































