7003 E Ohio Drive Denver CO 80224 MLS #REC8796637
7003 E Ohio Drive
Denver, CO, 80224
$1,175,000
Welcome to a thoughtfully reimagined ranch residence in the heart of Virginia Vale, where timeless design meets modern refinement. Fully renovated from top to bottom, this home offers a seamless blend of elevated finishes, intentional functionality, and effortless livability.
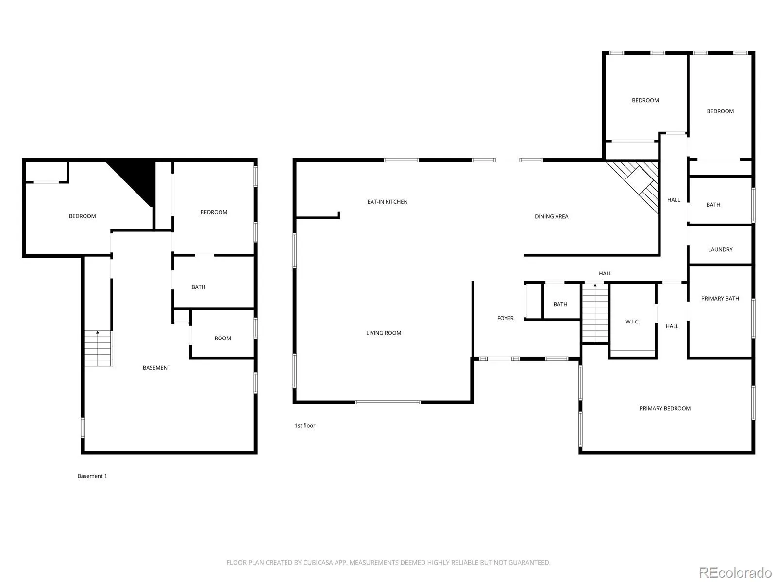
A welcoming entry with custom built-ins introduces the home’s clean, curated aesthetic and opens into a light-filled great room designed for both everyday comfort and elevated entertaining. The expansive main level flows naturally into a dedicated dining space and an inviting eat-in kitchen, anchored by a striking culinary centerpiece.
The fully redesigned kitchen features sleek cabinetry, premium countertops, designer fixtures, and an oversized island with generous seating, creating a natural gathering space for connection and conversation.
The main level is anchored by a private primary suite, offering a tranquil retreat with a spa-inspired five-piece bath, complete with a soaking tub and an oversized dual shower. Two additional bedrooms, well-appointed baths, and a conveniently located laundry space complete the main floor.
The finished lower level expands the home’s versatility, offering a spacious family room, two additional bedrooms, a large bath, bonus flex space, secondary laundry, and abundant storage, ideal for guests, work, or recreation.
Outdoors, a private backyard retreat awaits, featuring a covered patio designed for both relaxed evenings and effortless entertaining. A two-car garage and a prime central location, just moments from Cherry Creek, Lowry, Cook Park, and the High Line Canal Trail, complete this exceptional offering.
A welcoming entry with custom built-ins introduces the home’s clean, curated aesthetic and opens into a light-filled great room designed for both everyday comfort and elevated entertaining. The expansive main level flows naturally into a dedicated dining space and an inviting eat-in kitchen, anchored by a striking culinary centerpiece.
The fully redesigned kitchen features sleek cabinetry, premium countertops, designer fixtures, and an oversized island with generous seating, creating a natural gathering space for connection and conversation.
The main level is anchored by a private primary suite, offering a tranquil retreat with a spa-inspired five-piece bath, complete with a soaking tub and an oversized dual shower. Two additional bedrooms, well-appointed baths, and a conveniently located laundry space complete the main floor.
The finished lower level expands the home’s versatility, offering a spacious family room, two additional bedrooms, a large bath, bonus flex space, secondary laundry, and abundant storage, ideal for guests, work, or recreation.
Outdoors, a private backyard retreat awaits, featuring a covered patio designed for both relaxed evenings and effortless entertaining. A two-car garage and a prime central location, just moments from Cherry Creek, Lowry, Cook Park, and the High Line Canal Trail, complete this exceptional offering.
Property Details
Price:
$1,175,000
MLS #:
REC8796637
Status:
Active
Beds:
5
Baths:
4
Type:
Single Family
Subtype:
Single Family Residence
Subdivision:
Virgina Vale
Finished Sq Ft:
4,018
Total Sq Ft:
4,018
Lot Size:
9,583 sqft / 0.22 acres (approx)
Year Built:
1963
Schools
School District:
Denver 1
Elementary School:
Denver Green
Middle School:
Denver Green
High School:
George Washington
Interior
Above Grade Finished Area
2764
Appliances
Dishwasher, Oven, Refrigerator
Bathrooms
1 Full Bathroom, 2 Three Quarter Bathrooms, 1 Half Bathroom
Below Grade Finished Area
1254
Cooling
Central Air
Fireplaces Total
1
Flooring
Carpet, Tile, Vinyl
Heating
Forced Air, Natural Gas
Interior Features
Built-in Features, Eat-in Kitchen, Entrance Foyer, Five Piece Bath, High Ceilings, Kitchen Island, Open Floorplan, Primary Suite, Quartz Counters, Walk-In Closet(s)
Levels
One
Main Level Bathrooms
3
Main Level Bedrooms
3
Exterior
Architectural Style
Contemporary
Attached Garage YN
1
Construction Materials
Brick, Frame
Exterior Features
Private Yard
Fencing
Partial
Garage Spaces
2
Lot Features
Level
Parking Spots
2
Parking Total
2
Patio And Porch Features
Covered, Patio
Roof
Composition
Window Features
Double Pane Windows
Financial
Tax Year
2024
Taxes
$3,581
Map
Contact Us
Mortgage Calculator
Property Summary
- Located in the Virgina Vale subdivision, 7003 E Ohio Drive Denver CO is a Single Family for sale in Denver, CO, 80224. It is listed for $1,175,000 and features 5 beds, 4 baths, and has approximately 4,018 square feet of living space, and was originally constructed in 1963. The current price per square foot is $292. The average price per square foot for Single Family listings in Denver is $401. The average listing price for Single Family in Denver is $994,509. To schedule a showing of MLS#rec8796637 at 7003 E Ohio Drive in Denver, CO, contact your Smart Sale AI agent at 3039066915.
Similar Listings Nearby
Additional Details
MLS ID : REC8796637
Listing Key : REC2052955556
Parcel Number : 6174-03-013
Zip Code : 80224
City : Denver
State : CO
Building if Condo :
Full Street: 7003 E Ohio Drive
Address : 7003
Address Prefix :
Address Suffix : Drive
Street : Ohio
Street Prefix : E
Street Suffix :
Unit if Condo :
Latitude : 39.702499
Longitude : -104.906776
Property Type : singlefamily
Property Sub Type : Single Family Residence
Stories Total if Condo :
Lot Size : 9,583 sqft / 0.22 acres (approx)
Ownership : Agent Owner
Zoning : S-SU-F
Condition : Updated/Remodeled
Renovation :
Pets Allowed :
Special Conditions : None
Possession : Negotiable
Original Price : 1275000
Close Price :
Close Date :
List Date : Mar 27, 2026
List Contract Date : 2026-03-27
Off Market Date :
Purchase Contract Date :
Days on Market : 59
Concessions Amount :
Concession Comment :
Renovation :
Company : LIV Sotheby’s International Realty

Copyright 2026. All rights reserved.
7003 E Ohio Drive
Denver, CO















































