1626 E 25th Avenue Denver CO 80205 MLS #REC9500295
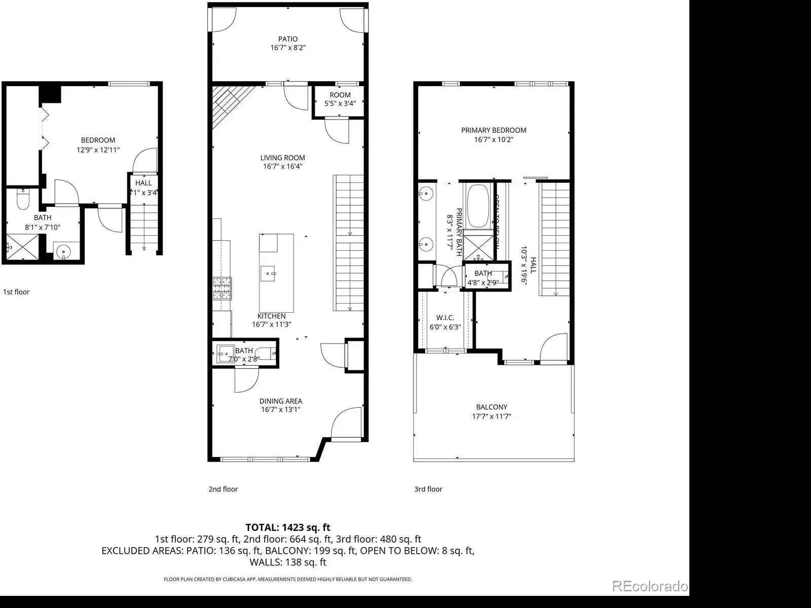
Discover city living at its best in this stylish 2-bedroom, 3-bathroom townhome offering unbeatable value. A bright open layout flows seamlessly through the spacious living area, designated dining room, and modern kitchen, boasting sleek updates and finishes. Exposed brick accents add character, while large windows fill the space with natural light. Enjoy views and fresh air from your rooftop deck, perfect for entertaining, or relax in your private back patio. Nestled on tree-lined streets near parks, recreation, grocery stores, and local shops—this home combines convenience, charm, and modern comfort. Truly the best-priced townhome in the area. Feel at ease with a New AC, Furnace, Newer Roof and Siding.
Property Details
Price:
$600,000
MLS #:
REC9500295
Status:
Active
Beds:
2
Baths:
3
Type:
Condo
Subtype:
Condominium
Subdivision:
Whittier
Finished Sq Ft:
1,542
Total Sq Ft:
1,561
Lot Size:
6,302 sqft / 0.14 acres (approx)
Year Built:
1918
Schools
School District:
Denver 1
Elementary School:
Whittier E-8
Middle School:
Whittier E-8
High School:
Manual
Interior
Above Grade Finished Area
1182
Appliances
Dishwasher, Disposal, Dryer, Gas Water Heater, Microwave, Oven, Range, Refrigerator, Washer
Bathrooms
1 Full Bathroom, 1 Three Quarter Bathroom, 1 Half Bathroom
Below Grade Finished Area
360
Below Grade Unfinished Area
19
Cooling
Central Air
Fireplaces Total
1
Flooring
Tile, Wood
Heating
Forced Air, Natural Gas
Interior Features
Eat-in Kitchen, Entrance Foyer, Five Piece Bath, Granite Counters, High Ceilings, Kitchen Island, Open Floorplan, Primary Suite, Quartz Counters, Smart Thermostat, Smoke Free, Walk-In Closet(s), Wired for Data
Laundry Features
In Unit
Levels
Two
Main Level Bathrooms
1
Exterior
Association Amenities
Parking
Common Walls
2+ Common Walls
Construction Materials
Brick, Cement Siding
Direction Faces
North
Exterior Features
Balcony, Lighting, Private Yard, Rain Gutters
Fencing
Partial
Lot Features
Landscaped, Near Public Transit, Sprinklers In Front
Parking Spots
1
Parking Total
1
Patio And Porch Features
Deck, Patio, Rooftop
Roof
Membrane
Security Features
Carbon Monoxide Detector(s), Secured Garage/Parking, Smart Locks, Smoke Detector(s)
Spa Features
Bath
Window Features
Double Pane Windows, Egress Windows, Skylight(s), Window Coverings
Financial
HOA Fee
$400
HOA Fee Frequency
Monthly
HOA Includes
Insurance, Maintenance Grounds, Maintenance Structure, Sewer, Water
HOA Name
25th Avenue Lofts Condos
HOA Phone
970-290-0781
Tax Year
2024
Taxes
$2,466
Map
Contact Us
Mortgage Calculator
Property Summary
- Located in the Whittier subdivision, 1626 E 25th Avenue Denver CO is a Condo for sale in Denver, CO, 80205. It is listed for $600,000 and features 2 beds, 3 baths, and has approximately 1,542 square feet of living space, and was originally constructed in 1918. The current price per square foot is $389. The average price per square foot for Condo listings in Denver is $396. The average listing price for Condo in Denver is $482,685. To schedule a showing of MLS#rec9500295 at 1626 E 25th Avenue in Denver, CO, contact your Smart Sale AI agent at 3039066915.
Similar Listings Nearby
Additional Details
MLS # : REC9500295
Listing Key : REC2051069746
Parcel Number : 2351-10-035
Zip Code : 80205
City : Denver
State : CO
Building if Condo : 25th Avenue Lofts Condos
Street : 1626 E 25th Avenue
Address : 1626
Address Prefix :
Address Suffix : Avenue
Unit if Condo :
Latitude : 39.753124
Longitude : -104.967407
Property Type : condo
Property Sub Type : Condominium
Stories Total if Condo :
Lot Size : 6,302 sqft / 0.14 acres (approx)
Ownership : Individual
Zoning : U-MX-2X
Condition : Updated/Remodeled
Renovation :
Pets Allowed : Cats OK,Dogs OK
Special Conditions : None
Possession : Close Plus 30 to 60 Days
Original Price : 615000
Close Price :
Close Date :
List Date : Jan 30, 2026
List Contract Date : 2026-01-30
Off Market Date :
Purchase Contract Date :
Days on Market : 81
Concessions Amount :
Concession Comment :

Copyright 2026. All rights reserved.
1626 E 25th Avenue
Denver, CO













































