595 W Eastman Avenue Englewood CO 80110 MLS #REC5067292
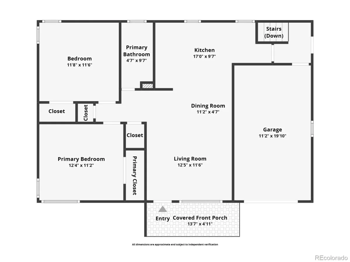
(Recent Price Change! Available For Immediate Occupancy) If you like the perfect blend of solid construction of years past blended with the features of a new home, you’ll cherish this excellent Englewood location on a corner lot near parks and Santa Fe Drive offering easy access to State Highway 285 to the foothills and Interstate I-25 to Downtown Denver. This home has been professionally and extensively remodeled with top of the line upgrades that include new double-pane vinyl windows, new electrical panel, outlets and recessed lighting throughout, new raised six panel doors with brushed nickel hardware, refinished hardwood flooring, new ceramic tile and carpet flooring, remodeled bathrooms with floor-to-ceiling tiled showers, new 42” kitchen cabinetry, stainless steel appliances and under-counter sink just to name a few on the main level. The fully finished basement offers two additional bedrooms with new egress windows, a large laundry room, a spacious family room and second bathroom with a private entrance to the outside and where you’ll find a large, fenced back yard. Keep your vehicles out of the weather inside the attached garage and side carport. To add additional value and piece of mind this home comes equipped with a new Rheem furnace, gas hot water heater and central air conditioning unit. Take advantage of all that Downtown has to offer by hopping on a bus in the neighborhood or stroll to the Englewood Light Rail station just four blocks away! If you’ve been searching for a home that combines durability, design, and location in harmony, this Englewood property checks every box. Every surface has been renewed, every system brought up to modern standards, and every detail finished with care. All that’s left is to move in, make it yours, and start exploring the best of city and mountain life from your new home base.
Property Details
Price:
$610,000
MLS #:
REC5067292
Status:
Active
Beds:
4
Baths:
2
Type:
Single Family
Subtype:
Single Family Residence
Subdivision:
Uhlman
Finished Sq Ft:
1,563
Total Sq Ft:
1,799
Lot Size:
7,100 sqft / 0.16 acres (approx)
Year Built:
1953
Schools
School District:
Englewood 1
Elementary School:
Bishop
Middle School:
Englewood
High School:
Englewood
Interior
Above Grade Finished Area
959
Appliances
Dishwasher, Disposal, Oven, Range, Refrigerator
Bathrooms
1 Full Bathroom, 1 Three Quarter Bathroom
Below Grade Finished Area
604
Below Grade Unfinished Area
236
Cooling
Central Air
Flooring
Carpet, Tile, Wood
Heating
Forced Air, Natural Gas
Laundry Features
In Unit
Levels
One
Main Level Bathrooms
1
Main Level Bedrooms
2
Exterior
Architectural Style
Traditional
Attached Garage YN
1
Construction Materials
Brick
Direction Faces
South
Exterior Features
Private Yard
Garage Spaces
1
Lot Features
Corner Lot, Near Public Transit
Parking Features
Concrete, Exterior Access Door
Parking Spots
2
Parking Total
2
Patio And Porch Features
Front Porch
Roof
Composition
Window Features
Double Pane Windows, Egress Windows
Financial
Tax Year
2025
Taxes
$2,595
Map
Contact Us
Mortgage Calculator
Property Summary
- Located in the Uhlman subdivision, 595 W Eastman Avenue Englewood CO is a Single Family for sale in Englewood, CO, 80110. It is listed for $610,000 and features 4 beds, 2 baths, and has approximately 1,563 square feet of living space, and was originally constructed in 1953. The current price per square foot is $390. The average price per square foot for Single Family listings in Englewood is $392. The average listing price for Single Family in Englewood is $894,802. To schedule a showing of MLS#rec5067292 at 595 W Eastman Avenue in Englewood, CO, contact your Smart Sale AI agent at 3039066915.
Similar Listings Nearby
Additional Details
MLS # : REC5067292
Listing Key : REC2052669925
Parcel Number : 031026644
Zip Code : 80110
City : Englewood
State : CO
Building if Condo :
Street : 595 W Eastman Avenue
Address : 595
Address Prefix :
Address Suffix : Avenue
Unit if Condo :
Latitude : 39.658775
Longitude : -104.994263
Property Type : singlefamily
Property Sub Type : Single Family Residence
Stories Total if Condo :
Lot Size : 7,100 sqft / 0.16 acres (approx)
Ownership : Corporation/Trust
Zoning :
Condition : Updated/Remodeled
Renovation :
Pets Allowed :
Special Conditions : None
Possession : Closing/DOD
Original Price : 640000
Close Price :
Close Date :
List Date : Mar 14, 2026
List Contract Date : 2026-03-14
Off Market Date :
Purchase Contract Date :
Days on Market : 38
Concessions Amount :
Concession Comment :

Copyright 2026. All rights reserved.
595 W Eastman Avenue
Englewood, CO











































