11478 Daisy Court Firestone CO 80504 MLS #RECIR1055067
Situated on a quiet cul-de-sac in a highly desirable, established neighborhood and backing to HOA open space, this beautifully renovated home offers the perfect blend of privacy, style, and modern comfort. Every inch of this home has been thoughtfully updated with designer finishes throughout. The stunning new kitchen features soft-close cabinetry, quartz countertops, brand-new appliances, and elegant under-cabinet lighting. The open floor plan is enhanced by high ceilings, abundant natural light from upgraded Andersen vinyl windows and a new sliding patio door, as well as fresh interior and exterior paint, modern lighting, new baseboards, door trim, and Decora child-safe outlets and switches. The spacious primary suite is a true retreat, showcasing vaulted ceilings, serene views of the eastern plains, and a updated en-suite bathroom with dual quartz vanities, new fixtures, and a large walk-in closet. Upstairs, a versatile loft provides the perfect space for a cozy reading nook or home office. The secondary bathroom has been beautifully remodeled with a subway tile walk-in shower, stylish vanity, and updated plumbing fixtures. Plush upgraded carpet and padding add comfort throughout the upper level. The main living area serves as the heart of the home-ideal for both everyday living and entertainment flowing seamlessly into the dining space and efficiently designed kitchen. Major system upgrades provide peace of mind, including a new furnace (2022), Class 4 hail-resistant roof (2023), and a new 15 SEER air conditioning unit (2025) Step outside to enjoy the expansive, pie-shaped lot featuring a concrete patio perfect for relaxing or entertaining, along with a dedicated play area. Conveniently located just a short drive from local golf and outdoor recreation, this home offers both tranquility and accessibility. This move-in-ready home is a rare find-schedule your showing today and experience these designer-inspired renovations in person.
Property Details
Price:
$549,000
MLS #:
RECIR1055067
Status:
Active
Beds:
3
Baths:
3
Type:
Single Family
Subtype:
Single Family Residence
Subdivision:
Oak Meadows PUD Fg#1
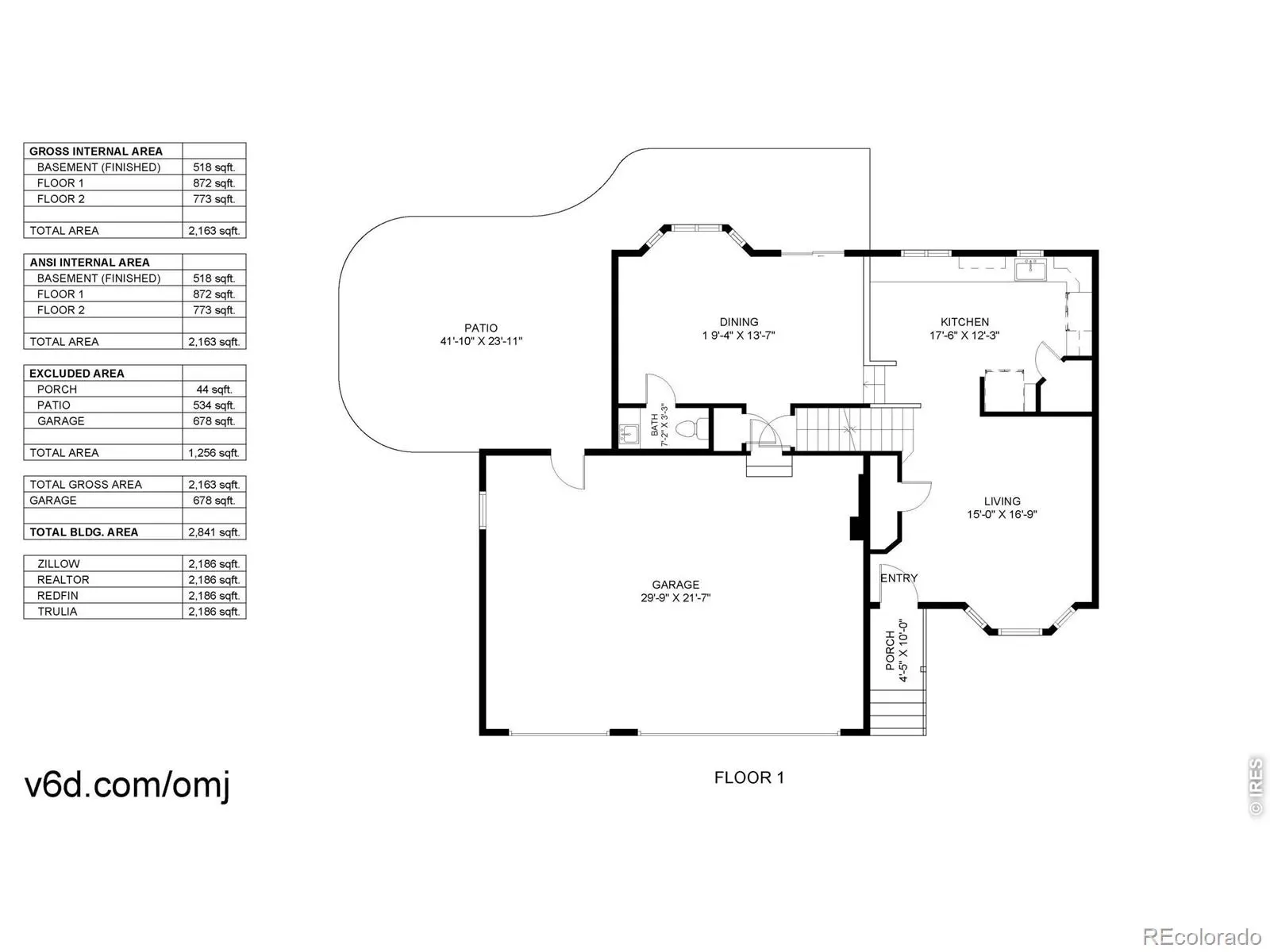
Finished Sq Ft:
2,186
Total Sq Ft:
2,186
Lot Size:
7,781 sqft / 0.18 acres (approx)
Year Built:
2000
Schools
School District:
St. Vrain Valley RE-1J
Elementary School:
Prairie Ridge
Middle School:
Coal Ridge
High School:
Frederick
Interior
Above Grade Finished Area
1664
Appliances
Dishwasher, Humidifier, Microwave, Oven, Refrigerator, Self Cleaning Oven
Bathrooms
2 Full Bathrooms, 1 Half Bathroom
Below Grade Finished Area
522
Cooling
Ceiling Fan(s), Central Air
Heating
Forced Air
Interior Features
Eat-in Kitchen, Open Floorplan, Pantry, Vaulted Ceiling(s), Walk-In Closet(s)
Laundry Features
In Unit
Levels
Tri-Level
Exterior
Architectural Style
Contemporary
Association Amenities
Park
Attached Garage YN
1
Construction Materials
Brick, Frame
Direction Faces
Southwest
Fencing
Fenced
Garage Spaces
3
Lot Features
Cul-De-Sac, Level, Open Space, Sprinklers In Front
Parking Features
Oversized
Parking Spots
3
Parking Total
3
Patio And Porch Features
Patio
Roof
Composition
Security Features
Smoke Detector(s)
Window Features
Bay Window(s), Double Pane Windows, Skylight(s), Window Coverings
Financial
HOA Fee
$31
HOA Fee Frequency
Monthly
HOA Includes
Reserves
HOA Name
Oak Meadows Owners Assoication
HOA Phone
720-818-5236
Tax Year
2025
Taxes
$3,561
Map
Contact Us
Mortgage Calculator
Property Summary
- Located in the Oak Meadows PUD Fg#1 subdivision, 11478 Daisy Court Firestone CO is a Single Family for sale in Firestone, CO, 80504. It is listed for $549,000 and features 3 beds, 3 baths, and has approximately 2,186 square feet of living space, and was originally constructed in 2000. The current price per square foot is $251. The average price per square foot for Single Family listings in Firestone is $248. The average listing price for Single Family in Firestone is $631,225. To schedule a showing of MLS#recir1055067 at 11478 Daisy Court in Firestone, CO, contact your Smart Sale AI agent at 3039066915.
Similar Listings Nearby
Additional Details
MLS # : RECIR1055067
Listing Key : REC2053009181
Parcel Number : R7883599
Zip Code : 80504
City : Firestone
State : CO
Building if Condo :
Street : 11478 Daisy Court
Address : 11478
Address Prefix :
Address Suffix : Court
Unit if Condo :
Latitude : 40.167667
Longitude : -104.938736
Property Type : singlefamily
Property Sub Type : Single Family Residence
Stories Total if Condo :
Lot Size : 7,781 sqft / 0.18 acres (approx)
Ownership : Agent Owner
Zoning : RES
Condition :
Renovation :
Pets Allowed :
Special Conditions :
Possession : Closing/DOD
Original Price : 575000
Close Price :
Close Date :
List Date : Mar 27, 2026
List Contract Date : 2026-03-27
Off Market Date :
Purchase Contract Date :
Days on Market : 21
Concessions Amount :
Concession Comment :

Copyright 2026. All rights reserved.
11478 Daisy Court
Firestone, CO







































