11540 Inspiration Road Golden CO 80403 MLS #REC4676657
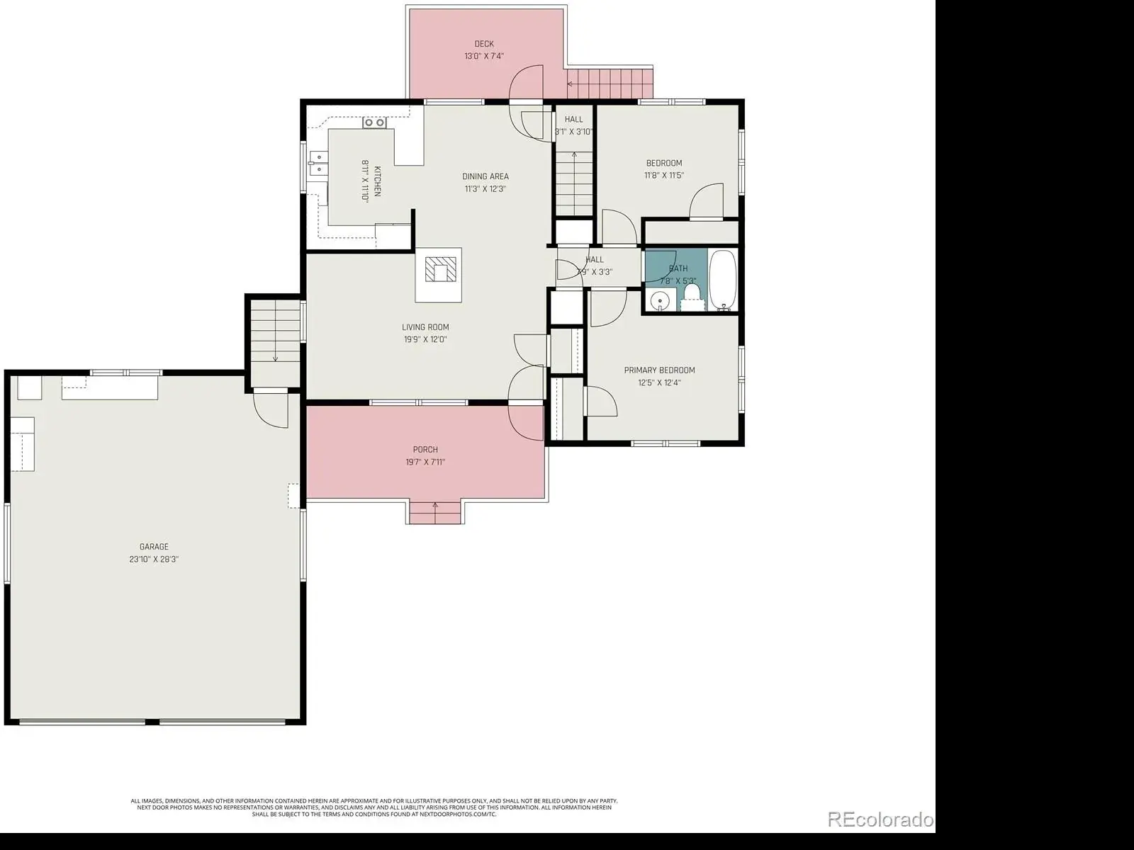
Welcome to 11540 Inspiration Road, a warm and inviting mountain retreat set on just under an acre with beautiful views and true Colorado tranquility. This comfortable 3-bed, 2-bath home offers a functional layout, a finished basement, and the privacy and quiet that mountain buyers seek. The main level features a cozy living area centered around a wood-burning stove and large windows that frame the surrounding landscape. New carpet adds a fresh touch upstairs, and the kitchen includes a 5-stage reverse osmosis system. Step out the back door to a fenced dog run, and enjoy frequent visits from local wildlife. The finished basement provides flexible space for guests, work, or hobbies. The oversized heated 2-car garage includes workbenches, great storage, and year-round usability. This home is exceptionally well insulated with self-storing storm windows and has been well maintained. Enjoy a new furnace and new radon system. Additional features include a whirlpool bathtub, abundant storage, and one of the best-producing wells on the mountain. The community offers the ideal blend of mountain living and convenience: a K–8 charter school with high-school bus service, natural gas service, a community hall with year-round events, and several nearby businesses including a local coffee shop, post office, convenience store, mechanic-run gas station, fire station, liquor store, and nearby restaurants. Outdoor recreation is minutes away at Gross Reservoir, Eldora ski resort, and the towns of Golden, Boulder, Arvada, Nederland, and Black Hawk/Central City. A well-cared-for mountain home in a friendly, connected community.
Property Details
Price:
$535,000
MLS #:
REC4676657
Status:
Active Under Contract
Beds:
3
Baths:
2
Type:
Single Family
Subtype:
Single Family Residence
Subdivision:
Brook Ridge
Finished Sq Ft:
942
Total Sq Ft:
1,884
Lot Size:
40,511 sqft / 0.93 acres (approx)
Year Built:
1981
Schools
School District:
Jefferson County R-1
Elementary School:
Coal Creek Canyon
Middle School:
Coal Creek Canyon
High School:
Ralston Valley
Interior
Above Grade Finished Area
942
Appliances
Dishwasher, Disposal, Dryer, Gas Water Heater, Microwave, Oven, Refrigerator, Washer, Water Purifier
Bathrooms
2 Full Bathrooms
Below Grade Unfinished Area
942
Cooling
None
Fireplaces Total
1
Flooring
Carpet, Laminate, Wood
Heating
Forced Air
Interior Features
Ceiling Fan(s)
Laundry Features
In Unit
Levels
One
Main Level Bathrooms
1
Main Level Bedrooms
2
Exterior
Architectural Style
Mountain Contemporary
Attached Garage YN
1
Common Walls
No Common Walls
Construction Materials
Frame, Wood Siding
Exterior Features
Lighting, Rain Gutters
Fencing
Partial
Garage Spaces
2
Lot Features
Many Trees, Mountainous, Sloped
Parking Features
220 Volts, Circular Driveway, Gravel, Dry Walled, Exterior Access Door, Heated Garage, Insulated Garage, Lighted
Parking Spots
5
Parking Total
5
Patio And Porch Features
Deck, Front Porch
Roof
Composition
Security Features
Carbon Monoxide Detector(s), Smoke Detector(s)
View
Mountain(s)
Window Features
Double Pane Windows, Storm Window(s), Window Coverings
Financial
Tax Year
2024
Taxes
$2,402
Map
Contact Us
Mortgage Calculator
Property Summary
- Located in the Brook Ridge subdivision, 11540 Inspiration Road Golden CO is a Single Family for sale in Golden, CO, 80403. It is listed for $535,000 and features 3 beds, 2 baths, and has approximately 942 square feet of living space, and was originally constructed in 1981. The current price per square foot is $568. The average price per square foot for Single Family listings in Golden is $426. The average listing price for Single Family in Golden is $1,487,503. To schedule a showing of MLS#rec4676657 at 11540 Inspiration Road in Golden, CO, contact your Smart Sale AI agent at 3039066915.
Similar Listings Nearby
Additional Details
MLS ID : REC4676657
Listing Key : REC2050766962
Parcel Number : 044793
Zip Code : 80403
City : Golden
State : CO
Building if Condo :
Full Street: 11540 Inspiration Road
Address : 11540
Address Prefix :
Address Suffix : Road
Street : Inspiration
Street Prefix :
Street Suffix :
Unit if Condo :
Latitude : 39.904453
Longitude : -105.369316
Property Type : singlefamily
Property Sub Type : Single Family Residence
Stories Total if Condo :
Lot Size : 40,511 sqft / 0.93 acres (approx)
Ownership : Individual
Zoning : A-1
Condition :
Renovation :
Pets Allowed :
Special Conditions : None
Possession : Closing/DOD
Original Price : 545000
Close Price :
Close Date :
List Date : Nov 15, 2025
List Contract Date : 2025-11-15
Off Market Date : 2026-01-30
Purchase Contract Date : 2026-01-30
Days on Market : 197
Concessions Amount :
Concession Comment :
Renovation :
Company : LPT Realty

Copyright 2026. All rights reserved.
11540 Inspiration Road
Golden, CO




































