12421 W 9th Place Golden CO 80401 MLS #REC4682829
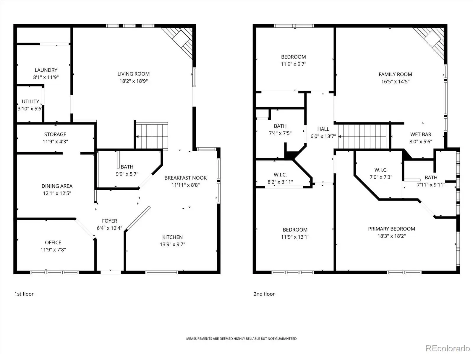
Rare opportunity in Golden—own half of a charming duplex set on a truly stunning lot, unlike any around! Situated on nearly a ¼ acre, the beautifully landscaped yard is a private retreat, complete with a tranquil koi pond, garden beds, grapevines, and expansive green space—perfect for relaxing or entertaining outdoors. Inside, the main level offers a warm, inviting layout with excellent flexibility. A dedicated study, previously used as a bedroom, paired with a nearby ¾ bath creates a convenient main-floor living option for guests or multi-generational needs. The formal dining area features a large storage closet, while the spacious living room and main floor laundry add everyday ease. The generously sized kitchen is equipped with stainless steel appliances, abundant cabinetry, and ample counter space, all flowing seamlessly to the backyard for effortless indoor-outdoor entertaining. Upstairs, a second living area with a wet bar provides the perfect flex space for relaxing or hosting. This level also includes two secondary bedrooms, a full bath, and a spacious primary suite with a large en-suite bath and walk-in closet. Tucked away on a quiet cul-de-sac, this home offers the best of Golden living—easy access to I-70 for mountain escapes, along with nearby shopping, dining, and everyday conveniences!
Property Details
Price:
$745,000
MLS #:
REC4682829
Status:
Active
Beds:
3
Baths:
3
Type:
Single Family
Subtype:
Single Family Residence
Subdivision:
Daniels Gardens
Finished Sq Ft:
2,450
Total Sq Ft:
2,450
Lot Size:
10,498 sqft / 0.24 acres (approx)
Year Built:
1993
Schools
School District:
Jefferson County R-1
Elementary School:
Welchester
Middle School:
Bell
High School:
Golden
Interior
Above Grade Finished Area
2450
Appliances
Dishwasher, Dryer, Microwave, Range, Refrigerator, Washer, Wine Cooler
Bathrooms
1 Full Bathroom, 2 Three Quarter Bathrooms
Cooling
Evaporative Cooling
Fireplaces Total
2
Flooring
Carpet, Tile, Wood
Heating
Forced Air
Interior Features
Ceiling Fan(s), Eat-in Kitchen, Primary Suite, Walk-In Closet(s), Wet Bar
Laundry Features
In Unit
Levels
Two
Main Level Bathrooms
1
Exterior
Common Walls
1 Common Wall
Construction Materials
Frame, Wood Siding
Exterior Features
Garden, Private Yard
Garage Spaces
2
Lot Features
Corner Lot, Sprinklers In Front, Sprinklers In Rear
Parking Features
Concrete, Heated Garage, Oversized
Parking Spots
2
Parking Total
2
Roof
Composition
Financial
Tax Year
2024
Taxes
$4,041
Map
Contact Us
Mortgage Calculator
Property Summary
- Located in the Daniels Gardens subdivision, 12421 W 9th Place Golden CO is a Single Family for sale in Golden, CO, 80401. It is listed for $745,000 and features 3 beds, 3 baths, and has approximately 2,450 square feet of living space, and was originally constructed in 1993. The current price per square foot is $304. The average price per square foot for Single Family listings in Golden is $457. The average listing price for Single Family in Golden is $1,391,928. To schedule a showing of MLS#rec4682829 at 12421 W 9th Place in Golden, CO, contact your Smart Sale AI agent at 3039066915.
Similar Listings Nearby
Additional Details
MLS # : REC4682829
Listing Key : REC2051305406
Parcel Number : 509467
Zip Code : 80401
City : Golden
State : CO
Building if Condo :
Street : 12421 W 9th Place
Address : 12421
Address Prefix :
Address Suffix : Place
Unit if Condo :
Latitude : 39.731701
Longitude : -105.138145
Property Type : singlefamily
Property Sub Type : Single Family Residence
Stories Total if Condo :
Lot Size : 10,498 sqft / 0.24 acres (approx)
Ownership : Estate
Zoning :
Condition :
Renovation :
Pets Allowed :
Special Conditions : None
Possession : Closing/DOD,Immediate,Negotiable
Original Price : 789500
Close Price :
Close Date :
List Date : Jan 10, 2026
List Contract Date : 2026-01-10
Off Market Date :
Purchase Contract Date :
Days on Market : 102
Concessions Amount :
Concession Comment :

Copyright 2026. All rights reserved.
12421 W 9th Place
Golden, CO

































