16180 Mt Vernon Road Golden CO 80401 MLS #REC2379698
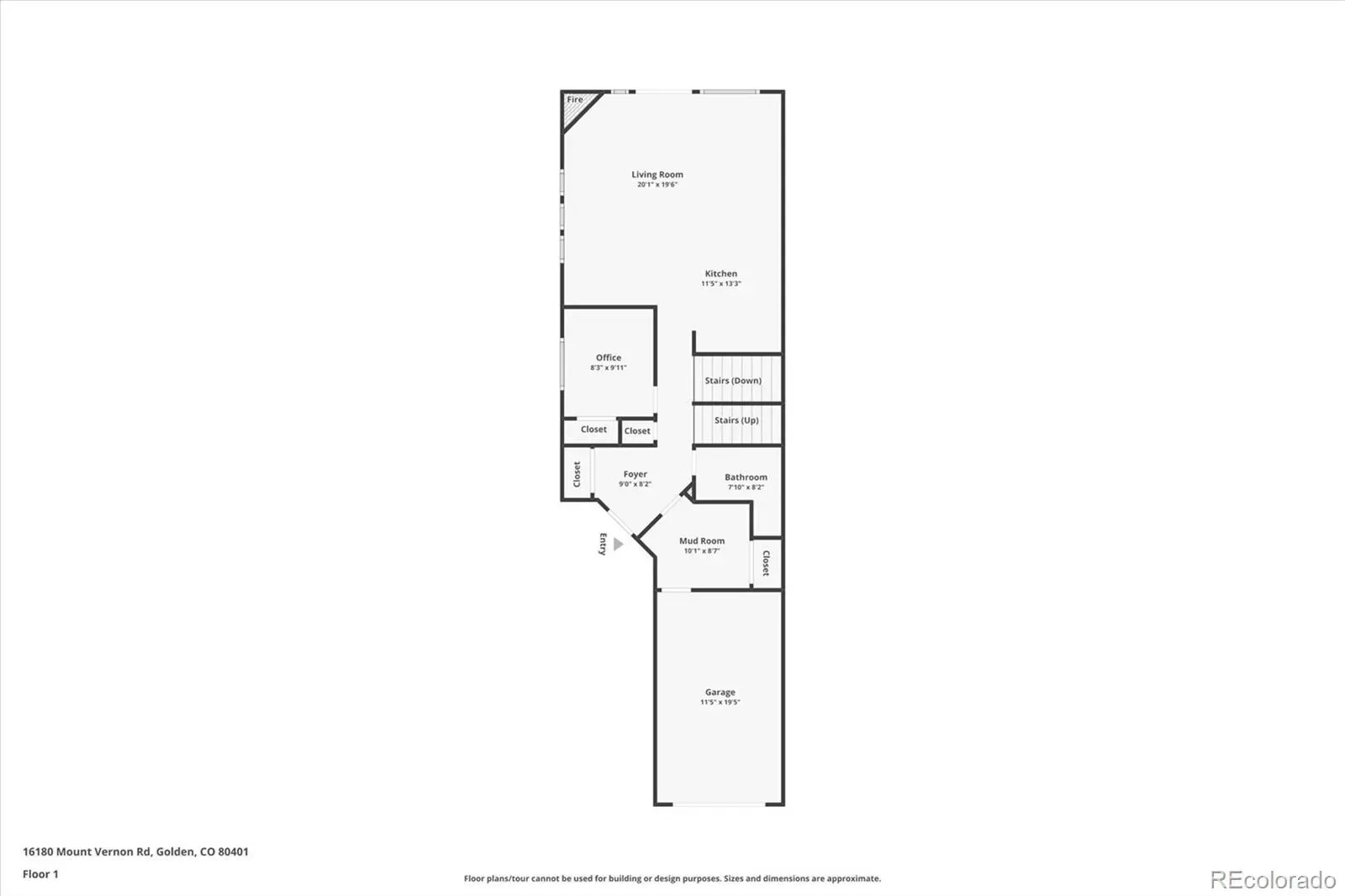
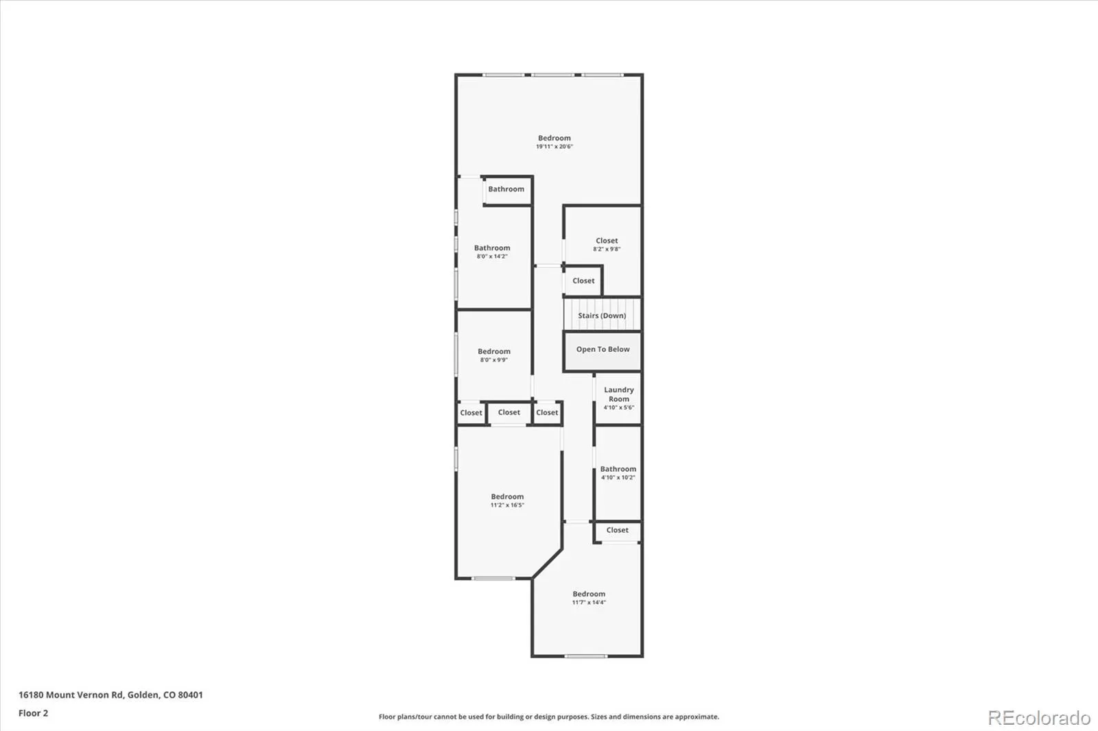
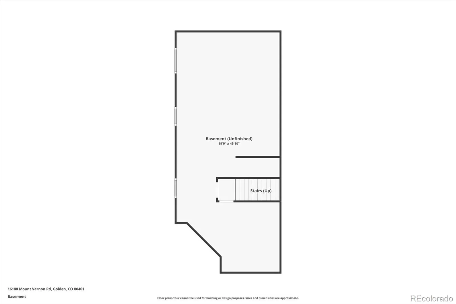
Discover this stunning custom-built paired 5 bedroom/3 bathroom home for sale in the sought-after Pleasant View area of South Golden—an up-and-coming pocket drawing buyers who crave serene semi-rural living with easy access to vibrant recreation and city conveniences. Big price reduction so seller can move onto Phase II development–take advantage! This new construction home offers privacy—no properties behind it-and views of Lena Gulch & the foothills out back. Enjoy open-space tranquility while minutes from Golden’s lively downtown: world-class breweries, restaurants, parks, and shopping. Outdoor enthusiasts appreciate nearby mountain biking/hiking trails/kayaking, quick I-70 access to the mountains, 6th Avenue, a short 7-minute drive to downtown Golden, as well as horse riding options in this horse-friendly area of Golden. Inside, experience modern luxury and craftsmanship. The open-concept main level features soaring 9-foot ceilings, abundant natural light from premium Pella windows, and seamless living/dining/kitchen flow. The chef’s kitchen boasts quartz countertops, custom tile backsplash, soft-close cabinetry, large island, Bespoke refrigerator, Bosch dishwasher, COSMO 36-inch six-burner gas stove with pot-filler, and more. Cozy up by the Kingsman 39-inch gas fireplace with blower. A versatile main-floor bedroom and bathroom suits as a home office, guest room, or playroom. Upstairs, the light-filled primary suite offers picturesque foothills views, generous walk-in closet, and spa-like en-suite with European soaking tub, glass-enclosed shower, dual sinks, and premium Delta fixtures. EV Charger ready. The fully fenced backyard with sprinkler system is ideal for relaxing, entertaining, pets, or gardening. An unfinished basement with 9-foot ceilings, large egress windows, and rough-in plumbing. This rare Pleasant View Golden home combines luxury, privacy, and an unbeatable lifestyle!
Property Details
Price:
$989,000
MLS #:
REC2379698
Status:
Active
Beds:
4
Baths:
3
Type:
Single Family
Subtype:
Single Family Residence
Subdivision:
South Golden
Finished Sq Ft:
2,250
Total Sq Ft:
3,177
Lot Size:
7,908 sqft / 0.18 acres (approx)
Year Built:
2025
Schools
School District:
Jefferson County R-1
Elementary School:
Welchester
Middle School:
Bell
High School:
Golden
Interior
Above Grade Finished Area
2250
Appliances
Cooktop, Dishwasher, Disposal, Microwave, Oven, Range Hood, Refrigerator
Bathrooms
2 Full Bathrooms, 1 Three Quarter Bathroom
Below Grade Unfinished Area
927
Cooling
Central Air
Fireplaces Total
1
Flooring
Laminate, Tile
Heating
Forced Air
Interior Features
Five Piece Bath, Granite Counters, High Ceilings, Kitchen Island, Primary Suite
Levels
Two
Main Level Bathrooms
1
Exterior
Architectural Style
Contemporary
Attached Garage YN
1
Common Walls
1 Common Wall
Community
55+
Construction Materials
Frame
Direction Faces
Northwest
Fencing
Full
Garage Spaces
2
Lot Features
Foothills, Irrigated, Landscaped, Level
Parking Features
Concrete, Insulated Garage, Oversized
Parking Spots
6
Parking Total
6
Patio And Porch Features
Front Porch
Roof
Composition
Senior Community YN
1
View
Mountain(s), Valley
Financial
HOA Fee
$90
HOA Fee Frequency
Monthly
HOA Includes
Maintenance Grounds, Road Maintenance, Snow Removal
HOA Name
Creekside at Mt Vernon
HOA Phone
000-000-0000
Tax Year
2024
Taxes
$3,500
Map
Contact Us
Mortgage Calculator
Property Summary
- Located in the South Golden subdivision, 16180 Mt Vernon Road Golden CO is a Single Family for sale in Golden, CO, 80401. It is listed for $989,000 and features 4 beds, 3 baths, and has approximately 2,250 square feet of living space, and was originally constructed in 2025. The current price per square foot is $440. The average price per square foot for Single Family listings in Golden is $457. The average listing price for Single Family in Golden is $1,391,928. To schedule a showing of MLS#rec2379698 at 16180 Mt Vernon Road in Golden, CO, contact your Smart Sale AI agent at 3039066915.
Similar Listings Nearby
Additional Details
MLS # : REC2379698
Listing Key : REC2051557508
Parcel Number : 300530535
Zip Code : 80401
City : Golden
State : CO
Building if Condo :
Street : 16180 Mt Vernon Road
Address : 16180
Address Prefix :
Address Suffix : Road
Unit if Condo :
Latitude : 39.732197
Longitude : -105.181999
Property Type : singlefamily
Property Sub Type : Single Family Residence
Stories Total if Condo :
Lot Size : 7,908 sqft / 0.18 acres (approx)
Ownership : Corporation/Trust
Zoning : RES
Condition : New Construction
Renovation :
Pets Allowed :
Special Conditions : None
Possession : Closing/DOD
Original Price : 1094900
Close Price :
Close Date :
List Date : Jan 21, 2026
List Contract Date : 2026-01-21
Off Market Date :
Purchase Contract Date :
Days on Market : 91
Concessions Amount : 0
Concession Comment :

Copyright 2026. All rights reserved.
16180 Mt Vernon Road
Golden, CO
















































