1240 Urban Street Lakewood CO 80401 MLS #REC2569651
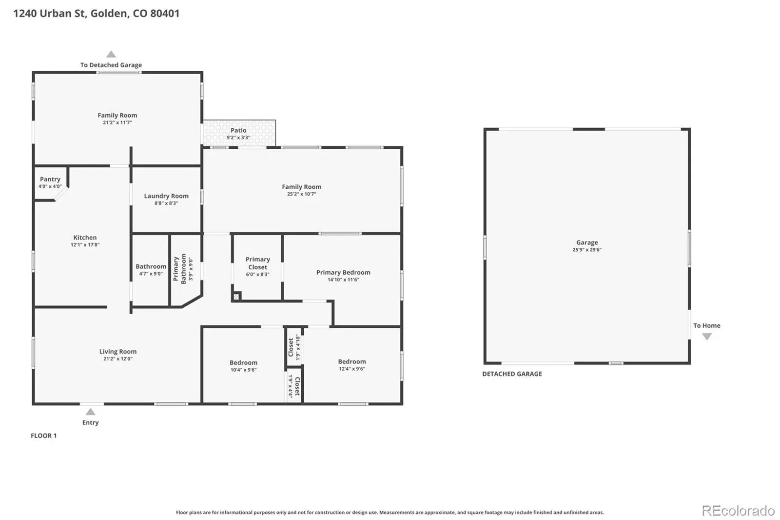
Space, flexibility, and an unbeatable location come together at 1240 Urban Street. Set on a generous lot with mature trees and room to grow, this inviting 3-bedroom, 2-bath home offers multiple living spaces, a bright enclosed sunroom, and a rare pull-through garage perfect for car collectors, hobbyists, or anyone needing extra room.
This inviting home offers a comfortable layout with multiple living spaces and thoughtful updates throughout. Inside, you’ll find durable vinyl plank flooring, fresh interior paint, and a spacious kitchen with room for a dining table, creating the perfect hub for everyday living and entertaining. The living room features a cozy wood-burning stove, while an additional living area just off the kitchen provides flexibility for a family room, office, or play space. At the back of the home, a large enclosed sunroom offers a bright, relaxing space to enjoy year-round.
Car enthusiasts and hobbyists will appreciate the standout 26′ x 30′ pull-through garage, complete with doors on both sides of the building. The oversized garage easily accommodates up to four vehicles or can function as a spacious workshop or creative studio.
The oversized lot is full of opportunity, with mature trees, established grass in the front yard, and a fully fenced area perfect for gardening. With access from two streets, the property provides flexibility and room to customize the outdoor space to suit your needs.
Located in a quiet neighborhood, this home offers excellent access to both city conveniences and Colorado’s outdoor lifestyle. Downtown Denver, 6th Avenue, and the mountains are all within easy reach.
The home is located within the Jefferson County School District, serving Welchester Elementary, Bell Middle School, and Golden High School. Major employment centers including NREL, the Denver Federal Center, and St. Anthony Hospital are also just a short drive away.
This inviting home offers a comfortable layout with multiple living spaces and thoughtful updates throughout. Inside, you’ll find durable vinyl plank flooring, fresh interior paint, and a spacious kitchen with room for a dining table, creating the perfect hub for everyday living and entertaining. The living room features a cozy wood-burning stove, while an additional living area just off the kitchen provides flexibility for a family room, office, or play space. At the back of the home, a large enclosed sunroom offers a bright, relaxing space to enjoy year-round.
Car enthusiasts and hobbyists will appreciate the standout 26′ x 30′ pull-through garage, complete with doors on both sides of the building. The oversized garage easily accommodates up to four vehicles or can function as a spacious workshop or creative studio.
The oversized lot is full of opportunity, with mature trees, established grass in the front yard, and a fully fenced area perfect for gardening. With access from two streets, the property provides flexibility and room to customize the outdoor space to suit your needs.
Located in a quiet neighborhood, this home offers excellent access to both city conveniences and Colorado’s outdoor lifestyle. Downtown Denver, 6th Avenue, and the mountains are all within easy reach.
The home is located within the Jefferson County School District, serving Welchester Elementary, Bell Middle School, and Golden High School. Major employment centers including NREL, the Denver Federal Center, and St. Anthony Hospital are also just a short drive away.
Property Details
Price:
$550,000
MLS #:
REC2569651
Status:
Active Under Contract
Beds:
3
Baths:
2
Type:
Single Family
Subtype:
Single Family Residence
Subdivision:
Daniels Garden
Finished Sq Ft:
1,731
Total Sq Ft:
1,731
Lot Size:
12,458 sqft / 0.29 acres (approx)
Year Built:
1964
Schools
School District:
Jefferson County R-1
Elementary School:
Welchester
Middle School:
Bell
High School:
Golden
Interior
Above Grade Finished Area
1731
Appliances
Dishwasher, Disposal, Microwave, Oven, Refrigerator
Bathrooms
1 Full Bathroom, 1 Three Quarter Bathroom
Cooling
None
Heating
Forced Air
Levels
One
Main Level Bathrooms
2
Main Level Bedrooms
3
Exterior
Construction Materials
Frame
Garage Spaces
4
Lot Features
Level
Parking Spots
10
Parking Total
10
Roof
Composition
Financial
Tax Year
2024
Taxes
$2,556
Map
Contact Us
Mortgage Calculator
Property Summary
- Located in the Daniels Garden subdivision, 1240 Urban Street Lakewood CO is a Single Family for sale in Lakewood, CO, 80401. It is listed for $550,000 and features 3 beds, 2 baths, and has approximately 1,731 square feet of living space, and was originally constructed in 1964. The current price per square foot is $318. The average price per square foot for Single Family listings in Lakewood is $356. The average listing price for Single Family in Lakewood is $809,434. To schedule a showing of MLS#rec2569651 at 1240 Urban Street in Lakewood, CO, contact your Smart Sale AI agent at 3039066915.
Similar Listings Nearby
Additional Details
MLS # : REC2569651
Listing Key : REC2052613245
Parcel Number : 056909
Zip Code : 80401
City : Lakewood
State : CO
Building if Condo :
Street : 1240 Urban Street
Address : 1240
Address Prefix :
Address Suffix : Street
Unit if Condo :
Latitude : 39.735065
Longitude : -105.133446
Property Type : singlefamily
Property Sub Type : Single Family Residence
Stories Total if Condo :
Lot Size : 12,458 sqft / 0.29 acres (approx)
Ownership : Individual
Zoning :
Condition :
Renovation :
Pets Allowed :
Special Conditions : None
Possession : Closing/DOD
Original Price : 550000
Close Price :
Close Date :
List Date : Mar 12, 2026
List Contract Date : 2026-03-12
Off Market Date : 2026-03-16
Purchase Contract Date : 2026-03-16
Days on Market : 37
Concessions Amount :
Concession Comment :

Copyright 2026. All rights reserved.
1240 Urban Street
Lakewood, CO


































