13537 W Exposition Drive Lakewood CO 80228 MLS #REC8295175
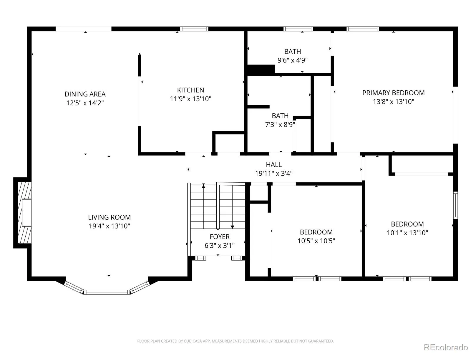
Tucked away on a quiet street and set on an expansive quarter-acre lot in Green Mountain, this beautifully remodeled 4-bedroom, 3-bath home offers the perfect blend of privacy, modern upgrades, and Colorado charm. Surrounded by mature trees, the backyard feels like a serene mountain retreat—complete with access to nearby hiking trails right out your door. Inside, you’ll find stunning hardwood flooring, new paint, vaulted ceilings, granite countertops, stainless steel appliances, and a gorgeous floor-to-ceiling stone fireplace that anchors the main living space. The primary suite features a private bathroom & a private lounging deck with a sliding door & peaceful views. The bright, lower-level could be a private in-law or guest suite, complete with its own kitchen with stove/fridge/sink, spacious bedroom, ¾ bath, and cozy living or media room with a brick fireplace. Step outside to enjoy the backyard patio, refreshed front entry with pavers, and a fully irrigated yard. Other updates include: New water heater (2026), Central air conditioning, newer exterior paint, freshly painted first floor (2026), epoxied garage floors and expanded garage, new light fixtures, gas stove, and solar panels for improved efficiency. Located just minutes from Red Rocks, Morrison, Golden, and Green Mountain, this home offers unmatched access to some of Colorado’s best outdoor recreation—while still being close to everything you need. This is a rare opportunity to own in this desirable area, offering this level of space, privacy, and natural beauty—this property is truly move-in ready and exceptional from top to bottom.
Property Details
Price:
$825,000
MLS #:
REC8295175
Status:
Active Under Contract
Beds:
4
Baths:
3
Type:
Single Family
Subtype:
Single Family Residence
Subdivision:
Green Mountain
Finished Sq Ft:
2,204
Total Sq Ft:
2,204
Lot Size:
10,890 sqft / 0.25 acres (approx)
Year Built:
1971
Schools
School District:
Jefferson County R-1
Elementary School:
Foothills
Middle School:
Dunstan
High School:
Green Mountain
Interior
Above Grade Finished Area
2204
Appliances
Dishwasher, Disposal, Dryer, Microwave, Oven, Refrigerator, Washer
Bathrooms
1 Full Bathroom, 2 Three Quarter Bathrooms
Cooling
Central Air
Fireplaces Total
2
Flooring
Carpet, Wood
Heating
Forced Air
Interior Features
Built-in Features, Ceiling Fan(s), Eat-in Kitchen, High Ceilings, In-Law Floorplan, Open Floorplan, Primary Suite, Vaulted Ceiling(s)
Laundry Features
In Unit
Levels
Bi-Level
Exterior
Architectural Style
Traditional
Attached Garage YN
1
Construction Materials
Frame
Direction Faces
South
Exterior Features
Balcony, Private Yard
Fencing
Full
Garage Spaces
2
Lot Features
Foothills, Landscaped, Many Trees, Near Public Transit
Parking Features
Concrete, Finished Garage, Floor Coating
Parking Spots
2
Parking Total
2
Patio And Porch Features
Deck, Front Porch, Patio
Roof
Composition
Security Features
Carbon Monoxide Detector(s)
Window Features
Bay Window(s), Double Pane Windows, Window Coverings
Financial
Tax Year
2024
Taxes
$4,486
Map
Contact Us
Mortgage Calculator
Property Summary
- Located in the Green Mountain subdivision, 13537 W Exposition Drive Lakewood CO is a Single Family for sale in Lakewood, CO, 80228. It is listed for $825,000 and features 4 beds, 3 baths, and has approximately 2,204 square feet of living space, and was originally constructed in 1971. The current price per square foot is $374. The average price per square foot for Single Family listings in Lakewood is $355. The average listing price for Single Family in Lakewood is $813,110. To schedule a showing of MLS#rec8295175 at 13537 W Exposition Drive in Lakewood, CO, contact your Smart Sale AI agent at 3039066915.
Similar Listings Nearby
Additional Details
MLS # : REC8295175
Listing Key : REC2053209784
Parcel Number : 084032
Zip Code : 80228
City : Lakewood
State : CO
Building if Condo :
Street : 13537 W Exposition Drive
Address : 13537
Address Prefix :
Address Suffix : Drive
Unit if Condo :
Latitude : 39.703865
Longitude : -105.151146
Property Type : singlefamily
Property Sub Type : Single Family Residence
Stories Total if Condo :
Lot Size : 10,890 sqft / 0.25 acres (approx)
Ownership : Individual
Zoning :
Condition : Updated/Remodeled
Renovation :
Pets Allowed :
Special Conditions : None
Possession : Negotiable
Original Price : 825000
Close Price :
Close Date :
List Date : Apr 9, 2026
List Contract Date : 2026-04-09
Off Market Date : 2026-04-11
Purchase Contract Date : 2026-04-11
Days on Market : 13
Concessions Amount :
Concession Comment :

Copyright 2026. All rights reserved.
13537 W Exposition Drive
Lakewood, CO




















































