453 Allison Street Lakewood CO 80226 MLS #REC3838874
Welcome to 453 Allison Street—a rare mid-century home where character, space, and location come together in the most beautiful way. Set on an expansive lot in what feels like a tucked-away historic pocket, this property offers a sense of privacy and calm that is increasingly hard to find—yet you are right in the heart of Lakewood, moments to shopping, dining, downtown Denver, and with easy access to the mountains and the airport.
The exterior immediately sets the tone with its distinctive live-edge cedar siding, a true architectural gem. Each board carries a subtle wave, creating movement, texture, and a warmth that reflects the organic spirit of mid-century design. Paired with classic brick, mature trees, and established landscaping, the home feels grounded, timeless, and full of story.
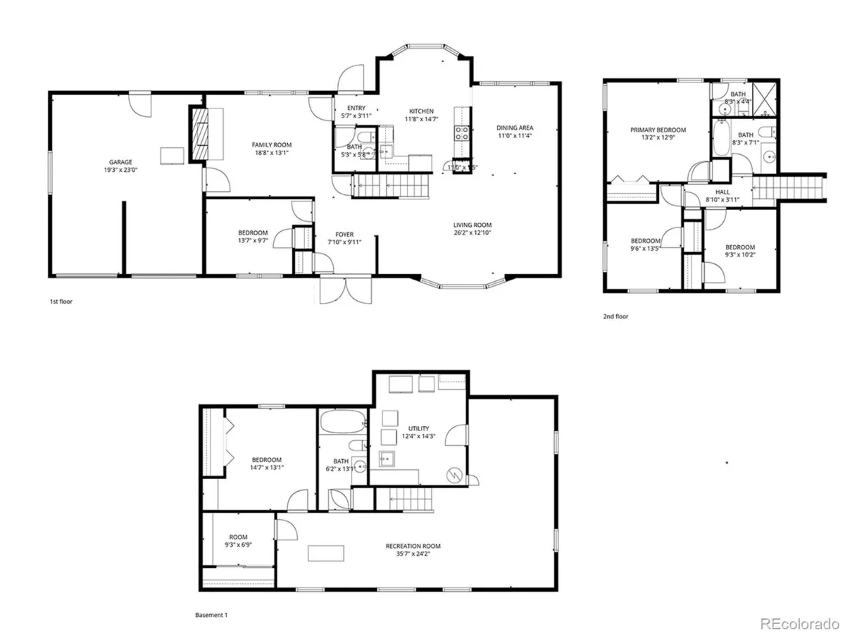
Inside, nearly 3,000 square feet unfolds across three levels, offering incredible flexibility and scale. Original details blend seamlessly with functional living spaces, including multiple gathering areas, a gas fireplace, bay windows that draw in beautiful natural light, and a layout that allows for both connection and retreat.
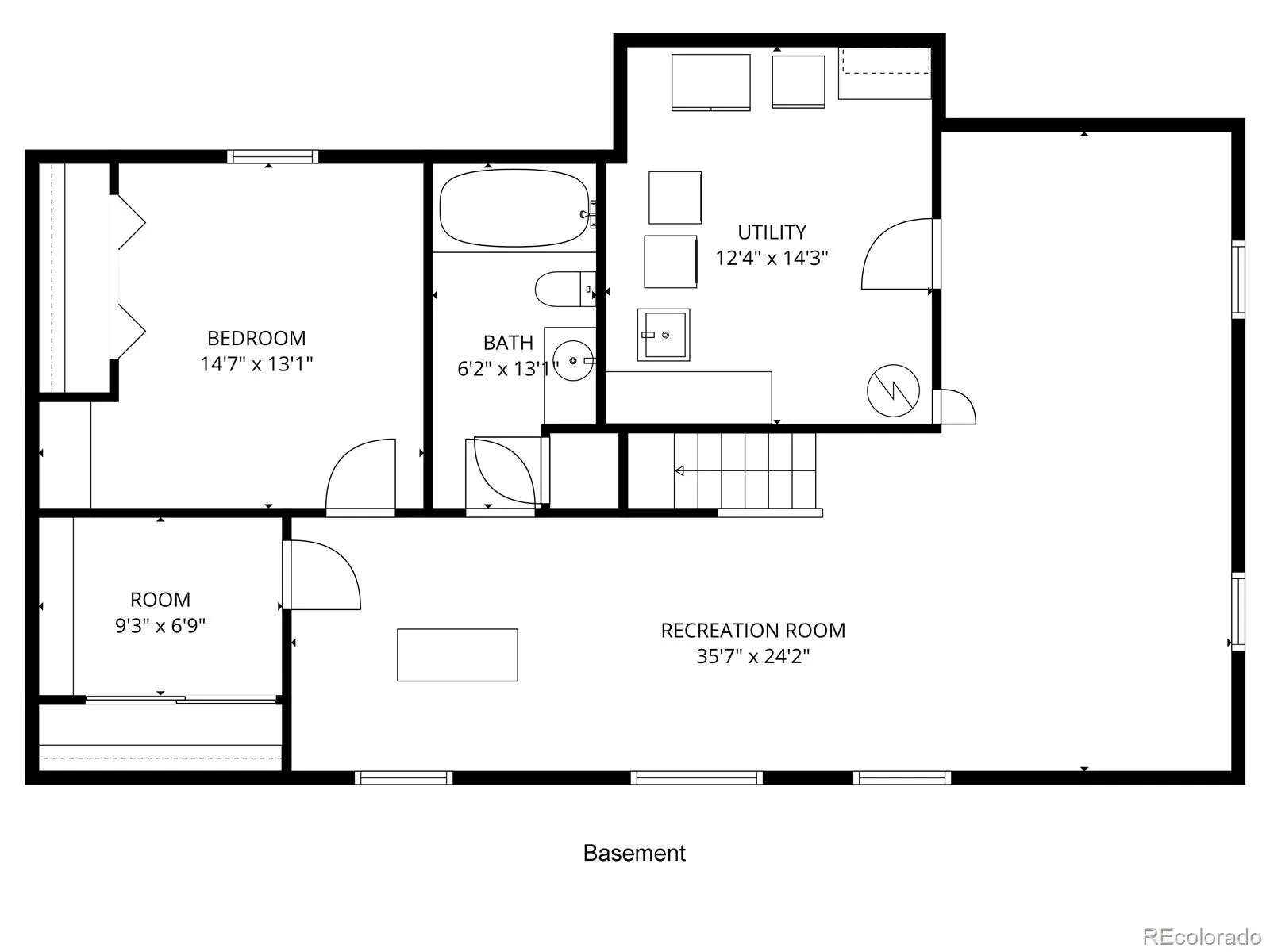
The kitchen and dining spaces open easily for everyday living or entertaining, while the expansive lower level—with brand new carpet—offers endless opportunity for recreation, hobbies, or creative use. Vintage charm carries throughout, from parquet flooring to a classic bathtubs that anchors the home in its era.
Outside, the generous lot provides room to stretch out and enjoy. The fully fenced yard is framed by mature trees and offers space for gardening, entertaining, or simply enjoying the seasons. A storage shed adds convenience, while the abundance of parking—including room for recreational vehicles—makes this property as practical as it is special. Transferable home warranty until 5/29
This is a home with soul—thoughtfully priced to allow for your own updates, while preserving the architectural integrity that makes it truly one of a kind!
The exterior immediately sets the tone with its distinctive live-edge cedar siding, a true architectural gem. Each board carries a subtle wave, creating movement, texture, and a warmth that reflects the organic spirit of mid-century design. Paired with classic brick, mature trees, and established landscaping, the home feels grounded, timeless, and full of story.
Inside, nearly 3,000 square feet unfolds across three levels, offering incredible flexibility and scale. Original details blend seamlessly with functional living spaces, including multiple gathering areas, a gas fireplace, bay windows that draw in beautiful natural light, and a layout that allows for both connection and retreat.
The kitchen and dining spaces open easily for everyday living or entertaining, while the expansive lower level—with brand new carpet—offers endless opportunity for recreation, hobbies, or creative use. Vintage charm carries throughout, from parquet flooring to a classic bathtubs that anchors the home in its era.
Outside, the generous lot provides room to stretch out and enjoy. The fully fenced yard is framed by mature trees and offers space for gardening, entertaining, or simply enjoying the seasons. A storage shed adds convenience, while the abundance of parking—including room for recreational vehicles—makes this property as practical as it is special. Transferable home warranty until 5/29
This is a home with soul—thoughtfully priced to allow for your own updates, while preserving the architectural integrity that makes it truly one of a kind!
Property Details
Price:
$699,000
MLS #:
REC3838874
Status:
Active Under Contract
Beds:
5
Baths:
4
Type:
Single Family
Subtype:
Single Family Residence
Subdivision:
Meadowlark Park
Finished Sq Ft:
2,782
Total Sq Ft:
2,958
Lot Size:
11,326 sqft / 0.26 acres (approx)
Year Built:
1967
Schools
School District:
Jefferson County R-1
Elementary School:
South Lakewood
Middle School:
Creighton
High School:
Lakewood
Interior
Above Grade Finished Area
1814
Appliances
Dishwasher, Disposal, Dryer, Gas Water Heater, Microwave, Range, Range Hood, Refrigerator, Sump Pump, Washer
Bathrooms
2 Full Bathrooms, 1 Three Quarter Bathroom, 1 Half Bathroom
Below Grade Finished Area
968
Below Grade Unfinished Area
176
Cooling
Evaporative Cooling
Fireplaces Total
1
Flooring
Carpet, Concrete, Laminate, Parquet, Tile, Wood
Heating
Baseboard, Natural Gas
Interior Features
Breakfast Bar, Built-in Features, Ceiling Fan(s), Eat-in Kitchen, Entrance Foyer, Laminate Counters, Primary Suite
Laundry Features
Sink, In Unit
Levels
Two
Main Level Bathrooms
1
Main Level Bedrooms
1
Exterior
Architectural Style
Mid-Century Modern
Attached Garage YN
1
Construction Materials
Brick, Cedar
Direction Faces
East
Exterior Features
Garden, Private Yard, Rain Gutters
Fencing
Full
Garage Spaces
2
Lot Features
Irrigated, Landscaped, Many Trees, Near Public Transit, Sprinklers In Front, Sprinklers In Rear
Parking Features
Concrete, Exterior Access Door, Storage
Parking Spots
4
Parking Total
4
Patio And Porch Features
Covered, Front Porch, Patio
Roof
Composition
Security Features
Carbon Monoxide Detector(s), Smoke Detector(s)
Window Features
Bay Window(s), Window Coverings
Financial
Tax Year
2024
Taxes
$3,113
Map
Contact Us
Mortgage Calculator
Property Summary
- Located in the Meadowlark Park subdivision, 453 Allison Street Lakewood CO is a Single Family for sale in Lakewood, CO, 80226. It is listed for $699,000 and features 5 beds, 4 baths, and has approximately 2,782 square feet of living space, and was originally constructed in 1967. The current price per square foot is $251. The average price per square foot for Single Family listings in Lakewood is $325. The average listing price for Single Family in Lakewood is $796,026. To schedule a showing of MLS#rec3838874 at 453 Allison Street in Lakewood, CO, contact your Smart Sale AI agent at 3039066915.
Similar Listings Nearby
Additional Details
MLS ID : REC3838874
Listing Key : REC2053045462
Parcel Number : 431472
Zip Code : 80226
City : Lakewood
State : CO
Building if Condo :
Full Street: 453 Allison Street
Address : 453
Address Prefix :
Address Suffix : Street
Street : Allison
Street Prefix :
Street Suffix :
Unit if Condo :
Latitude : 39.722637
Longitude : -105.086723
Property Type : singlefamily
Property Sub Type : Single Family Residence
Stories Total if Condo :
Lot Size : 11,326 sqft / 0.26 acres (approx)
Ownership : Individual
Zoning :
Condition :
Renovation :
Pets Allowed :
Special Conditions : None
Possession : Negotiable
Original Price : 699000
Close Price :
Close Date :
List Date : Apr 9, 2026
List Contract Date : 2026-04-09
Off Market Date : 2026-04-24
Purchase Contract Date : 2026-04-24
Days on Market : 47
Concessions Amount :
Concession Comment :
Renovation :
Company : The Group Inc – Harmony

Copyright 2026. All rights reserved.
453 Allison Street
Lakewood, CO















































